3 1 2

3 bed House - Semi-Detached - Sold
Robert Burns Avenue, Cheltenham
£320,000

  • Spacious extended family home
  • Close to local amenities and schools
  • Beautiful Secluded rear garden
  • No onward chain
  • Off road parking
  • EPC rating C69
An excellent opportunity to acquire a spacious, extended family home in need of some updating. Located in the ever popular location of Benhall and benefitting from driveway parking, beautiful rear garden, uPVC double glazing, and gas central heating. The property comes to the market for the first time in many years and is offered chain free.

Accommodation

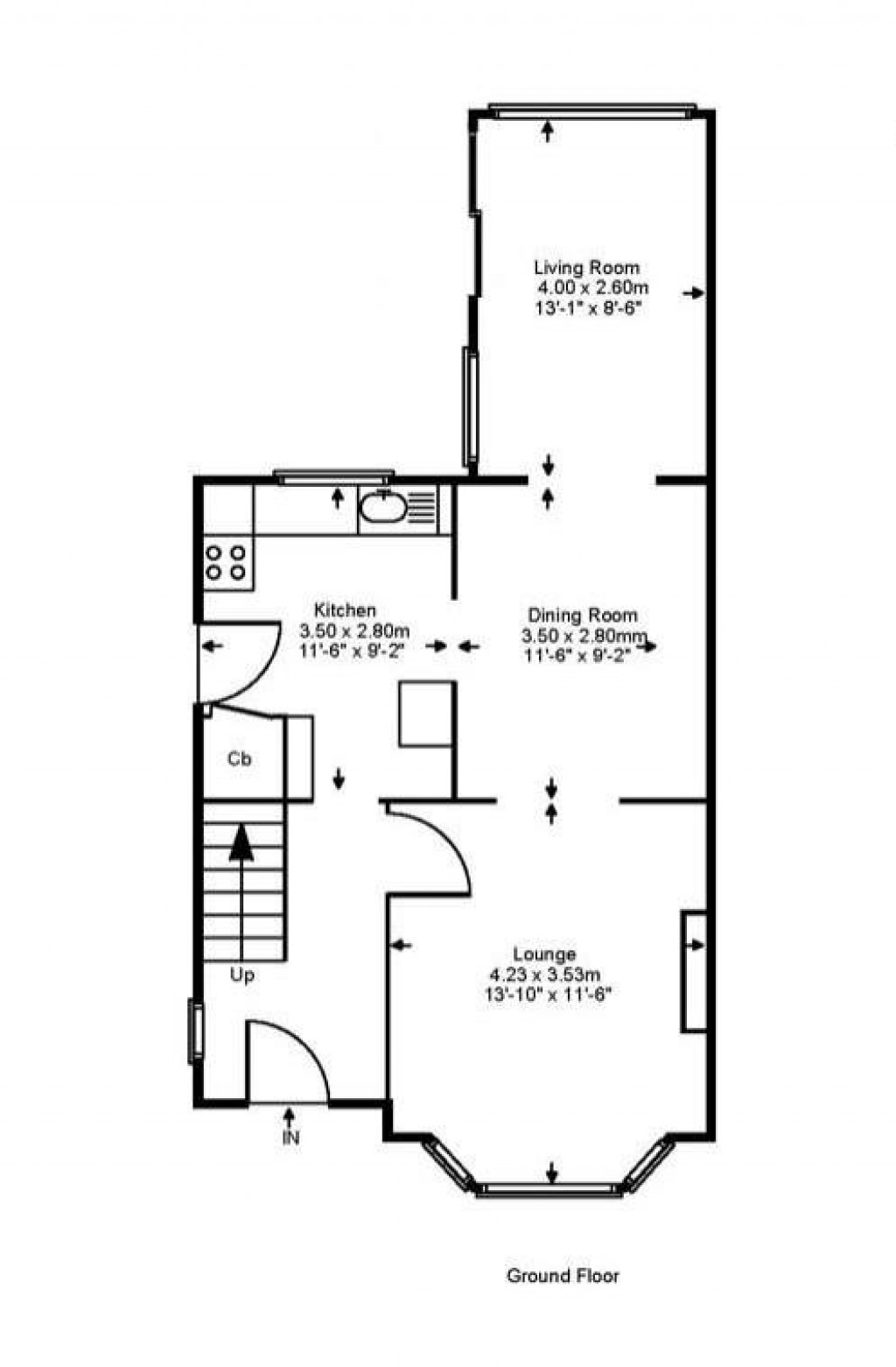
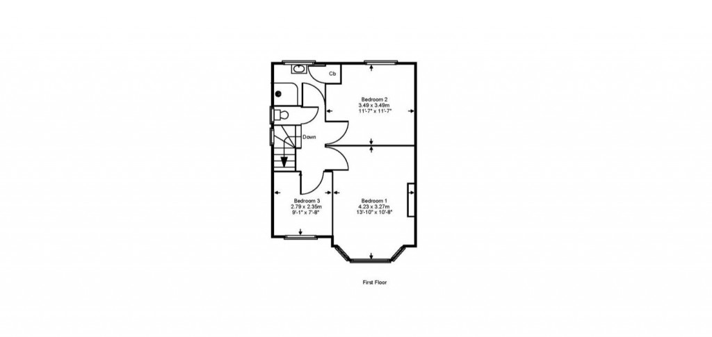
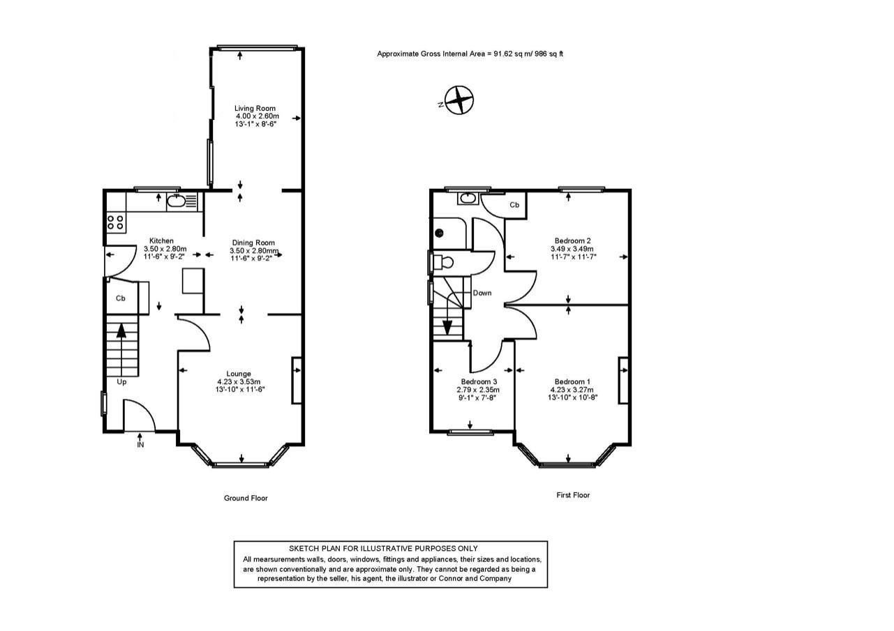
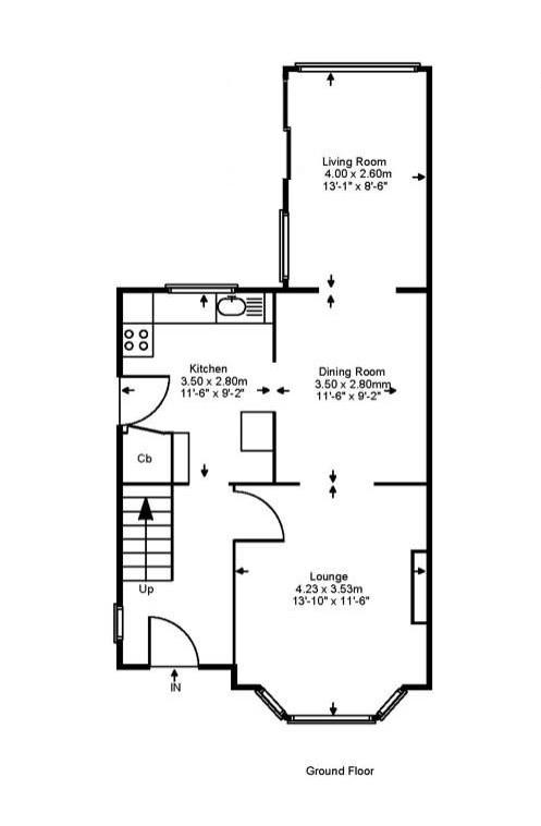
A uPVC double glazed door leads into the hallway with stairs to the first floor. The lounge has a bay window to the front aspect and Cotswold stone fireplace and opens through to the extended dining room/further sitting room with door to the kitchen, large picture window overlooking the rear garden and uPVC patio doors to the side. The kitchen is fitted with a range of worksurfaces with cupboards and drawers under, wall cupboards, stainless steel sink with mixer tap, appliance spaces for free standing cooker, fridge/freezer and washing machine, doors to the driveway and hall and window overlooking the rear aspect. The first floor landing has a window to the side and doors to all rooms off. Bedroom one is bay fronted and overlooks the front aspect. Bedroom two, another good size double overlooks the rear garden. Bedroom three has a useful wardrobe built in over the stair bulk head. Shower room with corner glazed shower cubicle, vanity wash hand basin with cupboard under, airing cupboard housing the boiler and obscure glazed window to the rear. Separate Cloakroom with low level flush WC and window to side aspect. This property has the potential to be a wonderful family home has gas central heating and uPVC double glazing. Early viewing is recommended.

Outside

The front of the property is laid to paved patio with mature shrubs and trees and driveway parking with timber gates to rear. The rear garden is secluded and beautifully landscaped with mature flower and shrub borders, large patio with covered pergola, lawn and a timber garden shed.

Location

The property is situated in the popular area of Benhall on the outskirts of Cheltenham. Close to excellent schools both primary and secondary as well as local shops. The property benefits from being nearby to country parks and woodlands and excellent bus services to both Cheltenham and Gloucester as well as excellent access to the M5 motorway and GCHQ

Tenure, services and local authority

Freehold
All mains services are believed to be connected
Local authority is Cheltenham borough council, tax band D £1,898.38 (2021/22)

Directions

Leave Cheltenham Town centre on the Lansdown Road, at the traffic lights turn right into Hatherley Road, follow the road for approximately 1.7 miles and at the mini roundabout turn right into Hatherley Lane. Take the first right into Robert Burns Avenue. The property can be found mid-way down the road and identified by our For sale board.

Floorplans For Robert Burns Avenue, Cheltenham Floorplans For Robert Burns Avenue, Cheltenham Floorplans For Robert Burns Avenue, Cheltenham
EPC For Robert Burns Avenue, Cheltenham
Arrange a viewing for Robert Burns Avenue, Cheltenham

For further details on this property please call us on:
01242 252699

Property Brochure Download PDF Arrange Viewing