3 2

3 bed House - Semi-Detached - Sold
Lincoln Avenue, Warden Hill, Cheltenham
Price Guide - £385,000

  • Close to popular schools
  • Extended family home
  • Attractive garden
  • Two reception rooms
  • Garage & off road parking
  • EPC rating C72
An extended, well maintained family home in the heart of Warden Hill. The versatile accommodation offers separate lounge and dining room, an open plan kitchen/family room with bifold doors to the garden plus a utility and downstairs shower room. With a garage and gardens to the front and rear early viewing is recommended.

Accommodation

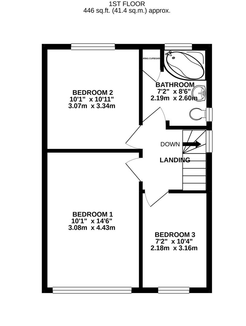
Entrance hall with stairs to first floor and under stairs cupboard. Lounge with window to front aspect. Attractive inset wood effect electric fire, opening to dining room. Dining room with bi-fold doors through to open plan family room with bi-fold doors to the rear garden and three Velux roof lights. Opening to the well fitted kitchen with work surfaces with cupboards and drawers under, stainless steel sink with mixer tap, high level double oven and grill, ceramic hob with extractor over, wine rack, space for dish washer, door to garage. A door off the family room leads to the utility room with door to the rear garden, a range of cupboards with worksurface and stainless steel single drainer sink, plumbing and space for automatic washing machine and tumble drier, door to front. Shower room, fully tiled with low level flush WC, pedestal wash hand basin, shower cubicle with glazed door, chrome ladder towel rail and obscure glazed window to side. First floor landing with window to side aspect. Bedroom one overlooks the front aspect and bedroom two, a further good size double overlooks the rear aspect. Bedroom three, a single overlooks the front aspect. The family bathroom benefits from a large corner bath with shower over, curtain and rail. Vanity unit with inset wash hand basin with cupboard under and low level flush WC. Airing cupboard, chrome ladder heated towel rail and dual aspect obscure glazed windows to rear and side aspect. This beautiful family home further benefits from gas central heating and uPVC double glazing.

Outside

The front of the property is laid to lawn with dwarf brick wall to front boundary, lawn and flower borders, driveway giving access to the attached Garage. The rear garden is laid to lawn, deck and paved patio with flower borders and timber fencing to boundaries.

Location

Located in the popular area of Warden Hill with its thriving local community and amenities to include Co-Op, post office, churches, café and hairdressers, excellent bus services to Cheltenham Town Centre and the Railway Station. In adjoining Up Hatherley there is a large supermarket, doctor's surgery and library.

Tenure, Services & Local Authority

Freehold
All mains services are believed to be connected
Local authority Cheltenham borough council, tax band C - £1,704.10 (2021/22)

Directions

Leave Cheltenham on the A46 Shurdington Road, after the Moorend Road Traffic lights, take the 3rd turning on the right into The Woodlands, follow the road, past a parade of shops and take the 1st turning left into Lincoln Avenue, turn left into Lincoln Avenue the property is at the top on left hand side and can be identified by our for sale board.

Floorplans For Lincoln Avenue, Warden Hill, Cheltenham Floorplans For Lincoln Avenue, Warden Hill, Cheltenham Floorplans For Lincoln Avenue, Warden Hill, Cheltenham
EPC For Lincoln Avenue, Warden Hill, Cheltenham
Arrange a viewing for Lincoln Avenue, Warden Hill, Cheltenham

For further details on this property please call us on:
01242 252699

Property Brochure Download PDF Arrange Viewing