4 1 1

4 bed House - End Terrace - Let
Oxford Road, Kingsholm, Gloucester
PCM - £1,300pcm Tenant Fees

  • Student Property
  • Four Double Bedrooms
  • Part-Furnished
  • Communal Lounge
  • Rear Garden
  • EPC Rating D57
***STUDENT ACCOMMODATION***

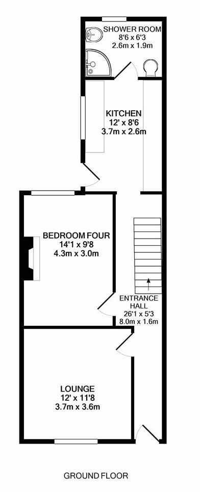
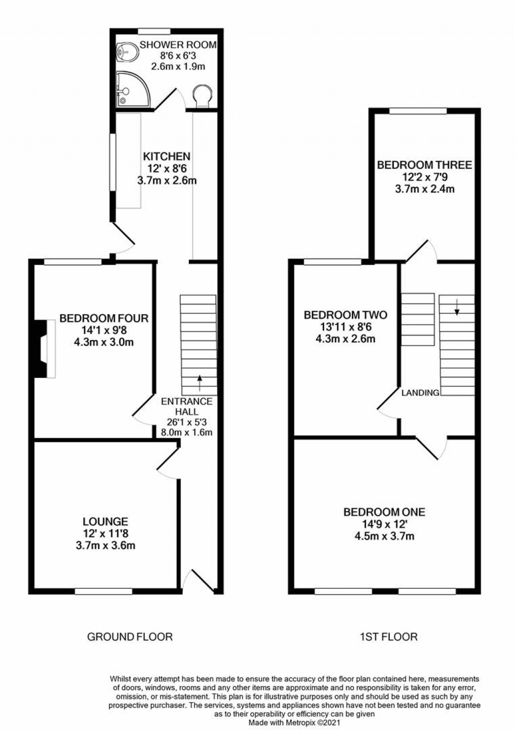
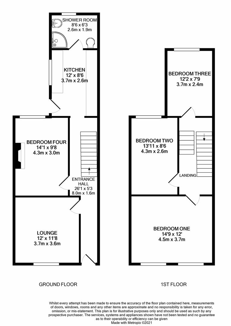
A four bedroom end of terrace property offered on a furnished basis located in the popular area of Kingsholm. The accommodation comprises; communal lounge, kitchen, four double bedrooms and a shower room. The property further benefits from gas central heating, on street parking and is located close to the city centre and local amenities.

AVAILABLE: EARLY AUGUST. DEPOSIT: £1,500. MANAGED BY: LANDLORD.

Kitchen (2.90 x 3.65)

Lounge (3.55 x 3.65)

Bedroom One (3.65 x 4.80)

Bedroom Two (2.60 x 4.25)

Bedroom Three (2.35 x 3.70)

Bedroom Four (2.95 x 4.30)

Shower Room (2.60 x 1.90)

Energy Performance Rating

Current: D57. Potential: B81.

Agent Notes

Utilities are not included in the rent, tenants will be responsible for all payments.

Local Authority

Gloucester City Council - Tax Band B
Annual Charge - £1515.45 - 22/23

Floorplans For Oxford Road, Kingsholm, Gloucester Floorplans For Oxford Road, Kingsholm, Gloucester Floorplans For Oxford Road, Kingsholm, Gloucester
EPC For Oxford Road, Kingsholm, Gloucester
Arrange a viewing for Oxford Road, Kingsholm, Gloucester

For further details on this property please call us on:
01452 398010

Property Brochure Download PDF