4 3 1

4 bed House - Detached - Sold
The Quarry, Dursley
Asking Price - £475,000

  • Four double bedrooms
  • Detached
  • Driveway for two vehicles
  • Light and airy open plan accommodation
  • Enclosed rear garden
  • EPC Rating: B83
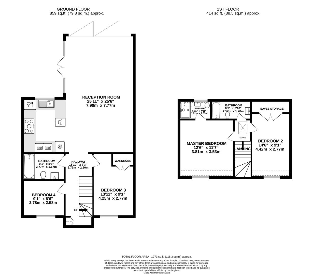
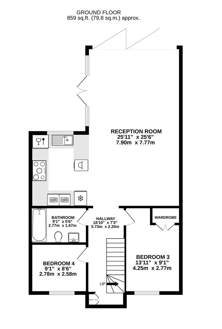
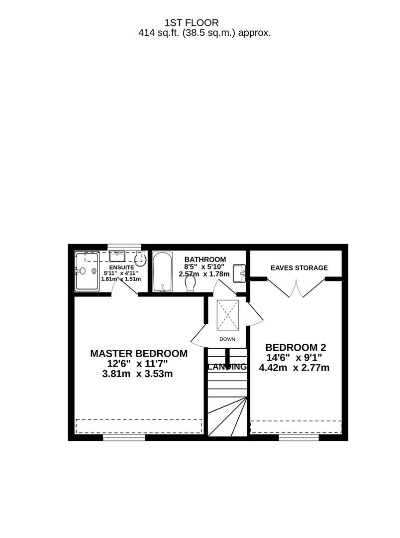
Situated in a sought after area of Cam, this well-proportioned detached property comprises of four double bedrooms with a master en-suite. The open plan kitchen/diner/living room offers light and airy accommodation via a gable end window and bi-fold doors. The kitchen offers modern high gloss units and integrated appliances, whilst the garden boasts an attractive north-west facing lawn area with a patio for alfresco dining. There are two off-road parking spaces and the property is offered to the market CHAIN FREE.

Accommodation

The property is accessed via a beautiful entrance hall that is flooded with light. The entrance hall houses a handy cupboard and space under the stairs for a desk. Off the entrance hall you will find the stunning reception room, boasting full size ceilings and an incredible amount of light, this space proves to be an excellent family area. The kitchen is finished to a high standard with a range of wall and base units and has a built in washing machine, fridge/freezer, dishwasher, electric hob and two ovens, as well as a breakfast bar. The lounge/dining space is the hub of the home and provides ample space to entertain. There are both bifold doors and French doors to the enclosed rear garden, as well as the large gable end windows creating a modern feel. Downstairs you have two of the four bedrooms, bedroom three is a good size double with built in storage and bedroom four is also a well-proportioned double bedroom. The bathroom downstairs has a bath with shower over, low level WC, hand basin and heated towel rail. Upstairs you have a further two double bedrooms off the landing, the landing has a lovely skylight and a high ceiling which gives it an open feel. The master has an en-suite with walk in shower that utilises the space to the best of it's ability, as well as a low level WC, hand basin and heated towel rail. Bedroom two is also a double bedroom with built in storage. The large family bathroom has a bath with shower over, low level WC, hand basin and heated towel rail.

Outside

The property is accessed via a driveway to accommodate parking for two vehicles. To the rear of the property, the garden is mainly laid to lawn, it is fully enclosed and private and benefits from a patio area that is an ideal place to entertain. The property can also be accessed via a side gate from the driveway.

Location

Cam offers a community feel and provides for most of your shopping requirements by way of a supermarket, two pubs and a national award winning butchers. There are also a wide range of sports clubs, leisure facilities and public play areas. Cam has good motorway access by way of the M5, providing good links to Bristol, Gloucester and Cheltenham. Cam and Dursley train station is nearby offering local services to Bristol, Gloucester and beyond. There are plenty of primary schools to choose from as there are five in the local area and also Rednock School which offers secondary education and rated 'Good' by Ofsted.

Tenure, Local Authority and Services

Freehold.
All mains services are believed to be connected to the property. The ground floor is heated by underfloor heating.
Stroud District Council, Tax Band E: £2,425.83.

Directions

From our office in Cam head South towards High Street, at the roundabout take the second exit on to Cam Pitch (A4135). Continue up Cam Pitch (A4135) until you reach the small roundabout, at this roundabout take the second exit onto Woodfield Road. Continue on Woodfield Road until you reach the second small roundabout, at this roundabout take the first exit onto Woodfield Road. Again, continue up Woodfield Road until you reach the final roundabout, take the first exit to continue on to Woodfield Road. Prior to approaching the junction you are met with a right hand turning, take this turn onto The Quarry. Then continue straight on The Quarry until you reach our property that is indicated by the 'For Sale' board.

Floorplans For The Quarry, Dursley Floorplans For The Quarry, Dursley Floorplans For The Quarry, Dursley
EPC For The Quarry, Dursley
Arrange a viewing for The Quarry, Dursley

For further details on this property please call us on:
01453 706707

Property Brochure Download PDF Arrange Viewing