3 2 2

3 bed House - Semi-Detached - Sold
Oatfield Road, Frampton On Severn
Offers Over - £325,000

  • Semi-detached
  • Three bedrooms
  • Conservatory and utility room
  • Wood burner
  • Village location
  • EPC Rating: D60
Situated in the sought after village of Frampton-on-Severn, this spacious and extended three bedroom semi-detached house offers light and airy accommodation with the open countryside on your doorstep. The property comprises of kitchen, lounge with open fireplace, utility room, conservatory, three good size bedrooms, and family bathroom, as well as a shower room downstairs. It benefits from an enclosed rear garden, double glazing and off road parking for several vehicles. CHAIN FREE

Accommodation

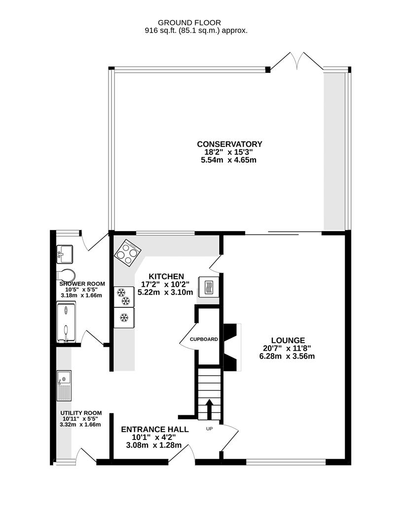
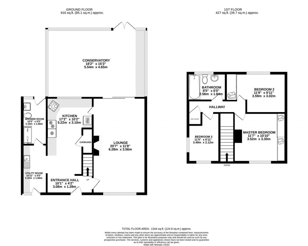
You are welcomed into the property via an entrance hall with space for coats and shoes, which then leads you in to the large kitchen with utility room. The kitchen has a range of wall and base units with an induction hob, electric oven and under counter fridge and freezer, there is also space for a large freestanding fridge-freezer if required. The utility room comes off the kitchen but can also be accessed from the outside. It also has a range of wall and base units, including a sink. There is space for a washing machine. The utility room leads to the downstairs shower room which benefits from a walk in shower, low level WC, hand basin and a heated towel rail. It also gives access to the rear garden. The lounge can be accessed via the kitchen off the entrance hall and boasts a lovely wood burning stove and large windows that provides light and airy accommodation. The living room provides access to the conservatory through French doors. The conservatory offers a great space for family living, it has French doors that lead on to the rear garden. The downstairs shower room and utility space has underfloor heating which is great for those colder days. To the first floor there are two double bedrooms and one single bedroom. Both the master and the second bedroom have a generous amount of built in storage, with the second bedroom having views towards the canal. The bathroom comprises of a bath with shower over, low level WC, hand basin and heated towel rail. On the landing, there is an airing cupboard that houses the immersion heater as well as a good amount of storage.

Outside

To the front of the property, there is a block paved drive providing off road parking for several vehicles. You can access the property via the driveway using both the front door and the utility door. The garden is laid mostly to patio but does benefit from a decking area and artificial grass, there are raised beds which are ideal for the keen gardener. The summerhouse can be left by negotiation.

Location

This home is located in the village of Frampton-on-Severn. The village benefits from a village shop, incorporating a post office, doctors’ surgery, restaurant, pubs and primary school. There are a range of pleasant walks nearby, including the Gloucester and Sharpness canal and the River Severn in Arlingham. The canal provides mooring for boat enthusiasts as well as several family events. Frampton-on-Severn is situated on the eastern side of the River Severn, just under 4 miles from junction 13 of the M5 and the A38, providing easy access to Gloucester, Cheltenham and Bristol. Further facilities can be found in Stonehouse, Stroud, Gloucester and Cheltenham. Mainline railway links to London Paddington can be found at Stroud and Stonehouse, whilst Bristol and Gloucester are accessible via Cam.

Tenure, Local Authority and Services

Freehold.
All mains services are believed to be connected to the property with the exception of gas.
Stroud District Council, Tax Band B: £1,501.02

Directions

From the M5 junction 13, take the A419 towards Frampton and at the roundabout take the first exit on the left for the A38. Take the second turning on the right sign posted for 'Frampton on Severn' and continue into the village. Then take the first right onto Whitminster Lane, then left onto Oatfield Road where the property will be found on the right hand side as indicated by our 'For Sale' board.

Floorplans For Oatfield Road, Frampton On Severn Floorplans For Oatfield Road, Frampton On Severn Floorplans For Oatfield Road, Frampton On Severn
EPC For Oatfield Road, Frampton On Severn
Arrange a viewing for Oatfield Road, Frampton On Severn

For further details on this property please call us on:
01453 706707

Property Brochure Download PDF Arrange Viewing