3 1 1

3 bed House - Semi-Detached - Sold
Narles Road, Cambridge, Gloucester
Asking Price - £375,000

  • Semi-detached house
  • Three bedrooms
  • Good size garden with far reaching views
  • Driveway parking for several vehicles
  • Chain free
  • EPC Rating: E54
Located on a private road is this three-bedroom semi-detached home. It benefits from well-proportioned accommodation and has far reaching views of the beautiful countryside. The accommodation comprises an entrance hall, living room, dining room and kitchen. Upstairs there are two double bedrooms and one single. The property has a larger than average rear garden with a workshop and off road parking for several vehicles. This property is being offered CHAIN FREE and is not to be missed.

Accommodation

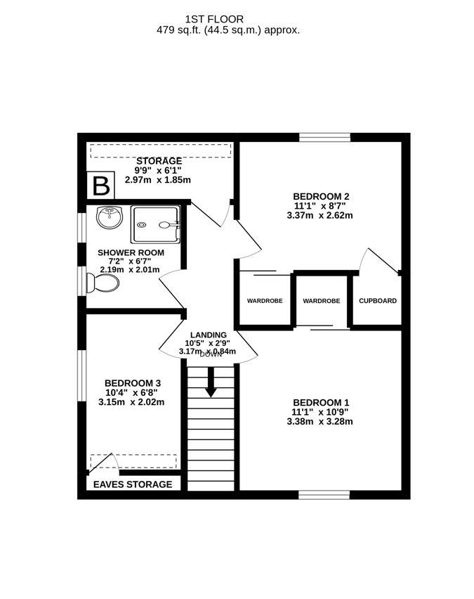
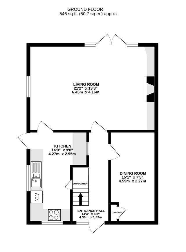
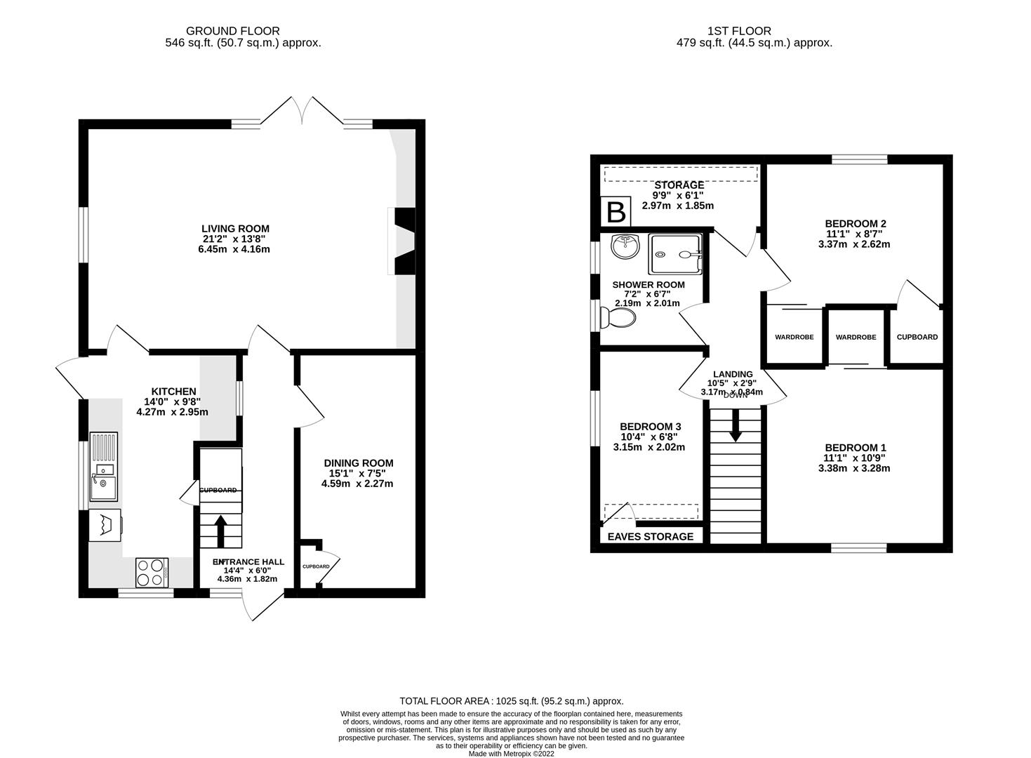
The property is accessed via an entrance hall with doors leading to the living room, dining room and stairs to the first floor. The living room is well-proportioned and provides access to the rear garden via French doors. It offers light and airy accommodation and a wood burner. The kitchen has a range of wall and base units with electric oven and hob as well as washing machine. There is also space for an under counter fridge and freezer. There is a door leading from the kitchen to the side of the house, giving access to both the front and rear of the property. The separate dining room is a good size and has a small storage cupboard that also houses the gas meter, as well as an overhead cupboard housing the consumer unit. On the first floor, there are two double bedrooms and one single. The master bedroom offers a built-in wardrobe and far reaching views. The other two bedrooms also benefit from storage The family bathroom comprises of a shower cubicle, low-level WC and hand basin. At the end of the landing is a large eaves storage cupboard that contains the boiler.

Outside

The property has a large driveway providing ample off-road parking for several vehicles. The rear garden is mostly laid to lawn with a patio area, ideal for alfresco dining area. The garden benefits from an array of greenery and shrubs. The property also offers a workshop and summer house with decking area. The garden can be accessed via the driveway, kitchen and living room.

Location

Cambridge is located on the A38 Bristol Road with motorway access via the M5, providing good links to Bristol, Gloucester and Cheltenham. The nearby villages of Slimbridge and Cam offer a community feel and provide for most of your shopping requirements with a supermarket, pubs and butchers. There are also a wide range of sports clubs, leisure facilities and public play areas. Cam and Dursley train station is nearby offering local services to Bristol, Gloucester and beyond. There are plenty of primary schools to choose from as there are five in the local area and also Rednock School which offers secondary education, rated 'Good' by Ofsted.

Tenure, Services and Local Authority

Freehold
All mains services are believed to be connected to the property.
Stroud District Council. Tax Band C: £1,859.84.

Directions

From the Naylor Powell Cam office next to Tesco GL11 5PS, take the third exit off the roundabout on to the High Street A4135. Follow the A4135 out of Cam until you reach roundabout at Bristol Road, take the third exit on to Bristol Road A38 and continue down for approximately 0.2 miles. You will shortly reach a right hand turn on to Dursley Road, take this turn and follow the road. On your left will be a turning for Narles Road. Follow Narles Road until you are nearly at the top, you will then find out property on your left as indicated by out 'For Sale' board.

Floorplans For Narles Road, Cambridge, Gloucester Floorplans For Narles Road, Cambridge, Gloucester Floorplans For Narles Road, Cambridge, Gloucester
EPC For Narles Road, Cambridge, Gloucester
Arrange a viewing for Narles Road, Cambridge, Gloucester

For further details on this property please call us on:
01453 706707

Property Brochure Download PDF Arrange Viewing