3 2 2

3 bed House - Semi-Detached - Sold
North Road West, The Reddings, Cheltenham
£399,950

  • Semi-rural location
  • Extended semi detached house
  • Local amenities
  • Good access to M5
  • Beautiful gardens to front and rear
  • EPC rating D64
An attractive, extended semi-detached house located in a semi-rural position on the edge of Cheltenham. The property has beautiful gardens to the front and rear, spacious accommodation and benefits from gas central heating and uPVC double glazing.

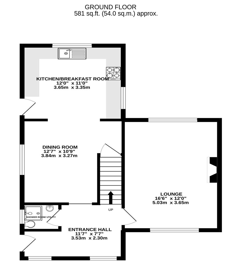
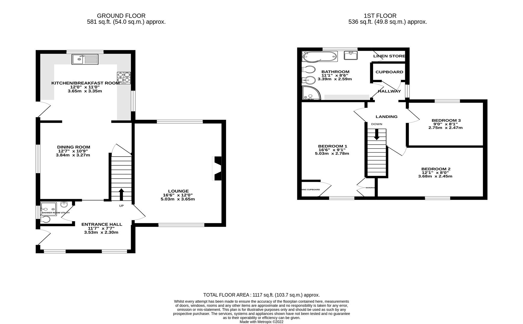
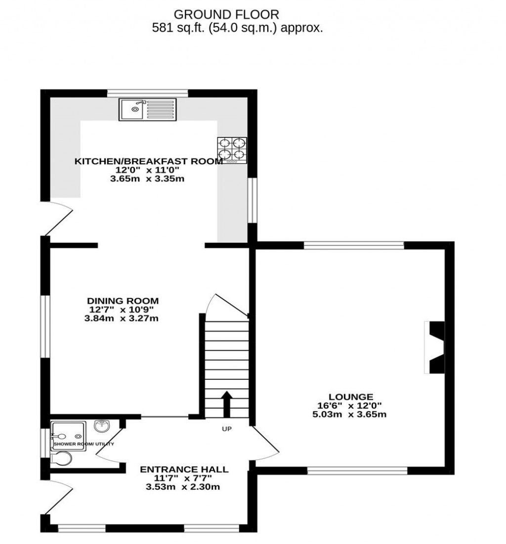
Entrance Hall

Spacious entrance hall with two windows to the front aspect, radiator and stairs to first floor.

Shower Room

Comprising glazed shower cubicle, low level flush WC, wash hand basin and obscure glazed window to the side.

Lounge

Lounge with dual aspect windows to front and rear, fireplace with gas fire in situ, radiator and shelving to alcoves.

Dining Room

Window to side aspect, under stairs storage cupboard, radiator and laminate flooring.

Kitchen

Fully fitted with a range of work surfaces with cupboards and drawers under, wall cupboards, integrated dishwasher, and washing machine, high-level double oven, electric hob with extractor fan over, Astrolite sink with mixer tap, door to driveway and windows to the side and overlooking the rear garden.

Landing

Doors to all rooms off, window to side aspect, large storage cupboard.

Bedroom One

Bedroom one overlooks the front of the property, airing cupboard, radiator, and wardrobe to alcove.

Bedroom Two

A further double with access to roof space, radiator, and window to the front aspect.

Bedroom Three

Bedroom three is another good size room with radiator and has a window overlooking the rear garden.

Bathroom

Spacious family bathroom, very well fitted with corner shower cubicle, bath, low-level flush WC, bidet and wash hand basin. Triple vanity cupboard with work surface over, linen storage cupboard, radiator and obscure glazed window to the rear.

Outside

The property enjoys a long frontage which is laid to lawn and flower borders and a long block paved driveway providing off road parking for several vehicles. The rear garden is beautifully landscaped, laid to lawn, flower borders and paved patio's. There is a garden pond and timber fencing to the boundaries.

Location

The Reddings area of Cheltenham is within easy access of schools and is in the Bournside and Chosen Hill catchment. Local shopping facilities include a corner shop and Asda store. The main A40 provides good access to Cheltenham and Gloucester and the bus route to both centres is close by, as is Junction 11 of the M5 motorway and GCHQ.

Tenure, Services & Local Authority

Freehold
All mains services are believed to be connected
Local authority Cheltenham Borough Council, Tax Band C - £1,738.24 (2022/23)

Floorplans For North Road West, The Reddings, Cheltenham Floorplans For North Road West, The Reddings, Cheltenham Floorplans For North Road West, The Reddings, Cheltenham
EPC For North Road West, The Reddings, Cheltenham
Arrange a viewing for North Road West, The Reddings, Cheltenham

For further details on this property please call us on:
01452 941950

Property Brochure Download PDF Arrange Viewing