3 1 1

3 bed House - Detached - Sold
Spinney Road, Barnwood
£349,950

  • Well presented throughout
  • Kitchen/breakfast room
  • Utility room
  • Ensuite, family bathroom and WC
  • Good sized rear garden
  • Garage and off road parking
  • Gas central heating and double glazing
  • Chain free
  • Local Authority- Gloucester City Council, Tax Band D- £2042.34 (2023/2024)
  • EPC Rating D65
A modern family home located in the sought-after area of Barnwood within easy reach of amenities, bus routes, and schools. This property benefits from a utility room, downstairs WC, en suite to master bedroom, good sized rear garden, and garage. Offered to the market chain free, viewing is highly recommended.

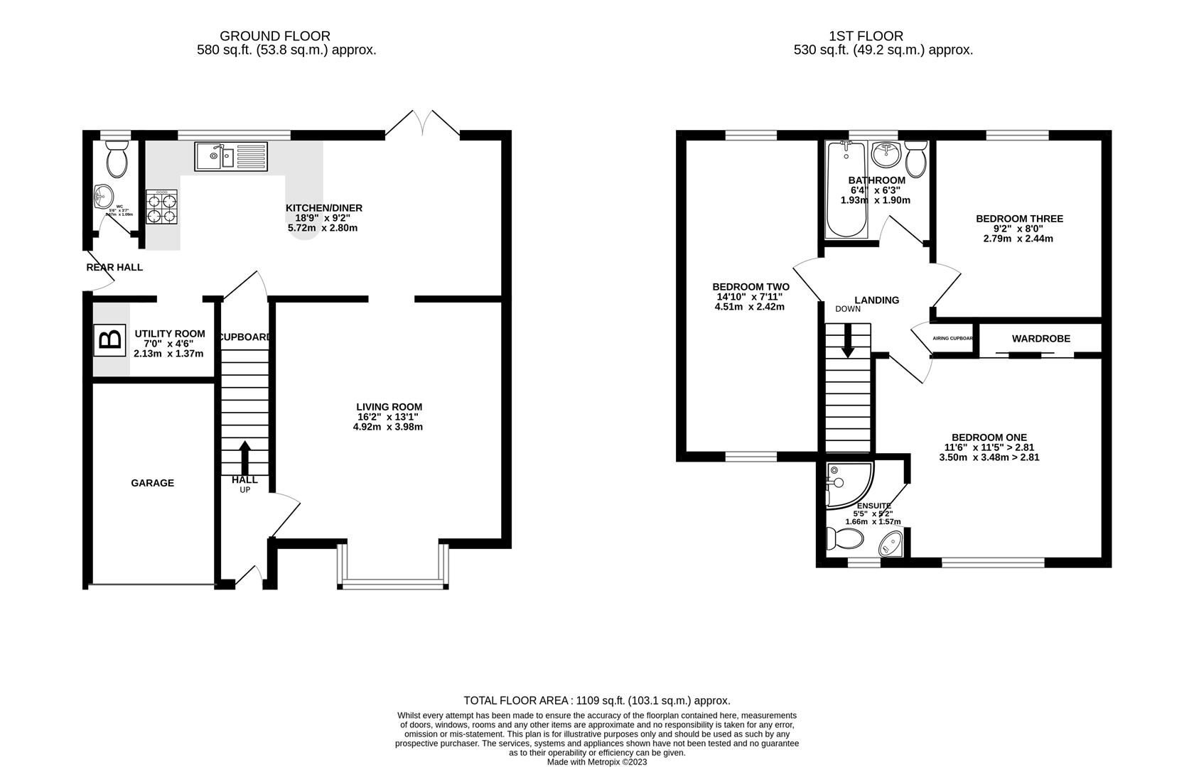
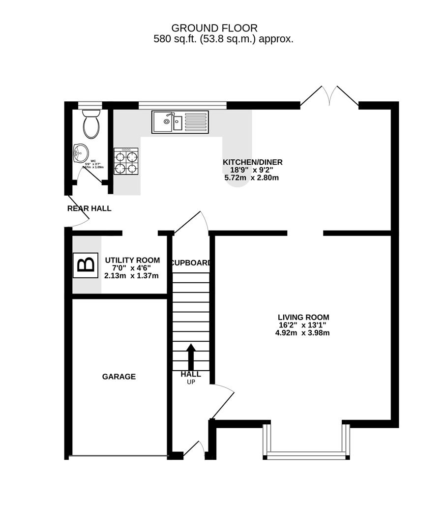
Entrance hall

Stairs to the first floor, radiator, door to;

Living room

Double glazed bay window to front elevation, radiator, archway to;

Kitchen/Breakfast room

Double glazed French doors and window to rear elevation, a range of matching wall and base units with laminate work surface over, inset 1 1/2 bowl stainless steel sink, integrated electric oven with four ring gas hob and extractor fan over, space and plumbing for dishwasher, inset ceiling spotlights, tiled splash backs and flooring, modern anthracite grey radiators, useful understairs storage cupboard, opening to rear hall and archway to;

Utility room

Laminate work surface with wall units including the boiler, space, and plumbing for washing machine, space for fridge/freezer, tiled splash backs and flooring, and inset ceiling spotlights.

Rear hall

Double glazed door-to-side elevation, modern anthracite grey radiator, inset ceiling spot light, door-to;

WC

Double-glazed obscure window to rear elevation, WC, wash hand basin, heated towel rail, tiled splash backs, and flooring.

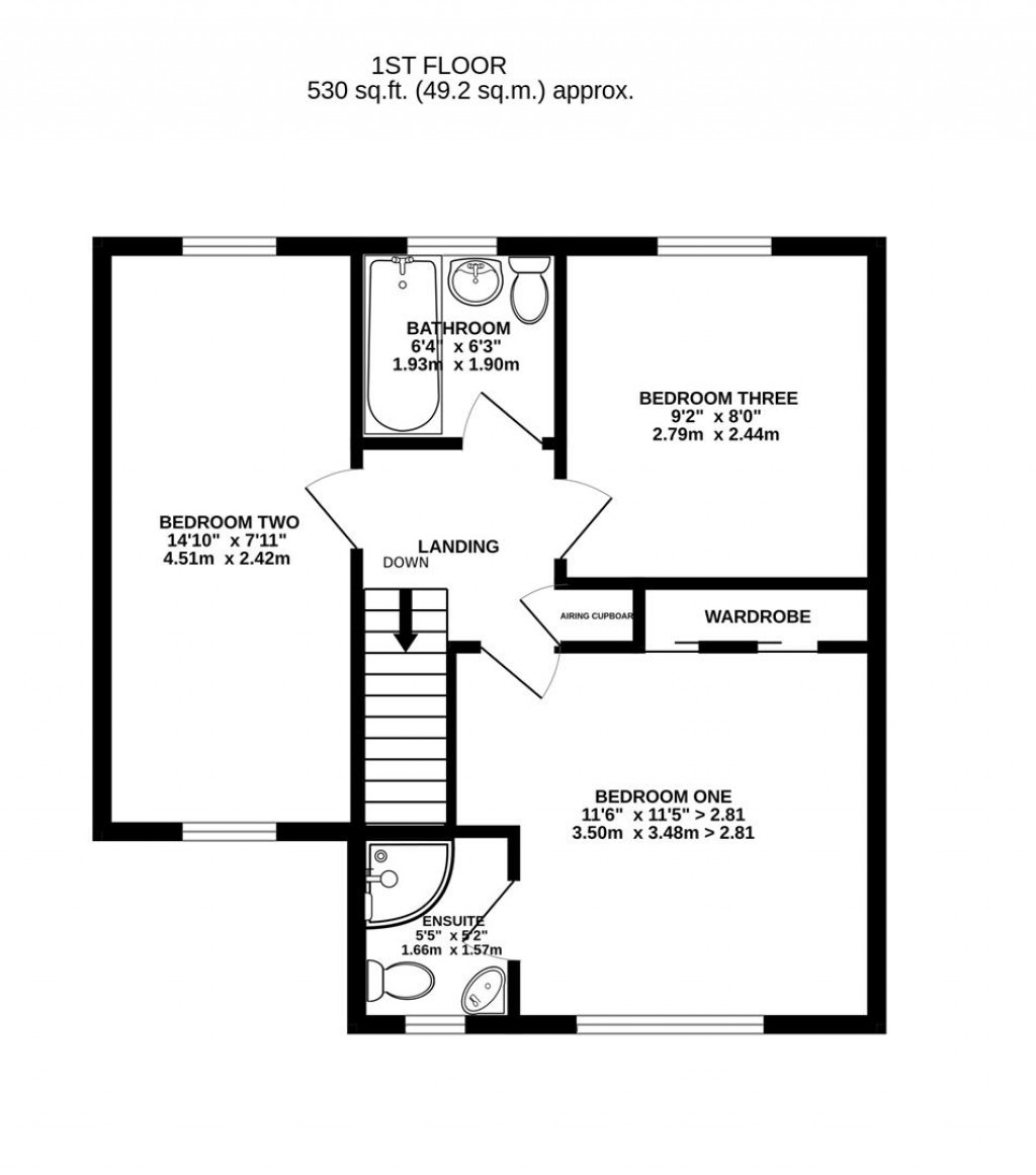
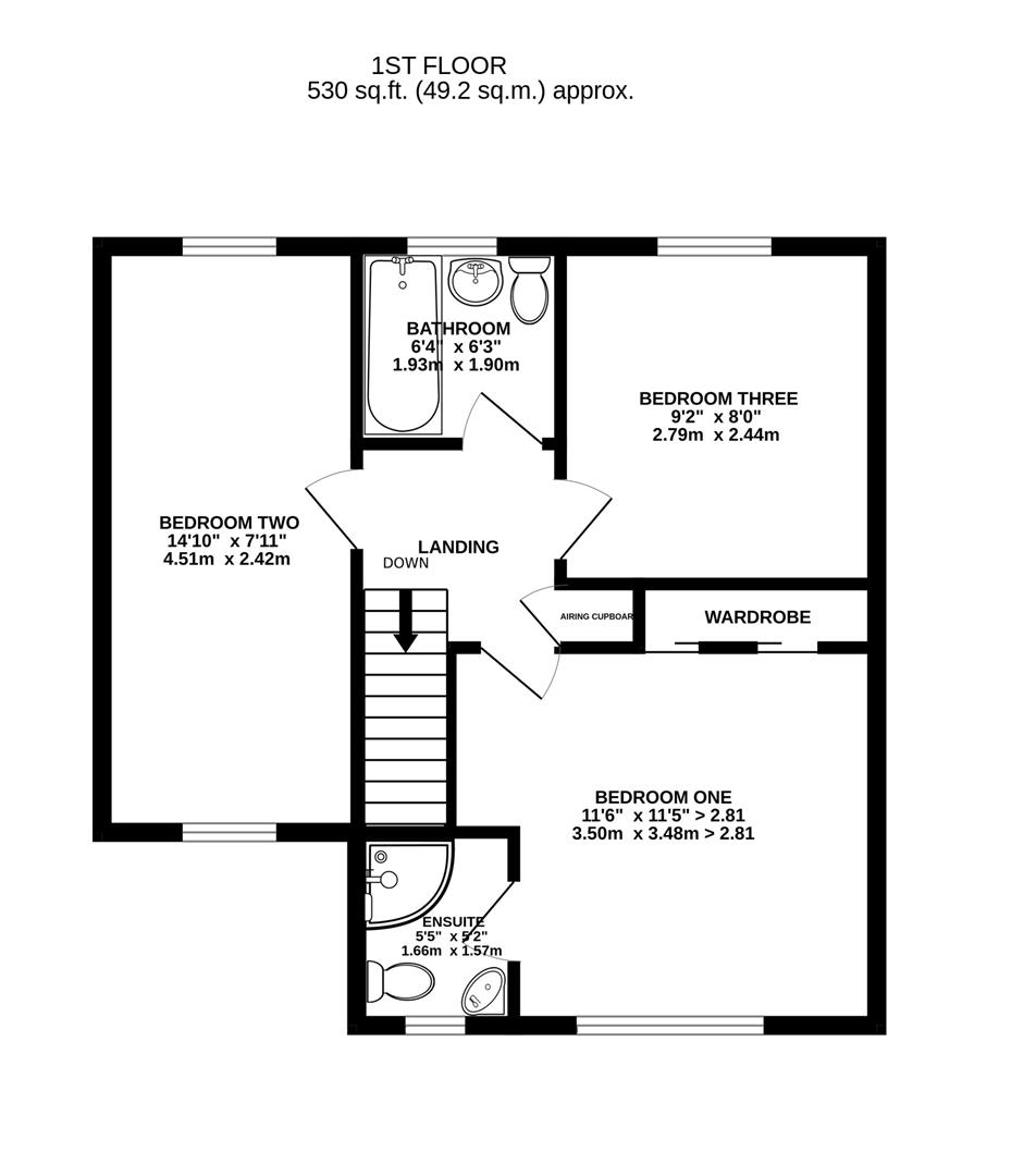
Landing

Airing cupboard, access to loft via hatch, inset ceiling spotlight.

Bedroom One

Double glazed window to front elevation, radiator, double wardrobe with mirror sliding doors, door to;

Ensuite Shower room

Double glazed obscure window to front elevation, tiled shower cubicle, vanity corner wash hand basin with tiled splash backs, WC, extractor fan, modern anthracite grey heated towel rail, laminate flooring.

Bedroom Two

Double glazed windows to both front and rear elevations, two radiators.

Bedroom Three

Double glazed window to rear elevation, radiator.

Bathroom

Double glazed obscure window to rear elevation, bath with shower attachment over, wash hand basin, WC, radiator, tiled splash backs and flooring.

Outside

To the front of the property, there is a drive providing off-road parking for two cars along with access to the garage and side access leading to the front of the property. The drive has inset lighting. To the rear of the property, there is an enclosed garden which is mainly laid to patio with some astro turf on either side of the path which makes it a low maintenance and manageable outside space.

Location

Offering various amenities alongside primary and secondary schooling the suburb of Barnwood has remained a firm favourite with families, offering Barnwood arboretum and nature park, various playgrounds, public transport links as well as easy access to Gloucester City, Cheltenham Spa, and Bristol.

Tenure, Services and Local Authority

Freehold.
All mains services are believed to be connected to the property.
Local Authority- Gloucester City Council, Tax Band D- £2042.34 (2023/2024).

Floorplans For Spinney Road, Barnwood Floorplans For Spinney Road, Barnwood Floorplans For Spinney Road, Barnwood
EPC For Spinney Road, Barnwood
Arrange a viewing for Spinney Road, Barnwood

For further details on this property please call us on:
01452 941950

Property Brochure Download PDF Arrange Viewing