4 2 3

4 bed House - Semi-Detached - Sold
Canberra, Stonehouse
Asking Price - £299,950

  • Semi-detached house
  • Four bedrooms
  • Three reception rooms
  • Well-proportioned accommodation throughout
  • Enclosed rear garden
  • Garage and driveway parking
  • Chain free
  • Freehold
  • Council tax band C (£1,959.00)
  • EPC rating TBC
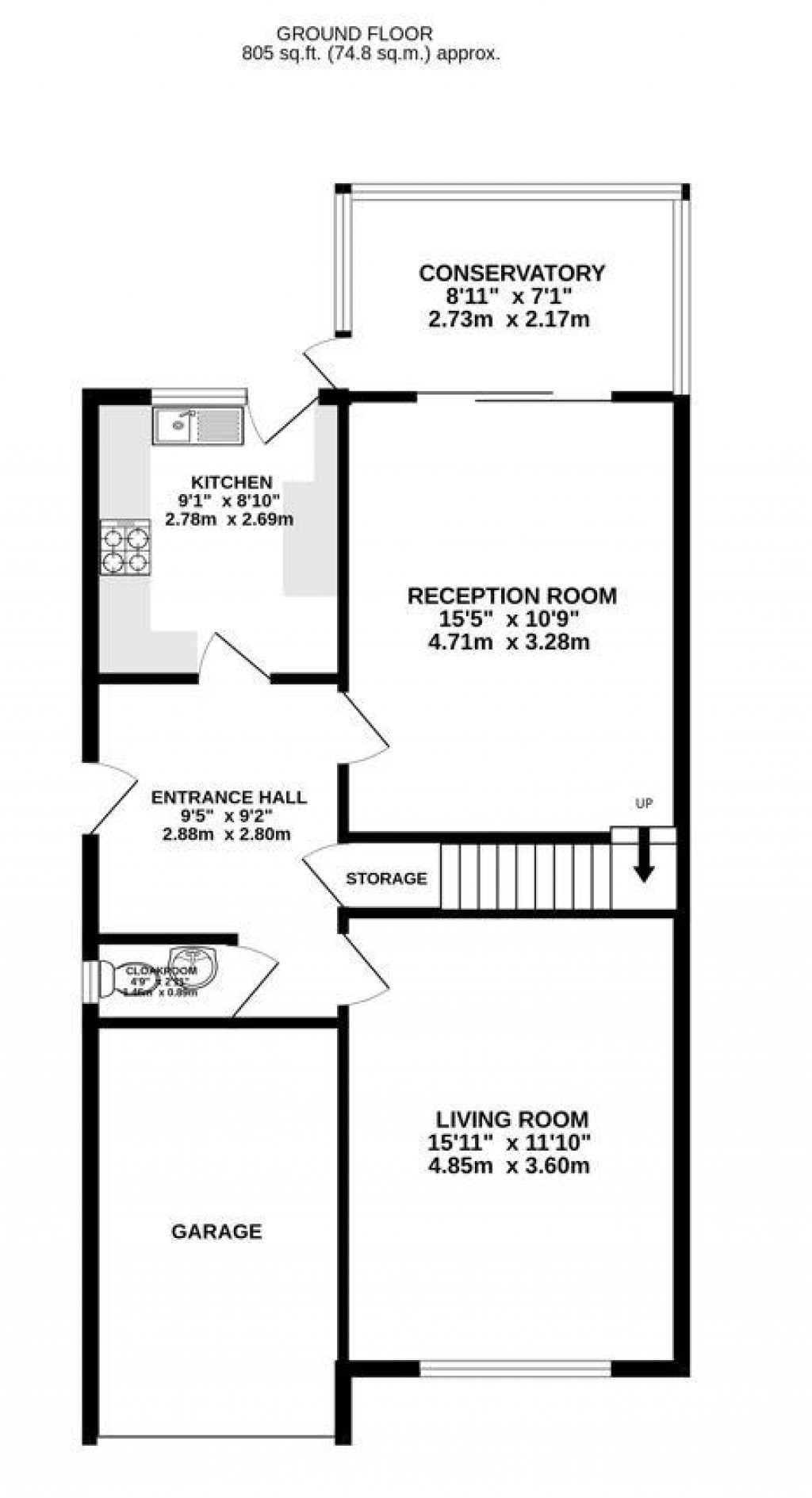
A well-proportioned, four bedroom house in a sought after family area. The ground floor accommodation comprises; kitchen, living room, reception room/dining room, conservatory and cloakroom. Upstairs there are three double bedrooms and a generous single, a WC, shower room and bathroom. The rear garden is fully enclosed and the property benefits from a driveway offering parking for two vehicles and a single garage. The property is being offered chain free and early viewing is advised.

Entrance Hall

uPVC door to entrance hall. Access to ground floor accommodation. Under-stair storage cupboard. Radiator.

Kitchen

uPVC door to rear garden. Range of wall and base units with stainless steel sink with mixer tap and four-burner gas hob and cooker. Space for freestanding fridge/freezer and washing machine.

Living Room

uPVC window to front elevation. Radiator.

Reception Room/Dining Room

Double-glazed sliding door to conservatory. Stairs rising to first floor. Radiator.

Conservatory

uPVC door to rear garden and uPVC double-glazed windows around. Radiator.

Cloakroom

uPVC double-glazed window to side elevation. Low-level WC, wash hand basin and heated towel rail.

Bedroom One

uPVC double-glazed window to front elevation. Radiator.

Bedroom Two

uPVC double-glazed window to rear elevation. Storage cupboard. Radiator.

Bedroom Three

uPVC double-glazed window to front elevation. Storage cupboard. Wash hand basin and drawers. Radiator.

Bedroom Four

uPVC double-glazed window to rear elevation. Radiator.

Bathroom

uPVC double-glazed window to side elevation. Bath with shower over and wash hand basin. Radiator.

Shower Room

Shower cubicle and heated towel rail.

WC

uPVC double-glazed window to side elevation. Low-level WC.

Outside

The front of the property has driveway parking for two vehicles and an additional space laid to lawn. The garage can be accessed via the up and over door at the front and there is side access to the rear garden. The rear garden is mostly laid to lawn with a patio off the conservatory. There is an array of greenery and shrubs to both front and rear gardens creating a private feel.

Location

The property is located just on the edge of Stonehouse town. Local facilities include a Co-op with a Post Office, restaurants, primary and secondary schools. The property is approximately four miles to Junction 12 of the M5 motorway providing access to Gloucester, Cheltenham and Bristol. Stonehouse railway station has a regular train service to London and Cheltenham. The town is situated approximately three miles west of Stroud and twelve miles south of Gloucester.

Tenure, Services and Local Authority

Freehold.
All mains services are believed to be connected to the property.
Stroud District Council, Tax Band C: £1,959.00 (2023/24).

Floorplans For Canberra, Stonehouse Floorplans For Canberra, Stonehouse Floorplans For Canberra, Stonehouse
EPC For Canberra, Stonehouse
Arrange a viewing for Canberra, Stonehouse

For further details on this property please call us on:
01453 827640

Property Brochure Download PDF Arrange Viewing