4 2 2

4 bed House - Detached - Sold
Willow Close, Dursley
Asking Price - £380,000

  • Detached house
  • Four double bedrooms
  • Two reception rooms
  • Landscaped garden
  • Driveway parking for several vehicles
  • Garage with power and light
  • Chain free
  • Freehold
  • Council tax band D (£2,140.40)
  • EPC rating C69
A four bedroom detached property in a cul-de-sac location of Dursley. The family home comprises of a living room, dining room, kitchen and utility on the ground floor, whilst you will find three double bedrooms and a single bedroom on the first floor, along with a family bathroom and an en-suite to the master bedroom. There is a landscaped garden to the rear with flower and shrub borders along with parking to the front for several vehicles. The property is being offered to the market as CHAIN FREE.

Porch

uPVC front door to porch and door to living room. uPVC double-glazed window to front elevation.

Living Room

uPVC double-glazed window to front elevation. Gas fire. Radiator.

Dining Room

Double-glazed sliding door to rear garden. Stairs leading to first floor. Radiator.

Kitchen

uPVC double-glazed window to rear garden. Range of wall and base units. Appliances including enamel sink with drainer and mixer tap, four-burner gas hob with extractor hood over, under-counter fridge and dishwasher.

Utility Room

uPVC double-glazed door to side elevation. Space for washing machine and tumble dryer. Under-counter freezer. Radiator.

Cloakroom

Low-level WC and wash hand basin.

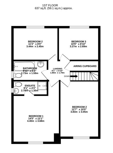
Bedroom One

uPVC double-glazed window to front elevation. Radiator.

En-Suite Shower Room

uPVC double-glazed window to side elevation. Low-level WC, shower cubicle and wash hand basin. Radiator.

Bedroom Two

uPVC double-glazed window to front elevation. Radiator.

Bedroom Three

uPVC double-glazed window to rear elevation. Radiator.

Bedroom Four

uPVC double-glazed window to rear elevation. Radiator.

Bathroom

uPVC double-glazed window to side elevation. Low-level WC, bath with shower over and wash hand basin. Radiator.

Outside

The front of the property benefits from driveway parking for several vehicles, there is also an array of greenery and shrubs along with lawn. The garage can be accessed via the up and over door and has power and light. The rear garden is landscaped and fully enclosed, it is mostly laid to lawn and boasts a colourful display of plants. There is a raised patio space, greenhouse and shed.

Location

Cam offers a community feel and provides for most of your shopping requirements by way of a supermarket, two pubs, and national award-winning butchers. There is also a wide range of sports clubs, leisure facilities, and public play areas. Cam has good motorway access by way of the M5, providing good links to Bristol, Gloucester, and Cheltenham. Cam and Dursley train station is nearby offering local services to Bristol, Gloucester, and beyond. There are plenty of primary schools to choose from as there are five in the local area and also Rednock School which offers secondary education and rated 'Good' by Ofsted.

Tenure, Services and Local Authority

Freehold
All mains services are believed to be connected to the property.
Stroud District Council. Tax Band D: £2,140.40 (2023/24).

Floorplans For Willow Close, Dursley Floorplans For Willow Close, Dursley Floorplans For Willow Close, Dursley
EPC For Willow Close, Dursley
Arrange a viewing for Willow Close, Dursley

For further details on this property please call us on:
01453 827640

Property Brochure Download PDF Arrange Viewing