1 1 1

1 bed Apartment - Sold
Church Road, Stroud
Asking Price - £110,000

  • One bedroom retirement apartment
  • Ground floor
  • Built-in wardrobe
  • Enclosed rear courtyard
  • Good transport links
  • Annual service charge of approximately £3,581.24
  • Annual ground rent of approximately £100.00
  • Leasehold - lease length TBC
  • Council tax band A (£1,458.67)
  • EPC rating C73
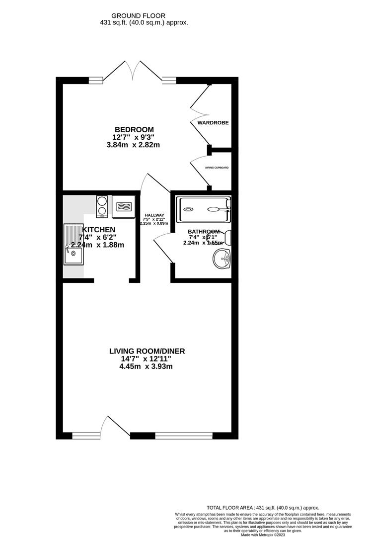
One bedroom, ground floor retirement apartment located in Ebley. The apartment comprises; living/dining room, kitchen with integrated appliances, generous bedroom with built-in wardrobes and a shower room. There is an enclosed courtyard at the rear. CHAIN FREE.

Living Room/Dining Room

Door to living room and two double-glazed windows to front elevation. Access to kitchen and hallway. Two radiators.

Kitchen

Range of wall and base units with appliances to include eye-level oven, two ring induction hob with extractor over, fridge, washing machine, dishwasher and sink with mixer tap and drainer.

Bedroom

uPVC double-glazed French doors to rear garden and uPVC windows to rear elevation. Built-in wardrobe. Airing cupboard. Radiator.

Shower Room

Low-level WC, walk-in shower cubicle and wash hand basin.

Outside

The rear of the property benefits from a fully enclosed courtyard.

Location

The property is located in Ebley, with local amenities such as the Co-operative supermarket, Coffee Bars, and hairdressers. A wider range of facilities are available in Stroud where you will find a variety of restaurants, an award winning twice weekly farmers market, leisure and sports centre and there is also a main line railway station to London (Paddington), Gloucester and Cheltenham.

Material Information

Tenure: Leasehold - 125 years from 1st September 1989. 90 years remaining until 1st January 2114.
Council tax band: A.
Local authority and rates: Stroud District Council - £1,458.67 (2023/24).
Ground rent: approximately £100.00 per annum.
Service charge: approximately £3,581.24 per annum.
Electricity supply: mains.
Water supply: mains.
Sewerage: mains.
Heating: electric heating.
Broadband speed: 15 Mbps (basic) and 80 Mbps (superfast)..
Mobile phone coverage: EE, Three, O2 and Vodafone.

Floorplans For Church Road, Stroud
EPC For Church Road, Stroud
Arrange a viewing for Church Road, Stroud

For further details on this property please call us on:
01453 827640

Property Brochure Download PDF Arrange Viewing