2 1 2

2 bed Bungalow - Semi Detached - Sold
Laura Close, Longlevens, Gloucester
£315,000

  • Two bedroom bay fronted semi-detached bungalow
  • Immaculately presented throughout
  • Generous & flexible living accommodation throughout
  • Positioned on a generous sized plot with front & rear gardens
  • Spacious driveway & integral garage
  • Peaceful cul-de-sac location
  • EPC rating D61
  • Gloucester City Council - Tax Band C (£1,815.41 per annum)
Positioned within a peaceful cul-de-sac location, this spacious two bedroom semi-detached bungalow is located in the popular residential area of Longlevens. Boasting generous living accommodation, private rear garden, garage and driveway for multiple vehicles, viewing is highly advised to see what the property has to offer.

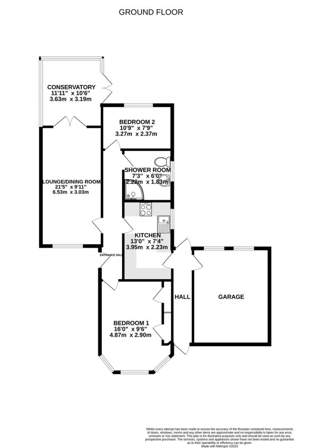
Entrance Hallway

Hallway provides access to both bedrooms, lounge, shower room and kitchen.

Lounge / Dining Room

The generous sized and spacious lounge has an abundance of natural light streaming into the room from the window overlooking the front aspect and double doors that open to the conservatory. The lounge further benefits from convenient space for a dining area.

Conservatory

The conservatory provides further living space to the property doubling up as an additional living room or garden rooms with views across the gardens. French doors provide access to the garden itself.

Kitchen

Fitted modern kitchen with ample worktop and storage space benefits from convenient space for freestanding appliances. Window overlooks the side aspect whilst door provides further access to the garage and garden.

Bedroom One

Large double bedroom with built-in wardrobes and bay fronted window overlooking the front aspect.

Bedroom Two

Bedroom with window overlooking the rear aspect.

Shower Room

Modern white suite shower room comprising of walk-in shower cubicle, w.c, wash hand basin and heated towel rail. Window with frosted glass overlooks the side aspect.

Integral Garage

The spacious hallway opens to both the front and rear of the property providing an ideal walkway without needing to enter the house itself. Access is also provided the kitchen and to the garage benefitting from power and lighting with up and over door to the front.

Outside

To the front of the property there is block paved driveway providing off road parking for four vehicles. To the rear of the property, a private and low maintenance garden is laid with gravel and decking. Access is also provided to the garage, kitchen and conservatory.

Location

A highly sought after suburb of the historic Gloucester City Centre, Longlevens offers potential purchasers with various local amenities to include local stores, hairdressers, primary and secondary schooling alongside transportation links ideal to both the city centre alongside Cheltenham to the north and Bristol to the south. The city centre itself continues to offers a variety of additional amenities and shopping destinations alongside direct train links to London Paddington set within the mix of historical charm and modern conveniences.

Local Authority, Services & Tenure

Gloucester City Council - Tax Band C (£1,815.41 per annum).
Mains water, drainage, gas and electricity are connected to the property.
Freehold.

Floorplans For Laura Close, Longlevens, Gloucester
EPC For Laura Close, Longlevens, Gloucester
Arrange a viewing for Laura Close, Longlevens, Gloucester

For further details on this property please call us on:
01452 398010

Property Brochure Download PDF Arrange Viewing