2 2 2

2 bed House - Mid Terrace - Sold
Cecil Road, Gloucester
£195,000

  • Two double bedroom Victorian terraced property with en-suite to master
  • Spacious open living accommodation
  • Enclosed low maintenance rear garden
  • Situated in the popular residential area of Linden
  • Potential rental income of £925 pcm
  • EPC rating D63
  • Gloucester City Council - Tax Band A (£1,361.56 per annum)
Situated in the popular residential location of Linden, this charming two double bedroom terraced Victorian property is offered to the market. Benefitting from generous living accommodation, two bathrooms and an enclosed rear garden, viewing is highly advised for residential buyers and investors alike with a potential rental income of £925 pcm.

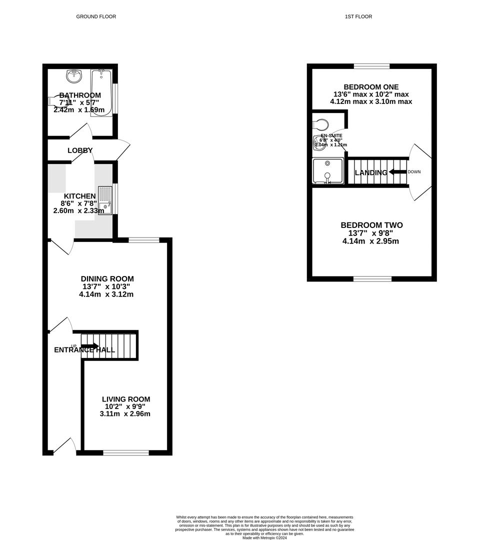
Entrance Hallway

Hallway provides access to the living room aswell as to the stairs leading to the first floor accommodation.

Living Room / Dining Room

The open plan space provides convenient space for both living and dining areas if required with the stairwell itself providing the separation with built-in storage cupboard below. Windows overlook the front and rear aspects whilst access is also provided to the kitchen.

Kitchen

The kitchen benefits from ample worktop and storage space with integrated gas hob and electric oven. Window overlooks the side aspect whilst in-turn providing access to the bathroom and to the rear garden.

Bathroom

White suite tiled family bathroom comprises of w.c, wash hand basin, bath with shower attachment over, window with frosted glass overlooking the side aspect and plumbing for an automatic washing machine.

Landing

Access is provided to both bedrooms and to the loft above.

Bedroom One

Double bedroom with window overlooking the rear aspect and access to an en-suite.

En-Suite

Modern white suite shower room comprising of w.c, wash hand basin and shower cubicle.

Bedroom Two

Double bedroom with window overlooking the front aspect.

Outside

The spacious rear garden is enclosed with fenced borders. Patio area leads to an area of astro turf carrying on to a further raised patio area to the rear offering convenient space for seating.

Location

A popular location in the historic City of Gloucester, with easy access to the M5, Cecil Road is ideally placed for local amenities including primary, secondary and grammar schooling. A short distance away is the newly developed Gloucester Quays, where a range of retail outlets can be found alongside restaurants, bars and cinema whilst the city centre is home to the historic Cathedral, various listed buildings, transport links to include the newly developed bus station and train station providing direct links to London Paddington. Robinswood Hill Country Park is half a mile from the property and open countryside approximately a mile away.

Material Information

Tenure: Freehold.
Local Authority and Rates: Gloucester City Council - Tax Band A (£1,361.56 per annum).
Electricity supply: Mains.
Water supply: Mains.
Sewerage: Mains.
Heating: Gas central heating.
Broadband speed: Standard 9 Mbps, Superfast 67 Mbps, Ultrafast 1000 Mbps download speed.
Mobile phone coverage: EE, Three, O2, Vodafone

Floorplans For Cecil Road, Gloucester
EPC For Cecil Road, Gloucester
Arrange a viewing for Cecil Road, Gloucester

For further details on this property please call us on:
01452 398010

Property Brochure Download PDF Arrange Viewing