3 1 3

3 bed House - Semi-Detached - Sold
Middle Street, Eastington, Stonehouse
£365,000

  • Semi-detached cottage
  • Three bedrooms
  • Living room with fireplace
  • Additional study
  • South-facing mature garden
  • Easy access to local footpaths and walking routes
  • Sought after village location
  • Freehold
  • Council tax band C (£2,045.54)
  • EPC rating D68
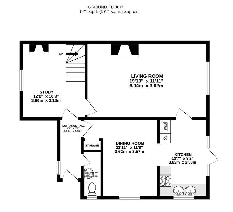
Situated in the sought after village of Eastington, this three bedroom cottage offers well-proportioned accommodation with the open countryside on your doorstep. The ground floor comprises; entrance hall, cloakroom, study, living room, dining room and kitchen. On the first floor is the bathroom and three bedrooms, one with wardrobes. The property has far reaching views of the surrounding area and provides easy walking routes into the village via the footpaths in the neighbouring field. The garden is South facing and a great space to entertain. This property is CHAIN FREE.

Entrance Hall

Wooden door to entrance hall and uPVC double-glazed window. Access to dining room, study and cloakroom. Radiator.

Kitchen

Dual aspect uPVC double-glazed windows and double-glazed door to the garden. Range of wall and base units with shelving. Appliances include a four ring gas hob, double-oven, undercounter fridge and two stainless steel sinks. Space for washing machine. Radiator.

Living Room

uPVC double-glazed window. Brick fireplace with open fire. Additional door to study. Two radiators.

Dining Room

uPVC double-glazed window. Storage space. Radiator.

Study

uPVC double-glazed window with views across fields. Gas fire. Stairs rising to the first floor. Radiator.

Cloakroom

uPVC double-glazed window. Low-level WC and wash hand basin.

Bedroom One

uPVC double-glazed window. Radiator.

Bedroom Two

Dual aspect uPVC double-glazed windows. Built-in wardrobes. Radiator.

Bedroom Three

uPVC double-glazed window. Over-stairs storage. Radiator.

Bathroom

uPVC double-glazed window. Low-level WC, bath with shower over and wash hand basin. Heated towel rail and radiator.

Outside

The property is accessed via a footpath from Middle Street. To the front there is a footpath to the entrance hall and has a flower border leading on to the garden. The mature garden is South facing and boasts an array of plants and greenery. It is mostly laid to lawn with a patio space. In addition to this there an allotment area and green house, ideal for the keen gardeners. There is a further storage shed at the rear. The property has easy access into Eastington village via the footpaths through the neighbouring field, as well as Eastington Farm Shop and Café which is a hotspot for socialising with the locals..

Location

The property is situated in the popular village of Eastington. It is positioned West of Stonehouse town and is extremely convenient for Junction 13 of the M5 motorway, the A38 and the A419 roads. There are useful facilities within Eastington such as a Community Centre, Village Hall, Co-op, post office, a butchers, hairdressers, The Old Badger and the Lazy Goose Café. The property is located within the catchment area for Eastington Primary School which has an Outstanding Ofsted report. For further amenities and facilities, Stonehouse town is approximately 3.3 miles providing a train Station which has a mainline to London Paddington.

Material Information

Tenure: Freehold.
Council tax band: C.
Local authority and rates: Stroud District Council - £2,045.54 (2024/25).
Electricity supply: mains.
Water supply: mains.
Sewerage: mains.
Heating: gas central heating.
Broadband speed: 3 Mbps (basic), 38 Mbps (superfast) and 1000 Mbps (ultrafast).
Mobile phone coverage: EE, O2 and Vodafone.

Floorplans For Middle Street, Eastington, Stonehouse Floorplans For Middle Street, Eastington, Stonehouse Floorplans For Middle Street, Eastington, Stonehouse
EPC For Middle Street, Eastington, Stonehouse
Arrange a viewing for Middle Street, Eastington, Stonehouse

For further details on this property please call us on:
01453 827640

Property Brochure Download PDF Arrange Viewing