3 1 2

3 bed House - End Terrace - Sold
Gloucester Road, Stonehouse
£295,000

  • End of terrace house
  • Three bedrooms
  • Conservatory space
  • Mature rear garden
  • Driveway parking for two vehicles
  • Garage with power and light
  • Chain free
  • Freehold
  • Council tax band D (£2,310.40)
  • EPC rating D56
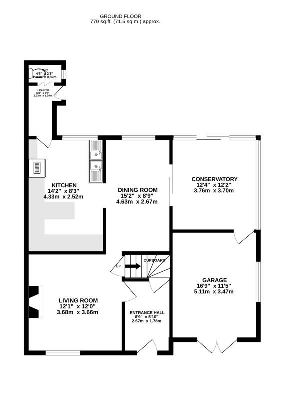
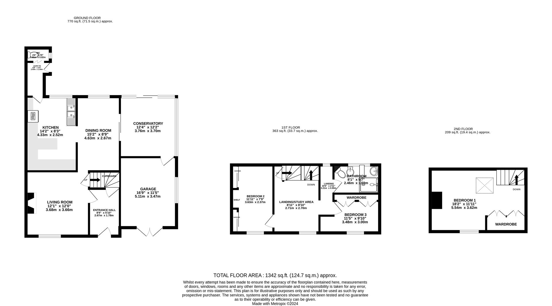
This three bedroom end of terrace house offers lots of potential to add your own stamp. The accommodation is spread over three floors and comprises; entrance hall, living room, dining room, kitchen, conservatory, three bedrooms and a bathroom. To the front of the property is driveway parking for two vehicles. There is a garage with power and light and an enclosed rear garden. The property is being offered to the market CHAIN FREE.

Entrance Hall

Wooden door to entrance hall. Access to living room. Under-stairs cupboard. Radiator.

Living Room

Double-glazed window to front elevation. Gas fire. Door with stairs rising to the first floor. Radiator.

Kitchen

Double-glazed window to rear elevation. Range of wall and base units with appliances to include two bowl stainless steel sink with drainers and mixer tap and freestanding oven with electric hob. There is space for a washing machine and undercounter fridge. Radiator.

Dining Room

Double-glazed window to rear elevation and sliding doors to conservatory. Radiator.

Conservatory

Sliding door to rear garden and double-glazed windows around. Access to garage.

Lean-To Storage

Wooden door to rear garden. Folding door to WC.

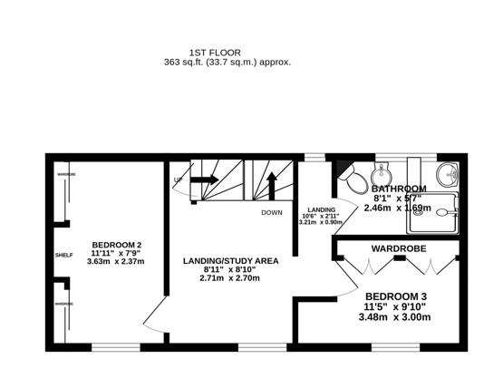
Landing/Study Area

Double-glazed window to front elevation. Stairs to ground floor and first floor. Radiator.

Bedroom One

Double-glazed window to front elevation and Velux window to rear elevation. Built-in wardrobes. Radiator.

Bedroom Two

Double-glazed window to front elevation. Built-in wardrobes. Radiator.

Bedroom Three

Double-glazed window to front elevation. Built-in wardrobes. Radiator.

Bathroom

Double-glazed window to rear elevation. Low-level WC, bidet, wash hand basin, shower cubicle and heated towel rail.

Outside

The property has off-road parking for two cars. The mature rear garden boasts an array of greenery and trees. It is fully enclosed and has both a lawned area and hard paving. The garage can be accessed via the front drive and has power and light, the boiler can also be found in the garage.

Location

The property is located on the edge of Stonehouse town. Local facilities and amenities include a Co-op with post office, restaurants and primary and secondary schools. The property is approximately 3.6 miles to Junction 12 of the M5 motorway, providing access to Gloucester, Cheltenham and Bristol. Stonehouse railway station has a regular train service to London and Cheltenham. The town is situated approximately three miles west of Stroud and twelve miles south of Gloucester.

Material Information

Tenure: Freehold.
Council tax band: D.
Local authority and rates: Stroud District Council - £2,310.40 (2024/25).
Electricity supply: mains.
Water supply: mains.
Sewerage: mains.
Heating: gas central heating.
Broadband speed: 15 Mbps (basic), 80 Mbps (superfast) and 9000 Mbps (ultrafast)
Mobile phone coverage: EE, Three, O2 and Vodafone.

Floorplans For Gloucester Road, Stonehouse Floorplans For Gloucester Road, Stonehouse Floorplans For Gloucester Road, Stonehouse Floorplans For Gloucester Road, Stonehouse
EPC For Gloucester Road, Stonehouse
Arrange a viewing for Gloucester Road, Stonehouse

For further details on this property please call us on:
01453 827640

Property Brochure Download PDF Arrange Viewing