2 0 1

2 bed House - Mid Terrace - Let
Bittern Avenue, Abbeydale, Gloucester
PCM - £950pcm Tenant Fees

  • Parking for Two Cars
  • Gas Central Heating
  • Suburb Location
  • 2 Bedroom House
  • Large Rear Garden
  • EPC - C71
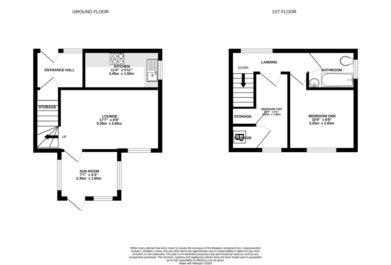
Naylor Powell present this 2 bedroom house, situated in the sought after suburb of Abbeydale. The newly refurbished property boasts two cosy bedrooms, spacious living room with conservatory and large rear garden. Further benefits include; parking spaces for two cars and gas central heating.

This property is available early July and is managed by The Landlord. There is a restriction of no pets or smokers.

Services & Material Information

Rent: £950 per calendar month
Holding Deposit: £219 based on 1 weeks’ rent of asking price
Security Deposit: £1,096 based on 5 weeks’ rent of asking price
Council tax band: B
Local authority and rates: Gloucester City Council, £1662.93 24/25
Electricity supply: Mains
Water supply: Mains
Sewerage: Mains
Heating: Gas Central Heating
Broadband speed: i.e Basic 16 Mbps, Ultrafast 1000 Mbps
Mobile phone coverage: i.e EE, Vodaphone

Floorplans For Bittern Avenue, Abbeydale, Gloucester
EPC For Bittern Avenue, Abbeydale, Gloucester
Arrange a viewing for Bittern Avenue, Abbeydale, Gloucester

For further details on this property please call us on:
01452 398010

Property Brochure Download PDF