3 2 1

3 bed House - Mid Terrace - Sold
Great Oldbury Drive, Great Oldbury, Stonehouse
£290,000

  • Three bedroom town house
  • Opportunity to purchase a 50% share if required - Sage will consider allowing any share above 50%
  • Immaculately presented throughout
  • Master suite with en-suite shower room
  • Enclosed rear garden
  • Two parking spaces
  • Approximately 5 years remaining on the NHBC warranty
  • Freehold based on purchasing the 100% share
  • Council tax band C (£2,058.46)
  • EPC rating B86
An immaculately presented three bedroom town house, situated in the Great Oldbury development. There is an opportunity to purchase this property with the 100% share or on a shared ownership scheme with a 50% share. The property comprises; kitchen/diner, living room and cloakroom to the ground floor. On the first floor there is a double bedroom, generous single bedroom, study area and family bathroom. The master suite can be found on the second floor along with an en-suite shower room. The rear garden is fully enclosed and leads to the two allocated parking spaces.

Entrance Hall

Composite door to entrance hall. Access to kitchen/diner and stairs rising to the first floor.

Kitchen/Diner

uPVC double-glazed window to front elevation. Access to cloakroom and living room. Under-stairs storage cupboard. Range of wall and base units with appliances to include stainless steel one and a half bowl sink with mixer tap and drainer, four ring electric hob, oven and freestanding fridge freezer. Space for washing machine and dishwasher. Radiator.

Living Room

uPVC double-glazed sliding doors to rear garden. Radiator.

Cloakroom

Low-level WC and wash hand basin. Radiator.

Bedroom One

Four double-glazed Velux windows to rear elevation. Radiator.

En-Suite Shower Room

Double-glazed Velux window to rear elevation. Walk in shower, low-level WC and wash hand basin. Radiator.

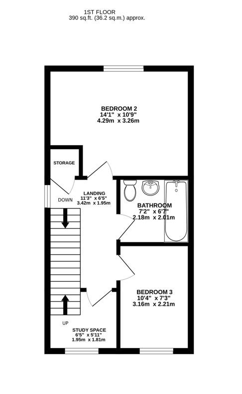
Bedroom Two

uPVC double-glazed window to rear elevation. Radiator.

Bedroom Three

uPVC double-glazed window to front elevation. Radiator.

Study Space

uPVC double-glazed window to front elevation. Stairs rising to the second floor. Radiator.

Bathroom

Low-level WC, bath with shower over, wash hand basin and heated towel rail.

Outside

The front of the property is accessed via a footpath with lawn and plants either side. The rear garden is fully enclosed and can be accessed via the rear gate from the two allocated parking spaces. It is mostly laid to lawn with a patio area.

Location

This property is located within the Great Oldbury development which provides ease of access to both Eastington and Stonehouse. Local facilities and amenities include a Co-op with post office, restaurants, and primary and secondary schools. The property is within 0.5 mile of Junction 13 of the M5 motorway, providing access to Gloucester, Cheltenham, and Bristol. Stonehouse railway station has a regular train service to London and Cheltenham. The town is situated approximately three miles west of Stroud and twelve miles south of Gloucester.

Material Information

Tenure: Freehold.
Council tax band: C.
Local authority and rates: Stroud District Council - £2,058.46 (2025/26).
There may be a service charge when the development is complete.
Electricity supply: mains.
Water supply: mains.
Sewerage: mains.
Heating: gas central.
Broadband speed: 7 Mbps (basic), 33 Mbps (superfast) and 1000 Mbps (ultrafast).
Mobile phone coverage: EE, Three, O2 and Vodafone.

Agents Note

The vendor is selling their 50% leasehold share. The remaining 50% will be purchased from Sage, resulting in the purchase being the 100% freehold. There is also an option to purchase the property on a 50% shared ownership scheme. There may be fees payable to Sage during the staircasing process. Should you wish to purchase the 50% leasehold share, the details on the lease are below:

Monthly rental cost £332.000
Lease length - 125 years beginning June 2020 with 120 years remaining.
Annual ground rent £4,634.40.
Ground rent next review period is 01/04/2025.
Annual service charge £991.56.
Service charge next review period is 01/04/2025.

Sage Homes Shared Ownership Eligible Criteria

- You must not own another property in the UK at the time you complete on your shared ownership purchase
- Your annual household income must not exceed £80,000 (£90,000 per annum within Greater London)
- You must not currently own a property in the UK or overseas
- You are a British or EU Citizen, or you have the right to remain in the UK
- You must be over 18 if you are applying for a mortgage
- You must have sufficient savings in addition to your deposit to cover the cost of legal fees and mortgage arrangement

Floorplans For Great Oldbury Drive, Great Oldbury, Stonehouse Floorplans For Great Oldbury Drive, Great Oldbury, Stonehouse Floorplans For Great Oldbury Drive, Great Oldbury, Stonehouse Floorplans For Great Oldbury Drive, Great Oldbury, Stonehouse
EPC For Great Oldbury Drive, Great Oldbury, Stonehouse
Arrange a viewing for Great Oldbury Drive, Great Oldbury, Stonehouse

For further details on this property please call us on:
01453 827640

Property Brochure Download PDF Arrange Viewing