2 2 1

2 bed House - Mid Terrace - Sold Subject to Contract
Robin Court, Stonehouse
£229,000

  • Mid-terrace house
  • Two double bedrooms
  • Sunny conservatory
  • Front and rear garden
  • Ideal for first time buyers or buy to let investors
  • Opportunity to add your own stamp
  • Chain free
  • Freehold
  • Council tax band B (£1,883.49)
  • EPC rating C72
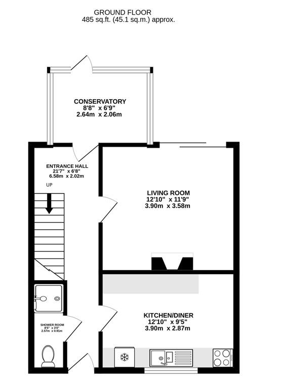
This two double bedroom property is situated within a popular cul-de-sac location in Stonehouse. It is being offered to the market chain free and boasts sizeable accommodation throughout. The property comprises a living room, kitchen/diner, conservatory and shower room on the ground floor, whilst there are two double bedrooms, WC and bathroom on the first floor. The property further benefits from low-maintenance front and rear gardens.

Entrance Hall

uPVC door to entrance hall. Access to living room, kitchen/diner, conservatory and shower room. Stairs rising to the first floor with stairlift. Radiator.

Kitchen

uPVC double-glazed window to front elevation. Range of wall and base units with appliances to include washing machine, fridge/freezer and stainless steel one and a half bowl sink with mixer tap and drainer. Radiator.

Living Room

Double-glazed sliding doors to rear garden. Electric fireplace. Radiator.

Conservatory

uPVC double-glazed door to rear garden and windows surrounding. Tumble dryer.

Shower Room

Low-level WC and shower cubicle. Heated towel rail.

Bedroom One

Two uPVC double-glazed windows to rear elevation. Over-stairs storage cupboard. Radiator.

Bedroom Two

uPVC double-glazed window to front elevation. Radiator.

WC

uPVC double-glazed window to front elevation. Low-level WC.

Bathroom

uPVC double-glazed window to front elevation. Bath with shower over and wash hand basin. Radiator.

Outside

The property benefits from both front and rear gardens, the front being laid to patio with shrubs creating additional privacy. The rear garden is fully enclosed and can be accessed via the rear gate. It is mostly laid to patio with gravelled borders and shrubs. There is a handy storage shed. There is on-street parking on a first come first serve basis.

Location

The property is located on the edge of Stonehouse town. Local facilities and amenities include a Co-op with post office, restaurants and primary and secondary schools. The property is approximately 2.7 miles to Junction 13 of the M5 motorway, providing access to Gloucester, Cheltenham and Bristol. Stonehouse railway station has a regular train service to London and Cheltenham. The town is situated approximately three miles west of Stroud and twelve miles south of Gloucester.

Material Information

Tenure: Freehold.
Council tax band: B.
Local authority and rates: Stroud District Council - £1,883.49 (2025/26).
Electricity supply: mains.
Water supply: mains.
Sewerage: mains.
Heating: gas central heating.
Broadband speed: 9 Mbps (basic) and 34 Mbps (superfast).
Mobile phone coverage: EE (Limited), Three (Limited), O2 (Limited) and Vodafone (Limited).

Agents Note

The property is subject to a Grant of Probate. The application is in but has not yet been granted.

Floorplans For Robin Court, Stonehouse Floorplans For Robin Court, Stonehouse Floorplans For Robin Court, Stonehouse
EPC For Robin Court, Stonehouse
Arrange a viewing for Robin Court, Stonehouse

For further details on this property please call us on:
01453 827640

Property Brochure Download PDF Arrange Viewing