4 2 3

4 bed House - Detached - Sold Subject to Contract
Watts Close, Hucclecote
£549,950

  • En suite to master bedroom
  • Three reception rooms
  • Individual detached home
  • Detached garage and parking
  • Utility Room
  • Private gated driveway
  • Good size and enclosed rear garden
  • Popular location close to local amenities and local schools
  • Gloucester City Council, Tax Band E - £2736.28 per annum 2025/26
  • EPC Rating - C74
Executive Family Home in Exclusive Gated Setting

This exceptional executive-style residence, one of only three bespoke homes built by renowned developer Woodborough Homes in 2005, is tucked away at the end of a private driveway shared by just three properties. With secure electric gated access, the home offers an enviable combination of privacy, security, and refined elegance.

Immaculately maintained by the current owners and presented in pristine condition, the property features spacious, well-balanced accommodation throughout. Highlights include a generously sized living room, a contemporary kitchen fitted with premium appliances, and multiple bedrooms offering flexible space for family living or visiting guests.

Outside, beautifully landscaped gardens provide a backdrop for outdoor relaxation and entertaining. Additional benefits include ample off-road parking and an integral garage, adding to the convenience and appeal of this distinguished home.

Early viewing is highly recommended to fully appreciate the quality and exclusivity of this outstanding residence.

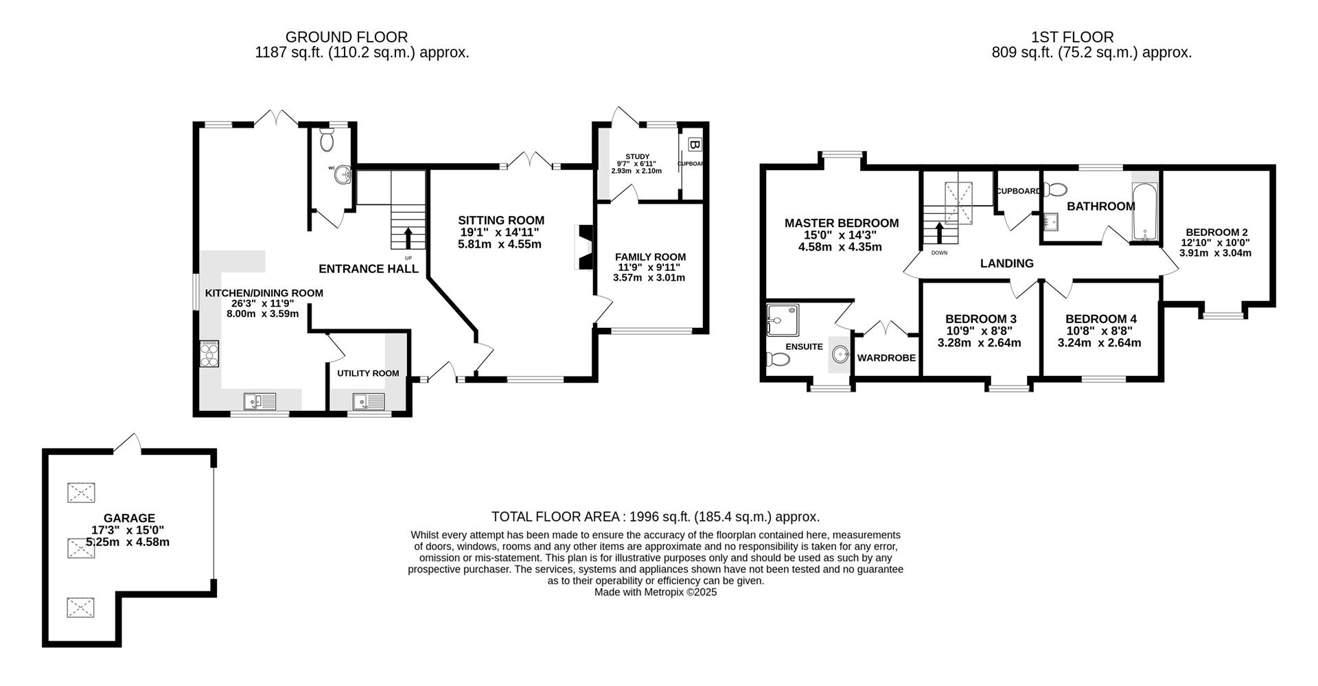
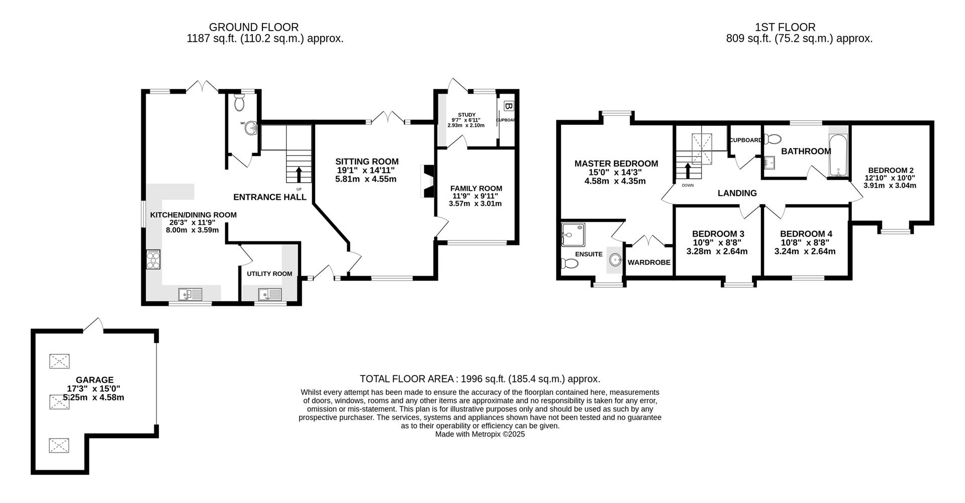
Entrance Hall

Karndine flooring, stairs to first floor, radiator, understairs storage cupboard, exposed beams, door to living room, door to cloakroom, opening to kitchen.

Kitchen/Dining Room

Double glazed windows to side, front, and rear aspect, doors to garden, modern fitted kitchen comprising of a range of eye and base level units with work surfaces over, one and a half bowl sink, integrated dishwasher, integrated fridge, and freezer, wine cooler, freestanding range-style cooker with overhead extractor fan, Karndine flooring, exposed beams, two radiators, door to:

Utility Room

A range of eye and base level units with work surfaces over, one and a half bowl sink, space for washing machine and tumble dryer, window to front aspect, radiator, tiled flooring, and splashbacks.

Cloakroom

Obscured window to rear aspect, white suite comprising low-level WC, pedestal wash hand basin, extractor fan, radiator.

Sitting Room

Window to front aspect, exposed beams, stone fireplace and hearth, two radiators, french doors to garden, door to;

Family Room

Window to front aspect, radiator, door to;

Study

Window and door to rear aspect, radiator, Karndean flooring, fitted cupboard with wall-mounted boiler.

First Floor Landing

Radiator, storage cupboard, velux window, doors to all bedrooms, and bathroom.

Master Bedroom

Karndine flooring, radiator, window to rear aspect, built-in wardrobes, door to;

En Suite Shower Room

Karndine flooring, modern white suite comprising of low-level WC, wash hand basin, tiled shower cubicle, tiled splashbacks, and radiator.

Bedroom Two

Window to front elevation, radiator.

Bedroom Three

Window to front elevation, radiator.

Bedroom Four

Window to front elevation, Karndine flooring, radiator.

Family Bathroom

Window to rear aspect, modern white suite comprising low-level WC, pedestal wash hand basin, and panelled bath with wall-mounted shower over and fitted shower screen, extractor fan, radiator, and Karndine flooring.

Garage

Power and light, up and over door to front aspect, pedestrian door to side aspect, three velux windows, roof void storage, workshop area.

Outside

To the front of the property is off-road parking for several cars and gated side access to the rear of the property.
The South West Facing rear garden is mainly laid to lawn with a paved patio area along with further gravel seating areas, flower and shrub borders, and a pathway leading to a good-sized side gravel area.

Location

Located within the popular area of Hucclecote where there are various local amenities including the local junior schools Hillview and Dinglewell as well as access to several secondary and grammar schooling being located within the City. A short distance away is access to the M5 providing ideal links to Birmingham and Bristol whilst a direct line to London Paddington can be located at Gloucester Station.

Material Information

Tenure - Freehold
Council Tax Band E
Gloucester City Council - £2736.28 per annum 2025/26
Electricity supply: Mains
Water supply: Mains
Sewerage: Mains
Heating: Gas central heating
Broadband speed: Standard 15 Mbps, Superfast 51 Mbps
Mobile phone coverage: Vodafone (Limited), EE (Likely), Three (Limited) and O2 (Limited)

Floorplans For Watts Close, Hucclecote Floorplans For Watts Close, Hucclecote Floorplans For Watts Close, Hucclecote
EPC For Watts Close, Hucclecote
Arrange a viewing for Watts Close, Hucclecote

For further details on this property please call us on:
01452 941950

Property Brochure Download PDF Arrange Viewing