3 1 2

3 bed House - Semi-Detached - Sold
Westfield Road, Brockworth, Gloucester
£339,950

  • Well proportioned 1930s semi detached property
  • Character features
  • Living room with wood burner
  • Loft room with potential to create into a fourth bedroom subject to the relevant permissions
  • Car port and off road parking
  • Adjacent to open green space
  • Gas central heating and double glazing
  • Chain free
  • Tewkesbury Borough Council - Tax Band C- £1,908.88 per annum (2024/2025)
  • EPC rating C77
Situated adjacent to an open green space, is this 1930's property with an array of character features. This well-presented property has been extended to the rear and benefits from off-road parking to the front and side as well as a good-sized west-facing rear garden. Offered to the market chain free, viewing is highly recommended to appreciate all that this property has to offer.

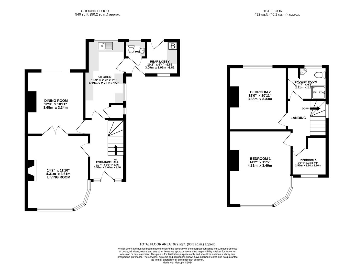
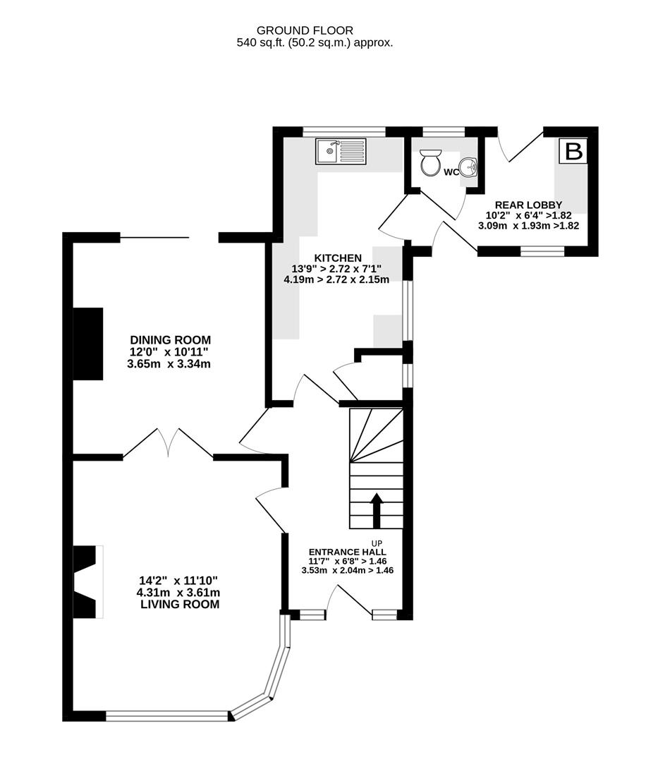
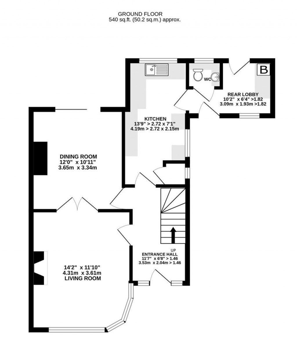
Entrance Hall

Two double-glazed windows to front elevation, radiator, wooden flooring, stairs to first floor, doors to all internal rooms.

Living Room

Double glazed bay window to front elevation, radiator, wood burner with fireplace, wooden double doors to;

Dining Room

Double glazed patio doors to the rear elevation, leading out into the garden, radiator, door to entrance hall.

Kitchen

Double glazed windows to both the side and rear elevations, a range of matching wall and base units with laminate work surface over, breakfast bar, inset one bowl stainless steel sink, space for freestanding gas cooker, space, and plumbing for washing machine, space for under counter appliance, useful pantry (with double glazed window to side elevation and light), radiator, tiled splash backs, and flooring, door to;

Utility Room/Rear Lobby

Double glazed window and door to front elevation, double glazed door to rear elevation leading out into the garden, laminate work surface with under counter cupboard space, space for freestanding fridge freezer and space for tumble dryer, wall mounted boiler, tiled flooring.

WC

Double glazed obscure window to rear elevation, WC, wash hand basin, tiled splash backs.

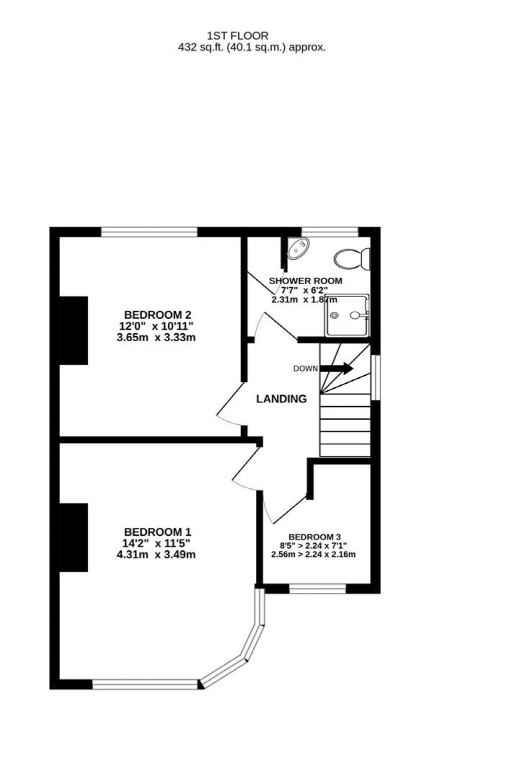
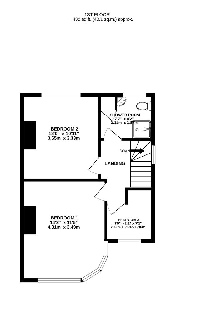
On The First Floor

Landing

Double-glazed window to side elevation, access to loft via a hatch which has a built-in ladder, light, and is boarded.

Bedroom One

Double-glazed bay window to front elevation, radiator, and picture rails.

Bedroom Two

Double-glazed window to rear elevation, radiator, and picture rails.

Bedroom Three

Double-glazed window to front elevation, radiator, and picture rails.

Bathroom

Double-glazed obscure window to rear elevation, shower cubicle, corner wash hand basin with mixer tap, WC, airing cupboard, heated towel rail, tiled splash backs, laminate flooring.

Loft Room (5.48 x 3.61)

With a dormer window to the side elevation and radiator.

Outside

To the front of the property is a driveway providing off-road parking for three cars. The generous-sized rear garden benefits from both patio and lawned areas with a storage shed and greenhouse. With a variety of mature shrubs and raised beds, this garden is a perfect space for entertaining.

Location

Brockworth is well located between Cheltenham and Gloucester and enjoys a range of local amenities including; Shops, a Library, a Supermarket, Pubs, and Restaurants. There is a selection of Primary and Secondary Schools within the local area and regular bus services. Brockworth business park and shopping park are a short distance from the property and junction 11A of the M5 motorway is within easy access.

Material Information

Tenure: Freehold.
Council Tax band: Tax band C
Local authority and rates: Tewkesbury Borough Council- £1,908.88 per annum (2024/2025)
Electricity supply: Mains
Water supply: Mains
Sewerage: Mains
Heating: Gas Central heating.
The solar panels are owned by the vendor.
Broadband speed: Standard 8 Mbps, Superfast 76 Mbps and Ultrafast 1000 Mbps.
Mobile phone coverage: Vodafone (Likely), O2 (Limited), EE (Likely) and Three (Limited).

Floorplans For Westfield Road, Brockworth, Gloucester Floorplans For Westfield Road, Brockworth, Gloucester Floorplans For Westfield Road, Brockworth, Gloucester
EPC For Westfield Road, Brockworth, Gloucester
Arrange a viewing for Westfield Road, Brockworth, Gloucester

For further details on this property please call us on:
01452 941950

Property Brochure Download PDF Arrange Viewing