4 1 2

4 bed House - Detached - Sold Subject to Contract
Hucclecote Road, Brockworth
£779,000

  • Chain Free
  • Established front and rear gardens approaching 3/4 of an acre
  • Recently re-decorated
  • Ample off road parking
  • Popular location
  • Close to good transport links
  • Close to local schools and amenities
  • Character features
  • Tewkesbury Borough Council - Tax Band E (£2,750.16 per annum 2025/26)
  • EPC D55
A unique and well-proportioned Edwardian property with large gardens front and rear approaching a quarter of an acre and the addition of a sizeable field at the rear approaching half an acre. This additional space lends itself to many opportunities, such as living the "good life", development, or business. The property is set back from the road and accessed via a long drive. The house benefits from many period features, including high ceilings and staircase. Having recently undergone refurbishment with a new bathroom, kitchen, boiler, central heating system, and rewire. A rare opportunity to secure a much-loved family home is offered to the market with no onward chain.

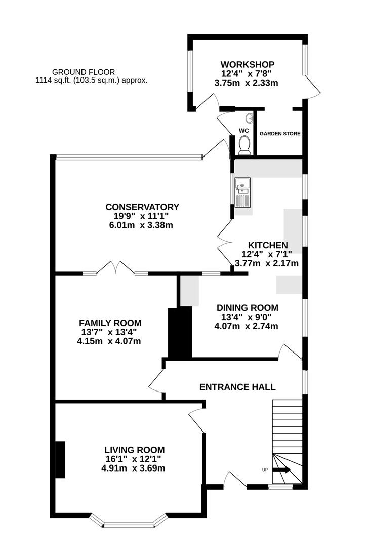
Entrance Hall

Double-glazed window to the front and side elevation, radiator, stairs to the first floor, doors to all downstairs accommodation.

Living Room

Double-glazed bay window to the front elevation, radiator, inset feature fireplace.

Kitchen/Dining Room

Three double-glazed windows to the side elevation, a single-glazed window to the side elevation, double doors leading into the conservatory, matching wall and base units with worktops over, inset 1 1/2 stainless steel bowl sink, an integrated electric hob, an integrated oven, space for a fridge freezer, space for a dishwasher, and a radiator.

Family Room

Single-glazed double doors leading into the conservatory, two single-glazed windows either side, radiator, and inset feature fireplace.

Conservatory

Single-glazed windows to the front elevation. Double-glazed window to the side elevation, space for a washing and drying machine.

Stairs to the first floor

Landing

Access to all first-floor accommodation, double-glazed window to the side elevation.

Bathroom

Double-glazed obscure window to the front elevation, bath with shower over, WC, hand wash basin, heated towel rail.

Bedroom One

Double-glazed window to the front elevation, radiator.

Bedroom Two

Double-glazed window to the rear elevation, radiator.

Bedroom Three

Double-glazed window to the side elevation, radiator.

Stairs to the second floor

Bedroom Five/Dressing Room

Boiler, double-glazed window to the side elevation, doors to the eaves storage, radiator, door to;

Bedroom Four

Double-glazed window to the front elevation, double-glazed Velux window, doors to eaves storage, radiator.

Outside

To the front of the property is a driveway providing off-road parking along with a lawned area with mature trees and shrubs. To the rear of the property, you have a larger than average garden with various mature trees and shrubbery. The total plot size amounts to approximately three quarters of an acre.

Outside toilet

WC, wash hand basin.

Workshop

Power and lighting, single glazed windows to both side elevations.

Location

Situated on the old Roman road that connects Gloucester with Barnwood, Hucclecote, and Cirencester. Local facilities include Tesco, Greggs, Costa Coffee, Subway, Badham's Chemist and gym. Cheltenham town centre is only six or so miles distant.

Material Information

Tenure: Freehold.
Council Tax band: Tax band E
Local authority and rates: Tewkesbury Borough Council -(£2,750.16 per annum 2025/26)
Electricity supply: Mains
Water supply: Mains
Sewerage: Mains
Heating: Gas Central heating.
Broadband speed: Standard 10Mbps, Ultrafast 1000Mbps
Mobile phone coverage: Vodafone (Likely), EE(Likely), O2(Likely) and Three(Likely)

Floorplans For Hucclecote Road, Brockworth Floorplans For Hucclecote Road, Brockworth Floorplans For Hucclecote Road, Brockworth Floorplans For Hucclecote Road, Brockworth
EPC For Hucclecote Road, Brockworth
Arrange a viewing for Hucclecote Road, Brockworth

For further details on this property please call us on:
01452 941950

Property Brochure Download PDF Arrange Viewing