3 1 2

3 bed House - Semi-Detached - Sold Subject to Contract
Folly Lane, Stroud
£320,000

  • Semi-detached house
  • Three bedrooms
  • Sun room
  • Well-proportioned accommodation throughout
  • Enclosed rear garden
  • Garage
  • Close to local amenities
  • Freehold
  • Council tax band C (£2,212.11)
  • EPC rating F31
Situated in the popular Uplands area of Stroud, this three bedroom semi-detached property provides some great family space and briefly comprises living room/diner, sun room, kitchen, downstairs utility/WC on the ground floor. Upstairs you will find two double bedrooms and a single bedroom along with a recently refurbished bathroom. There is a fully enclosed rear garden with decked area and summerhouse. There is some garage storage space as well as driveway parking for three vehicles.

Entrance Hall

uPVC double glazed front door. Access to utility/downstairs WC and living room and stairs to first floor. radiator.

Kitchen

uPVC double glazed window to front and side elevation. uPVC double glazed door to the side. A range of wall and base units with worktop over, integrated appliances to include electric hob and oven with extractor over and fridge freezer.

Living Room/Diner

uPVC double glazed window to the side elevation and concertina doors to the rear. Log burner and feature fireplace. Radiator.

Sun Room

Wooden patio doors leading to the garden. This room is accessed from the living room.

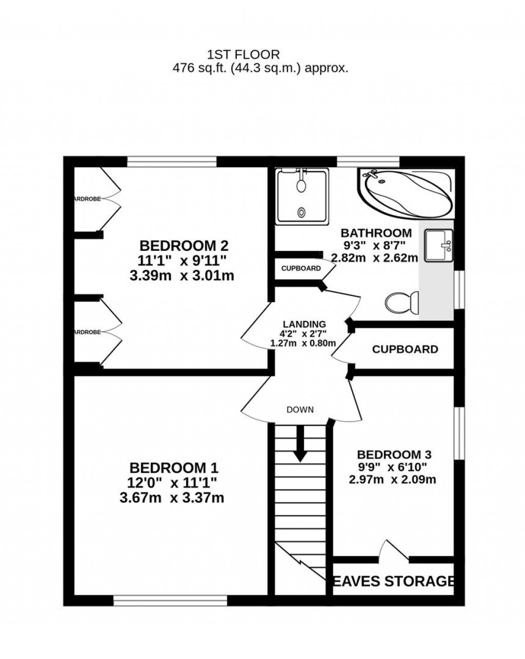
Bedroom One

uPVC double glazed window to the front elevation. Radiator.

Bedroom Two

uPVC double glazed window to the rear elevation. Radiator.

Bedroom Three

uPVC double glazed window to the side. Radiator.

Bathroom

uPVC double glazed window to the rear and side elevation, vanity sink and low level WC, bath, separate walk in shower, heated towel rail.

Outside

To the front of the property, there is off-road driveway parking for three vehicles. There are double doors to access the half-garage. Gated side access leads round to the rear garden which is fully enclosed and part-decked providing an entertainment space. There is a lawned area and a summerhouse.

Location

The property is located on the outskirts of Stroud in the ever popular Uplands and is within convenient access to local amenities to the Town Centre. Amenities include a range of schools, supermarkets and newsagents, a leisure and sports centre, and an award-winning weekly farmers market. Junction 13 of the M5 Motorway is within easy reach and provides access to Gloucester, Cheltenham and Bristol.

Material Information

Tenure: Freehold.
Council tax band: C.
Local authority and rates: Stroud District Council - £2,212.11 (2025/26).
Electricity supply: mains.
Water supply: mains.
Sewerage: mains.
Heating: gas central heating.
Broadband speed: 12 Mbps (basic) and 80 Mbps (superfast).
Mobile phone coverage: EE, Three (Limited), O2 and Vodafone (Limited).

Floorplans For Folly Lane, Stroud Floorplans For Folly Lane, Stroud Floorplans For Folly Lane, Stroud
EPC For Folly Lane, Stroud
Arrange a viewing for Folly Lane, Stroud

For further details on this property please call us on:
01453 827640

Property Brochure Download PDF Arrange Viewing