3 2 1

3 bed - Sold Subject to Contract
Wantridge, Kempley, Dymock
£350,000

  • Three bedroom family home with no onward chain
  • Ample off road parking with garage and workshop
  • Far reaching rural views
  • Located in rural village
  • Solar panels with battery storage that give a financial return of approx £1500 PA
  • Tax band C
  • EPC (tbc)
A three bedroom semi detached family home within the village of Kempley boasting far reaching views to both the front and rear and benefiting from parking for 5 vehicles, solar panels with batteries that pays between £1500-£2000 PA included and a generous rear garden.

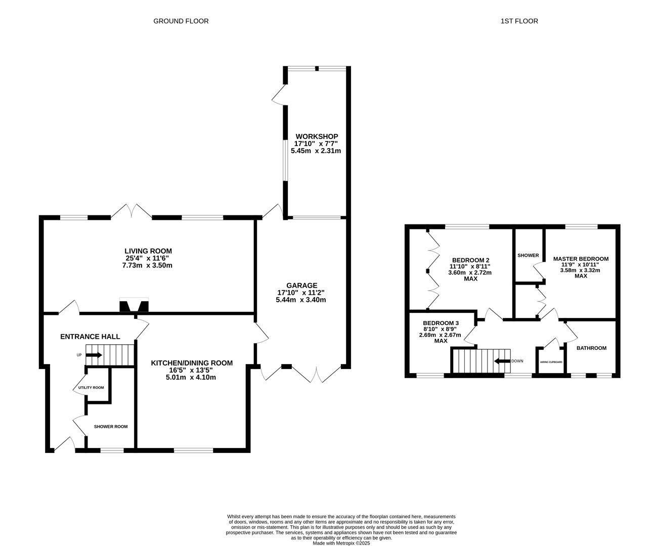
Living Room

Spacious living room with windows to rear aspect and French doors leading to the patio area.

Kitchen / Dining Room

A well appointed kitchen with a range of floor and eye level units and integrated appliances to include oven, induction hob, fridge, freezer and dishwasher. Window to front aspect with views towards the Malvern Hills. There is also a door giving access into the garage.

Shower Room

Shower room to include WC, handwash basin and wet room style shower flooring.

Utility cupboard

Utility area to provide space and plumbing for washing machine and extra storage.

Master Bedroom

Double bedroom to include fitted wardrobes and a shower room to include hand wash basin and shower enclosure. Window to rear aspect with rural views.

Bedroom Two

Double bedroom to include fitted wardrobes. Window to rear aspect with rural views.

Bedroom Three

Window to front aspect with far reaching views.

Family Bathroom

Tiled bathroom with white suite comprising of WC, hand wash basin and bathtub with over head shower.

Workshop / Garage

To include worktops and extra storage. Also provides access to the front and rear aspect of the property.

Outside

To the front of the property you have a large driveway providing parking for 5 vehicles. The rear of the property boasts a large patio area suitable for al fresco dining with stunning rural views and steps leading down to a lawned area with various garden sheds and good sized outbuilding.

Location

Kempley village is located in the Forest of Dean district of Gloucestershire. It lies 12 miles northwest of Gloucester and is 5 and 8 miles respectively from the market towns of Newent and Ledbury. A popular location due to its rural situation and good travel links. Kempley lends itself to those looking to enjoy the 'good life' within a peaceful community. With a chapel, beautiful countryside for rambling and a village hall at the heart of the community this is a charming village to settle in.

Material Information

Tenure - Freehold
Council Tax Band C
Forest of Dean District Council - £2,014.41 (2025/26)
Electricity supply: Mains
Water supply: Mains
Sewerage: Mains
Heating: Oil central heating
Solar panels are owned and provide an income of approx £1500 a year
Broadband speed: Standard 6 Mbps, ultrafast 1000 Mbps
Mobile phone coverage: Vodafone, EE, Three and O2

Floorplans For Wantridge, Kempley, Dymock
EPC For Wantridge, Kempley, Dymock
Arrange a viewing for Wantridge, Kempley, Dymock

For further details on this property please call us on:
01531 828970

Property Brochure Download PDF Arrange Viewing