3 3 1

3 bed House - Detached - Sold
Rosedale Avenue, Stonehouse
£415,000

  • Detached house
  • Three double bedrooms
  • Sizeable accommodation throughout
  • En-suite bathroom and family shower room
  • Enclosed West facing rear garden with side access
  • Driveway parking for two vehicles
  • Garage with power and light
  • Freehold
  • Council tax band D (£2,421.63)
  • EPC rating D64
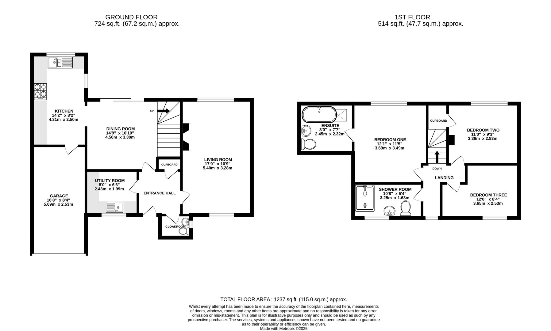
A detached house situated in a sought after location and offers three double bedrooms. The ground floor accommodation comprises a living room, kitchen/breakfast room, dining room, utility room and cloakroom. The first floor offers three double bedrooms, an en-suite bathroom and family shower room. Externally, there is a driveway providing off road parking, a garage with power and light and a well-maintained and landscaped west facing garden.

Entrance Hall

uPVC double-glazed door to entrance hall. Access to living room, dining room, utility room and cloakroom. Storage cupboard. Radiator.

Living Room

uPVC double-glazed windows to front and rear elevation. Electric fireplace. Two radiators.

Kitchen

Two uPVC double-glazed windows to rear elevation and door to garage. Range of wall and base units with appliances to include inset one and a half bowl stainless steel sink with mixer tap and drainer, four ring gas hob with extractor hood over, oven and grill, integrated under counter fridge and dishwasher. Radiator.

Dining Room

uPVC double-glazed sliding doors to garden. Stairs rising to the first floor. Radiator.

Utility Room

uPVC double-glazed window to front elevation. Range of wall and base units to include sink with mixer tap and drainer. Space for washing machine and tumble dryer.

Cloakroom

uPVC double-glazed window to front elevation. Low-level WC and wash hand basin.

Bedroom One

uPVC double-glazed window to rear elevation. Access to en-suite. Radiator.

En-Suite Bathroom

Double-glazed Velux window. Low-level WC, wash hand basin and bath. Radiator.

Bedroom Two

uPVC double-glazed window to rear elevation. Radiator.

Bedroom Three

uPVC double-glazed window to front elevation. Radiator.

Shower Room

uPVC double-glazed window to front elevation. Low-level WC, wash hand basin and shower cubicle. Radiator and heated towel rail.

Garage

This has been insulated and currently used for storage/workshop area, there is also a useful loft space.

Outside

To the front of the property is driveway parking for one vehicle and a front garden laid to lawn. The West-facing rear garden is fully enclosed and provides side access. It is mostly laid to lawn boasting a patio space and gravelled area. There is an array of beautiful plants and trees with additional raised beds. The rear garden benefits from a summer house, ideal for a summers evening.

Location

The property is close to Stonehouse town. Local facilities include a Co-op with a Post Office, restaurants, primary and secondary schools. The property is approximately 4 miles to Junction 12 of the M5 motorway providing access to Gloucester, Cheltenham and Bristol. Stonehouse railway station has a regular train service to London and Cheltenham. The town is situated approximately three miles west of Stroud and twelve miles south of Gloucester.

Material Information

Tenure: Freehold.
Council tax band: D.
Local authority and rates: Stroud District Council - £2,421.63 (2025/26).
Electricity supply: mains.
Water supply: mains.
Sewerage: mains.
Heating: gas central heating.
Broadband speed: 17 Mbps (basic) and 80 Mbps (superfast).
Mobile phone coverage: EE (Limited), Three (Limited), O2 (Limited) and Vodafone (Limited).

Floorplans For Rosedale Avenue, Stonehouse Floorplans For Rosedale Avenue, Stonehouse Floorplans For Rosedale Avenue, Stonehouse
EPC For Rosedale Avenue, Stonehouse
Arrange a viewing for Rosedale Avenue, Stonehouse

For further details on this property please call us on:
01453 827640

Property Brochure Download PDF Arrange Viewing