3 1 2

3 bed House - Semi-Detached - Sold Subject to Contract
Elmgrove Road, Hucclecote, Gloucester
£300,000

  • Chain free
  • Located close to local amenities, schools and transport links
  • Gas central heating and double glazing
  • Off road parking
  • Well presented throughout
  • Good size garden
  • Downstairs toilet
  • Two reception rooms
  • Gloucester City Council, Tax Band B - £1,741.26 per annum (2025/26)
  • EPC rating E42
Offered to the market with no onward chain is this three-bedroom, semi-detached property. Located on a quiet road, close to local schools, shops, and motorway access, this family home offers flexible living accommodation over two floors, with off-road parking and a generously sized, private garden. Viewing is recommended highly.

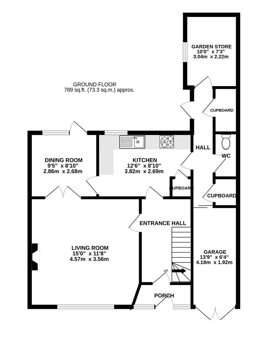
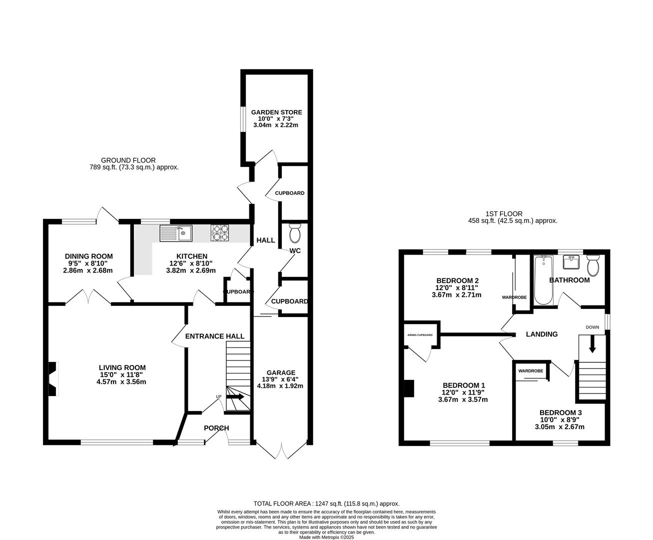
Porch

Double-glazed windows to the front elevation, double glazed door, door to;

Entrance Hall

Stairs to the first floor, doors to all downstairs accommodation.

Living Room

Double-glazed window to the front elevation, gas fire, radiator, double doors to

Dining Room

Double-glazed window to the rear elevation, double-glazed door to the rear, radiator, door to

Kitchen

Double-glazed window to the rear elevation, a range of matching wall and base units with worktops over, integrated electric hob, integrated double oven, space for a washing machine and undercounter fridge,

Lobby

Doors to Kitchen, Garage, WC, Garden Store, two storage cupboards

WC

WC

Garden Store

Double-glazed window to side elevation.

Garage

Barn-style doors to the front of the property

On the first floor

Landing

Double-glazed window to the side elevation, doors to all first floor accommodation

Bedroom One

Double-glazed window to front elevation, radiator, airing cupboard

Bedroom Two

Double-glazed windows to rear elevation, radiator, built in wardrobe

Bedroom Three

Double-glazed window to front elevation, radiator, built in wardrobe

Bathroom

Double-glazed obscure window to rear elevation, bath with shower attachment, washhand basin, WC, radiator

Outside

To the front of the property is off-road parking for a couple of vehicles, a lawn area, and a mix of different shrubs and bushes.
At the rear of the property is a good-sized private garden with a variety of mature trees, shrubs, and plants and a paved patio area.

Location

Located southeast of the historic Gloucester City Centre, Elmgrove Road is located within the popular area of Hucclecote. Various local amenities include Dinglewell Junior School as well as access to a number of secondary and grammar schools located within the city. A short distance away is access to the M5, providing ideal links to Birmingham and Bristol, while a direct line to London Paddington can be located at Gloucester Station. While the immediate locality offers various walks and open spaces within arguably one of Gloucester's most desirable established residential areas. Access to the Countryside is a short walk or cycle ride away, as well as a children's play area, Hucclecote Green, and meadows within close proximity.

Material Information

Property Construction: This property was originally built as a Hawksley Construction but has been rebricked since.
Tenure: Freehold.
Council Tax band: B
Local authority and rates: Gloucester City Council - £1,741.26 per annum (2025/26)
Electricity supply: Mains
Water supply: Mains
Sewerage: Mains
Heating: Gas Central
Broadband speed: Standard 15 Mbps, Superfast 80 Mbps and Ultrafast 1000 Mbps
Mobile phone coverage: Vodafone (Limited), O2 (Likely), EE (Likely) and Three (Limited).

Floorplans For Elmgrove Road, Hucclecote, Gloucester Floorplans For Elmgrove Road, Hucclecote, Gloucester Floorplans For Elmgrove Road, Hucclecote, Gloucester
EPC For Elmgrove Road, Hucclecote, Gloucester
Arrange a viewing for Elmgrove Road, Hucclecote, Gloucester

For further details on this property please call us on:
01452 941950

Property Brochure Download PDF Arrange Viewing