2 2 1

2 bed Apartment - Sold Subject to Contract
Vinings Warehouse, Gloucester Docks
£265,000

  • Unique two double bedroom penthouse style apartment
  • Characterful features including wooden beams & exposed brickwork
  • Immaculately presented throughout
  • Open plan kitchen & living accommodation
  • Far reaching views towards Robinswood Hill, May Hill & Gloucester Cathedral
  • Potential rental income of £1,200 pcm
  • EPC rating D66
  • Gloucester City Council - Tax Band C (£1,990.01 per annum) 2025/2026
Situated in the heart of the Historic Gloucester Docks, this unique penthouse apartment is positioned within the popular Grade II listed Vinings Warehouse building. Benefitting from characterful features throughout, the property is immaculately presented with modern kitchen and bathrooms and generous open plan living accommodation. Offered to the market with no onward chain, viewing is highly advised to see what this apartment has to offer.

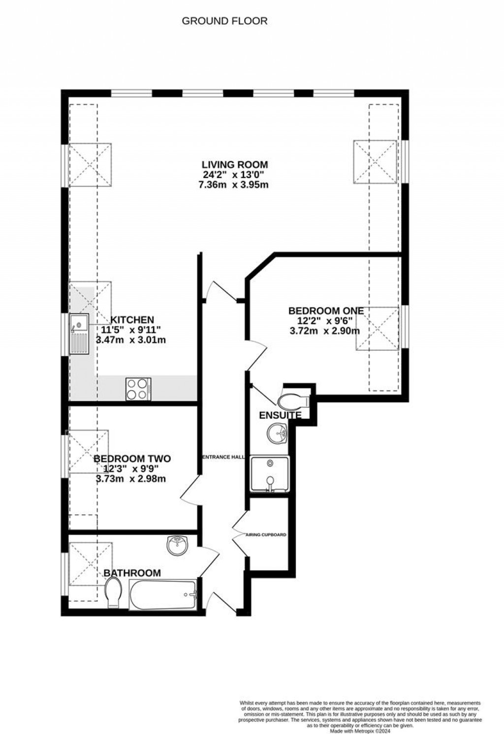
Entrance Hallway

Spacious entrance hallway with characterful features provides access to both bedrooms, bathroom, living accommodation and to a utility cupboard benefitting from plumbing for an automatic washing machine and additional storage.

Open Plan Kitchen / Living Room

The light and airy open plan space benefits from multiple windows offering views towards Robinswood Hill, May Hill, Gloucester Cathedral and across the Mariners Square. The room provides convenient space for both living and dining areas whilst the modern fitted kitchen area boasts ample worktop and storage space. An array of integrated appliances are also found to include dishwasher, double ovens, warming drawer, hob, fridge, freezer and wine fridge.

Bedroom One

Double bedroom with velux window overlooking the side aspect and access provided to the en-suite.

En-Suite

Modern white suite shower room comprising of w.c, wash hand basin and shower cubicle.

Bedroom Two

Double bedroom with window overlooking the side aspect.

Bathroom

Modern white suite family bathroom comprising of w.c, wash hand basin, bath with shower attachment and velux window overlooking the side aspect.

Outside

Accessed via code and fob entry to the side of the building, the apartment is complete with a secure allocated parking space in the Barge Arm East complex.

Location

Set in the heart of the highly sought after and historic Gloucester Docklands, the area provides an eclectic mix of both contemporary and period architecture overlooking various water basins and housing a mix of independent restaurants and bistros. The Gloucester Quays designer outlet centre provides a mix of high street and designer labels, with an array of eateries and waterfront bars. A short mile walk into the City, you will find Gloucester Cathedral and a number of independent shops and boutiques. The recently renovated Gloucester bus station provides regular services to all surrounding suburbs whilst the train station is within a mile and offers direct lines to London making the area a firm favourite with working professionals.

Material Information

Tenure: Leasehold property of 200 years (less 20 days) from 01/01/1992 managed Ash & Co at a charge of approximately £2,987.76 per annum. Part covers normal shared building maintenance, management and insurances; just over 40% covers Docks Service Charge (DSC) including security, CCTV, cleaning and maintenance for the private Docks estate, operated by GDECL. Charges are reviewed every year. *Information correct as of 24/04/25*

Local authority and rates: Gloucester City Council - Tax Band C (£1,990.01 per annum) 2025/2026.
Electricity supply: Mains
Water supply: Mains
Sewerage: Mains
Heating: Electric
Broadband speed: Standard 17 Mbps, Superfast 80 Mbps, Ultrafast 1000 Mbps - Highest available download speed.
Mobile phone coverage: EE, Vodafone, Three, O2.

Floorplans For Vinings Warehouse, Gloucester Docks
EPC For Vinings Warehouse, Gloucester Docks
Arrange a viewing for Vinings Warehouse, Gloucester Docks

For further details on this property please call us on:
01452 398010

Property Brochure Download PDF Arrange Viewing