4 2 2

4 bed House - Mid Terrace - For Sale
Regent Street, Stonehouse
£390,000

  • Mid-terrace town house with versatile and spacious accommodation
  • Three/four bedrooms
  • Two reception rooms to include one with wood burner
  • Basement with own entrance that can be utilised as self contained annexe
  • South facing rear garden with summer house
  • Parking at the rear for two vehicles
  • Town Centre location
  • Freehold
  • Council tax band C (£2,152.55)
  • EPC rating D63
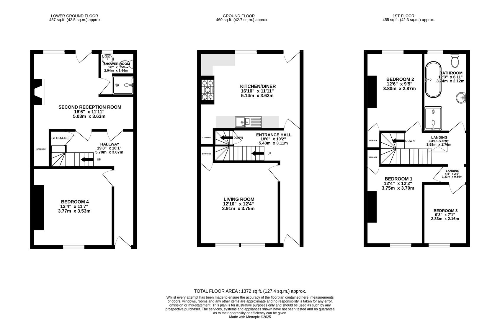
Situated in the ever popular Regent Street, this three/four bedroom town house offers spacious and versatile space throughout. The property is spread across three floors, the ground floor has light and airy accommodation comprising an entrance hall, living room and kitchen/diner. The first floor has three bedrooms and the main family bathroom. On the lower ground floor is a further double bedroom, reception room with wood burner and shower room, providing access to a private courtyard. The lower ground floor is ideal for those needing a separate space for relatives or business purposes. The South facing rear garden has two storage sheds and a summer house, all with power. There are two parking spaces at the rear, with additional permit spaces available at the front.

Entrance Hall

Wooden door to entrance hall. Access to living room, kitchen and stairs going to both lower ground and first floor. Radiator.

Living Room

Single-glazed wooden window to front elevation with secondary glazing. Gas fireplace. Storage cupboard. Radiator.

Kitchen/Diner

Wooden door and double-glazed wooden window to rear elevation. Range of wall and base units with appliances to include one and a half bowl sink with mixer tap and drainer, oven and five ring gas hob. Space for washing machine, dishwasher and fridge/freezer. Walk-in larder. Radiator.

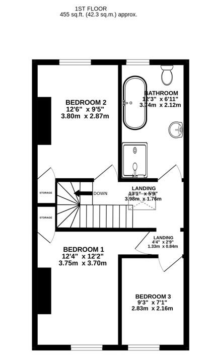
Bedroom One

Single-glazed wooden window to front elevation. Storage cupboard. Radiator.

Bedroom Two

uPVC double-glazed window to rear elevation. Storage cupboard. Radiator.

Bedroom Three

Single-glazed wooden window to front elevation. Radiator.

Bathroom

uPVC double-glazed window to rear elevation. Low-level WC, walk in shower, bath and wash hand basin. Heated towel rail.

Second Reception Room

Wooden door to courtyard and uPVC double-glazed window to rear elevation. Wood burning stove. Access to shower room. Radiator.

Bedroom Four

Single-glazed wooden window to front elevation. Radiator.

Shower Room

Single-glazed wooden window to rear elevation. Low-level WC, wash hand basin and shower cubicle.

Outside

The property has parking for two vehicles at the rear of the property. There is a courtyard garden to the front of the property also providing access to the lower ground floor. The South facing mature garden is mostly laid to lawn with an array of greenery. There are two storage sheds a summer house, all with power and light.

Location

The property is located in Stonehouse town and is a short drive from both Stroud and Gloucester. Local facilities in the town include a Co-op with a post office, restaurants, a variety of shops, a building society, primary and secondary schools. Stonehouse is an ideal location for commuting and also benefits from a railway station which has regular services to London and Cheltenham as well as regular bus services. Junction 13 of the M5 motorway, is approximately two miles away, providing easy access to Gloucester, Bristol and Cheltenham.

Material Information

Tenure: Freehold.
Council tax band: C.
Local authority and rates: Stroud District Council - £2,152.55 (2025/26).
Electricity supply: mains.
Water supply: mains.
Sewerage: mains.
Heating: gas central heating.
Broadband speed: 18 Mbps (basic) and 80 Mbps (superfast).
Mobile phone coverage: EE (Limited), Three (Limited), O2 and Vodafone (Limited).

Floorplans For Regent Street, Stonehouse Floorplans For Regent Street, Stonehouse Floorplans For Regent Street, Stonehouse Floorplans For Regent Street, Stonehouse
EPC For Regent Street, Stonehouse
Arrange a viewing for Regent Street, Stonehouse

For further details on this property please call us on:
01453 827640

Property Brochure Download PDF Arrange Viewing