3 1 3

3 bed House - Semi-Detached - Sold Subject to Contract
Kingscroft Road, Hucclecote, Gloucester
£415,000

  • Popular location
  • Close to local schools and amenities
  • Good transport links
  • Gas central heating and double glazing
  • Good sized South facing rear garden
  • Garage with power and lighting
  • Three double bedrooms and potential fourth downstairs bedroom
  • Potential to extend on the side of the property subject to planning
  • Gloucester City Council; Tax Band C - £1990.01 per annum (2025/2026)
  • EPC rating C74
Situated in the heart of Hucclecote with an array of local amenities is this beautifully presented family home with three/four double bedrooms and three reception rooms. Combining many of its original period aspects with modern conveniences. Outside, there is a driveway offering plenty of off-road parking to the front and a good-sized south-facing rear garden. The corner plot offers fantastic scope for further extension subject to the relevant permissions.

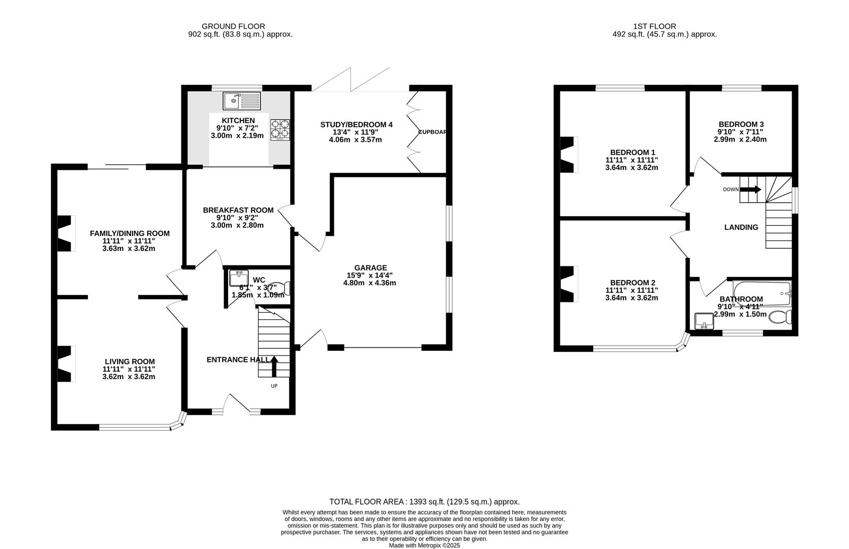
Entrance Hall

Double-glazed windows to front elevation, radiator, stairs to the first floor, doors to all main rooms, door to;

WC

WC, handwash basin, heated towel rail.

Living Room

Radiator, double glazed bay window to front elevation, exposed brick chimney breast, opening to

Family/Dining Room

Exposed brick chimney breast, radiator, patio door to rear garden.

Kitchen/Breakfast Room

Double-glazed window to front elevation, matching wall and base units with worktops over, stainless steel one bowl sink with drainer, four ring gas hob with overhead extractor, integrated oven and dishwasher, space for a fridge freezer and a washing machine, radiator, door to;

Study/Bedroom 4/Playroom

Double-glazed window to rear elevation, radiator, built-in wardrobes/storage, bi-fold doors to rear garden, wood-engineered herringbone flooring, door to garage.

On the first floor

Landing

Double-glazed obscure window to side elevation, doors to all upstairs accommodation.

Bedroom One

Double-glazed window to rear elevation, radiator.

Bedroom Two

Double-glazed bay window to front elevation, radiator.

Bedroom Three

Double-glazed window to rear elevation, radiator.

Bathroom

Double-glazed obscure window to front elevation, heated towel rail, WC, washhand basin, and bath with shower attachment.

Outside

To the front of the property are a tarmac and stone driveway, a lawn area, and a range of bushes and hedges. To the rear of the property the South facing garden consits of a patio area, a lawn with a stone pathway surrounding it, and a range of bushes and shrubs.

Garage

Double-glazed windows to side elevation, power and light, an up-and-over garage door, and a pedestrian door to the front of the property.

Location

The popular area of Hucclecote has lots to offer with an array of shops, transport links, and schools. Various local amenities include the local Dinglewell Junior school as well as access to several secondary and grammar schooling being located within the City. A short distance away is access to the M5 providing ideal links to Birmingham and Bristol whilst a direct line to London Paddington can be located at Gloucester Station. There are also regular bus services to both Cheltenham and Gloucester. The immediate locality offers various walks and open spaces within arguably one of Gloucester's most desirable established residential areas. Access to the Countryside is a short walk or cycle ride away as well as a children's play area, Hucclecote Green, and meadows within close proximity.

Material Information

Tenure: Freehold.
Council Tax band: C
Local authority and rates: Gloucester City Council - £1990.01 per annum (2025/26)
EPC: Since the EPC was carried out, a new boiler has been installed, and we await a revised EPC rating.
Electricity supply: Mains
Water supply: Mains
Sewerage: Mains
Heating: Gas Central heating.
Broadband speed: Standard 15 Mbps and Superfast 80 Mbps and Ultrafast 1000 Mbps
Mobile phone coverage: Vodafone (Limited), O2 (Likely), EE (Likely), and Three (Limited).

Floorplans For Kingscroft Road, Hucclecote, Gloucester
EPC For Kingscroft Road, Hucclecote, Gloucester
Arrange a viewing for Kingscroft Road, Hucclecote, Gloucester

For further details on this property please call us on:
01452 941950

Property Brochure Download PDF Arrange Viewing