3 2 2

3 bed House - Mid Terrace - For Sale
Elm Road, Stonehouse
50% Shared Ownership - £147,500

  • Mid-terrace town house in a cul-de-sac location
  • 50% shared ownership with the opportunity to staircase to 100% - creating flexibility for those who need it
  • Three double bedrooms including master with en-suite and storage cupboard
  • Enclosed and low-maintenance garden with rear access
  • Driveway parking for two vehicles
  • Within close proximity to local schools and shops ideal for families
  • £9.87pcm paid to Two Rivers Housing to cover buildings insurance, this may change at point of renewal. No ground rent to pay.
  • Leasehold - 125 years with 117 years remaining
  • Council tax band C (£2,152.55)
  • EPC rating B85
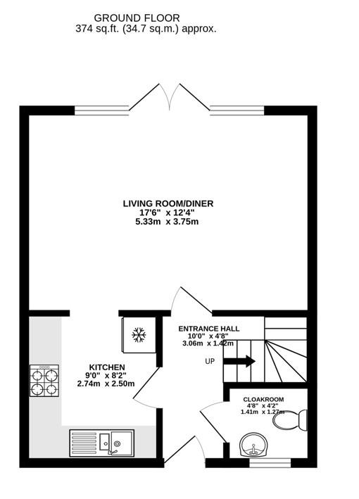
Conveniently situated within a short distance of local schools and amenities, this delightful mid-terrace house has three double bedrooms and is available on a 50% or 100% shared ownership scheme if required. The accommodation is spread across three floors, on the ground floor there is an open plan living room/kitchen/diner and cloakroom. The first floor has two double bedrooms and the family bathroom whilst the third floor boasts the master suite with en-suite and wardrobe. The property benefits from off road parking for two vehicles and an enclosed and low-maintenance rear garden. This modern home is ideal for those looking to enjoy a blend of comfort, style, and practicality in a desirable area as it is within very close proximity to local amenities.

Entrance Hall

uPVC door to entrance hall. Access to living room, kitchen, cloakroom and stairs rising to the first floor. Radiator.

Living Room/Diner

uPVC double-glazed French doors to rear garden with windows either side. Access to kitchen. Two radiators.

Kitchen

uPVC double-glazed window to front elevation. Range of wall and base units with appliances to include one and a half bowl sink with mixer tap and drainer, four ring gas hob, oven, dishwasher and built-in fridge/freezer.

Cloakroom

uPVC double-glazed window to front elevation. Low-level WC and wash hand basin. Radiator.

Bedroom One

uPVC double-glazed window to rear elevation. Access to en-suite and storage cupboard. Radiator.

En-Suite Shower Room

uPVC double-glazed window to front elevation. Low-level WC, wash hand basin and corner shower cubicle. Heated towel rail.

Bedroom Two

uPVC double-glazed window to rear elevation. Radiator.

Bedroom Three

uPVC double-glazed window to front elevation. Radiator.

Bathroom

uPVC double-glazed window to rear elevation. Low-level WC, wash hand basin and bath with shower over. Storage cupboard. Radiator.

Outside

The front of the property has a gravelled driveway for two cars. The rear garden is fully enclosed, it is low-maintenance with AstroTurf and patio. There is a storage shed and gate to rear path.

Location

The property is located just on the edge of Stonehouse town. Local facilities include a Co-op with a Post Office, restaurants, primary and secondary schools. The property is approximately four miles to Junction 12 of the M5 motorway providing access to Gloucester, Cheltenham and Bristol. Stonehouse railway station has a regular train service to London and Cheltenham. The town is situated approximately three miles west of Stroud and twelve miles south of Gloucester.

Material Information

Tenure: Leasehold - 125 years beginning 18/08/2017 with 117 years remaining.
£9.87pcm paid to Two Rivers Housing to cover buildings insurance, this may change at point of renewal. No ground rent or service charge to pay. To be reviewed in April.
Council tax band: C.
Local authority and rates: Stroud District Council - £2,152.55 (2025/26).
Electricity supply: mains.
Water supply: mains.
Sewerage: mains.
Heating: gas central.
Broadband speed: 15 Mbps (basic) and 57 Mbps (superfast).
Mobile phone coverage: EE, Three, O2 and Vodafone.

Shared Ownership Price Breakdown

The below is based on a price of £295,000 for the 100% Freehold of the property.

50% Share - £147,500
The rent is £388.35pcm and this will rise by RPI plus 0.5% each April, based on the preceding Septembers figure.
Buildings Insurance - £9.87pcm - To be reviewed in April.

This information has been provided by Two Rivers Housing.

Shared Ownership Requirements

To be eligible for Shared Ownership you need to meet the following:
•Not own any other property
•Live in the property as your only and principal home (no buy to let)
•Have a household income of UNDER £80k per annum.
•Unable to afford to buy 100% of the property outright.
•Have a local connection to Stroud District (family or job)

You may also be required to produce the following to Naylor Powell and TwoCan Estate Agents (Two Rivers Housing):
- Proof of ID and proof of address
- Mortgage in principle
- Proof of deposit and any potential gifted funds
- Help to buy reference number (if applicable)
- Full details for each buyer including contact details

You will be required to complete an application form and an affordability calculation.

This information has been provided by Two Rivers Housing.

Floorplans For Elm Road, Stonehouse Floorplans For Elm Road, Stonehouse Floorplans For Elm Road, Stonehouse Floorplans For Elm Road, Stonehouse
EPC For Elm Road, Stonehouse
Arrange a viewing for Elm Road, Stonehouse

For further details on this property please call us on:
01453 827640

Property Brochure Download PDF Arrange Viewing