2 1 2

2 bed Flat - Sold Subject to Contract
Oakbank House, Gloucester
£275,000

  • Rarely available two bedroom character apartment
  • Panoramic views across the city of Gloucester and May Hill
  • No onward chain
  • Immaculately presented throughout
  • Single garage with allocated parking space
  • Highly desirable Oakbank House set in expansive grounds
  • Basement storage and workshop
  • EPC rating D67
  • Gloucester City Council - Tax Band B (£1,741.26 per annum) 2025/2026
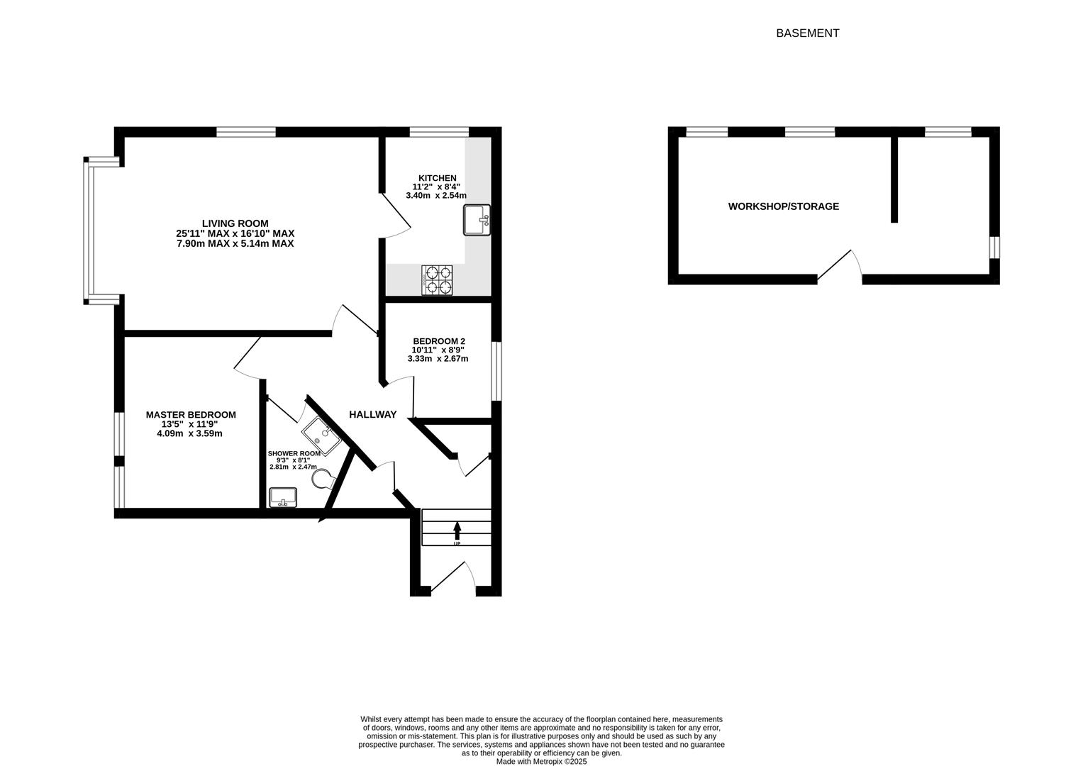
Set in the highly sought after and rarely available Oakbank House, this spacious and well-appointed ground first floor two bedroom apartment offers panoramic views of the historic Gloucester City, with extensive communal gardens, garage, allocated parking and additional cellar storage/workshop. Viewing is highly advised.

Entrance Hall

Stepping into the apartment you are greeted by a generously sized entrance hall which provides access to the living dining room, shower room and two double bedrooms. Additionally the entrance hall also benefits from a storage cupboard and a window seat.

Living Dining Room

Entering this room you are immediately drawn to the sash style windows which offer far reaching views across the city of Gloucester and towards May Hill. The living/dining room is a versatile space with character features to include high ceilings, picture rails and sash windows.

Kitchen

The stylish kitchen provides ample storage in a range of floor and eye level units accompanied by space for oven, fridge freezer and plumbing for dishwasher. Sash style window to side aspect.

Master Bedroom

Double bedroom with built in wardrobe with mirrored doors. Two sash windows to front aspect with enviable views.

Second Bedroom

Double bedroom with sash style window to rear aspect.

Shower Room

Modern shower suite comprising WC, wash hand basin and double width walk-in shower enclosure with tiled surround.

Workshop / Storage

Accessed via a separate entrance located to the side of Oakbank House is an additional storage/workshop space positioned underneath the apartments. This rooms provides a versatile area and benefits from multiple windows providing ample natural light.

Outside

Externally the property benefits from a single garage, with lighting and power, alongside an allocated parking space directly in front. The large communal gardens offer lawns and wildlife areas with views stretching across the city and beyond to provide a pleasant and peaceful position. The property is completed with the benefits of a cellar, accessed externally of the apartment, offering a dry storage space.

Location

Touching Robinswood Hill the sought after location of Oakbank House is ideal for working professionals and those looking for a quieter paced lifestyle. Ideally located as a main travel link to both Stroud, Cheltenham, Bristol and the city centre, public transport, various amenities include doctors surgery, shops, public houses and playgrounds complete the established suburb which in turn also benefits from the Country Park of Robinswood Hill adjoining the property.

Material Information

Tenure: This property is leasehold with a lease length of 999 years from June 1981 that includes a sixth share in the freehold of the property that is Oakbank House and an eighth share of the freehold of the grounds. Maintenance contributions for the property are currently £2,112.00 per annum, £176.00 per calendar month which includes the ground rent of £50.00 per annum. These contributions cover the shared costs for the annual buildings’ insurance, grounds maintenance, electricity, regular annual building maintenance items and the administrative obligations that must be met on behalf of the Association and Company.

Local Authority and Rates: Gloucester City Council - Tax Band B (£1,741.26 per annum) 2025/2026.
Electricity supply: Mains.
Water supply: Mains.
Sewerage: Mains.
Heating: Gas central heating.
Broadband speed: Basic 4 Mbps, Superfast 80 Mbps, Ultrafast 1000 Mbps download speed.
Mobile phone coverage: EE, O2, Vodafone, Three - Limited

Agents Note

Please note that due to the lease for this property and the other five apartments that are situated in Oakbank House there is a restriction of NO pets here.

Floorplans For Oakbank House, Gloucester
EPC For Oakbank House, Gloucester
Arrange a viewing for Oakbank House, Gloucester

For further details on this property please call us on:
01452 398010

Property Brochure Download PDF Arrange Viewing