2 1 1

2 bed Maisonette - Upper - For Sale
Westward Road, Ebley, Stroud
£100,000

  • Over 55s maisonette conveniently located with pets allowed
  • First floor with uninterrupted views across Selsley Common
  • One double bedroom and one single bedroom
  • Within close proximity of local amenities including Ebley Wharf
  • Private access to Victory Park for lovely walks and community events
  • Communal grounds and car park for residents only
  • Chain free
  • Freehold
  • Council tax band A (£1,602.83)
  • EPC rating D64
This over 55s first floor maisonette is conveniently located on Westward Road and opposite Ebley Wharf and the canal, the property has uninterrupted views. The property offers a welcoming reception room, providing a warm and inviting atmosphere with views across Selsley Common, and kitchen. There are two well-proportioned bedrooms and ample storage throughout. The bathroom also benefits from a storage cupboard. There is a communal car park and communal gardens, there is private access to Victory Park. The location is a significant advantage, residents can enjoy easy access to local amenities, including shops, parks, and public transport links. The property is being offered to the market CHAIN FREE.

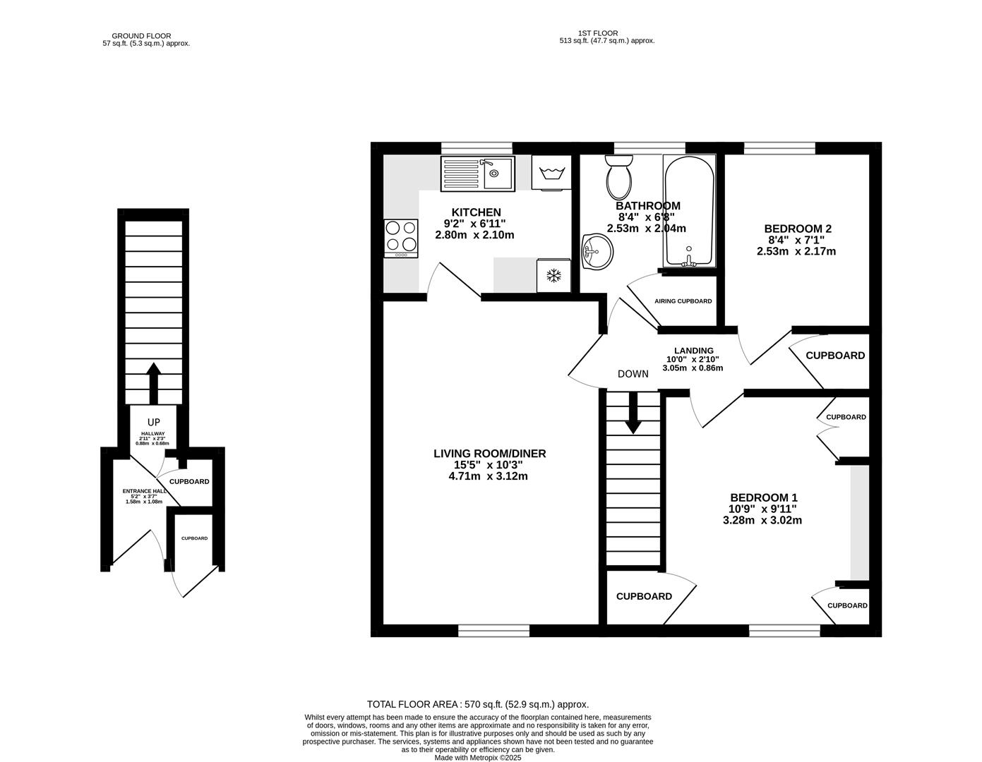
Entrance Hall

uPVC double-glazed door to entrance, access to hallway with stairs rising to the first floor. Storage cupboard.

Landing

Access to all accommodation and storage cupboard. Radiator.

Living Room/Diner

uPVC double-glazed window to front elevation. Access to kitchen. Radiator.

Kitchen

uPVC double-glazed window to rear elevation. Range of wall and base units with stainless steel sink with mixer tap and drainer, freestanding cooker with four ring electric hob, washing machine and fridge/freezer.

Bedroom One

uPVC double-glazed window to front elevation. Storage units and cupboard. Radiator.

Bedroom Two

uPVC double-glazed window to rear elevation.

Bathroom

uPVC double-glazed window to rear elevation. Low-level WC, wash hand basin and bath with shower over. Airing cupboard. Radiator.

Outside

There is a communal car park for the residents of Westward Court, these are on a first come first serve basis. There is also communal lawned areas. The front of the property has views across Selsley common and the rear overlooks Victory Park, there is private gate access to Victory Park from Westward Court.

Location

Conveniently located in between Stroud and Stonehouse in Cainscross, the property is on the doorstep of the Ebley Wharf development offering a great atmosphere, plus a Gym, coffee shop/wine bar, hair salon, barbers’ shop and stunning canal and countryside walks. St Matthew's Primary School and Foxmoor Primary School are easily accessible. Stroud provides excellent shopping facilities, a high standard of education with a good variety of state, grammar and private schools in the immediate vicinity as well as a wide range of recreational facilities with a leisure centre in Stroud. This location is also ideal for commuting and transport links, with bus services, a direct line to London Paddington offered by both Stroud and Stonehouse Rail Stations. Junction 13 of the M5 motorway is just under four miles providing easy access to Cheltenham and Bristol.

Material Information

Tenure: Leasehold - 99 years starting 1986 with 60 years remaining ending 2085.
Management company: Stonewater Homes.
Service charge: £1,100.57 per annum running 1st April to 31st March.
Council tax band: A.
Local authority and rates: Stroud District Council - £1,602.83 (2025/26).
Electricity supply: mains.
Water supply: mains.
Sewerage: mains.
Heating: gas central heating.
Broadband speed: 12 Mbps (basic) and 50 Mbps (superfast).
Mobile phone coverage: EE, Three, O2 and Vodafone.

Floorplans For Westward Road, Ebley, Stroud Floorplans For Westward Road, Ebley, Stroud Floorplans For Westward Road, Ebley, Stroud
EPC For Westward Road, Ebley, Stroud
Arrange a viewing for Westward Road, Ebley, Stroud

For further details on this property please call us on:
01453 827640

Property Brochure Download PDF Arrange Viewing