2 1 1

2 bed House - Townhouse - For Sale
Culver Street, Newent
£199,950

  • Two/three bedroom period home believed to date back to the 1400's
  • Located in the centre of the market town of Newent
  • Pleasant walled courtyard garden
  • Character features throughout to include inglenook fireplace and beams
  • Kitchen/diner, utility room and ground floor cloakroom
  • Spacious attic room suitable for a variety of uses
  • Council tax band B - £1878.47 (2025/26)
  • EPC E53
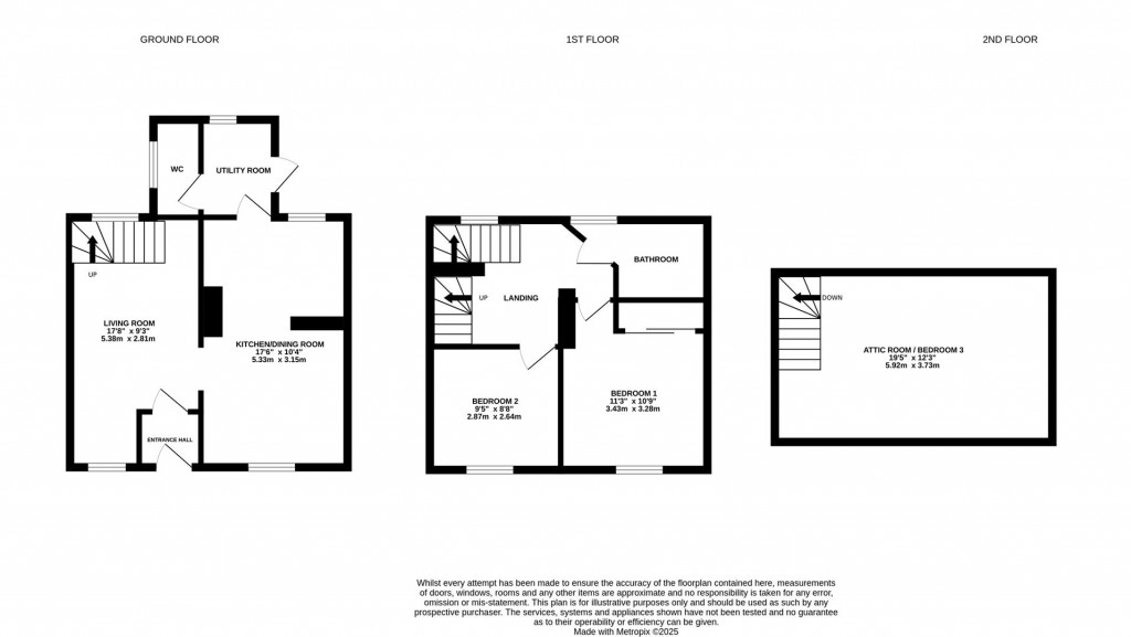
Located in the charming town of Newent, this delightful townhouse on Culver Street offers a unique blend of historical character. Believed to date back to the1400's, the property boasts a rich heritage, making it a rare find for those who appreciate the charm of period homes. The accommodation is arranged over three floors and comprises a living room, kitchen/diner. utility room, cloakroom, two bedrooms and a shower room on the first floor and an attic room. Viewing is highly advised.

Entrance Hall

Steps with an iron balustrade lead up to a solid wood front door which welcomes you in to a practical, enclosed entrance hall with space for storing coats and shoes. A wooden door with glazed panels leads into the living room.

Living Room

The charming living room boasts an inglenook fireplace with brick surround, space for an electric fire and oak mantlepiece. The room features exposed beams to the walls and ceiling and tiled flooring throughout. A solid wood staircase with carved balustrade leads to the first floor, an opening takes you to the kitchen/dining room and a window overlooks the front aspect.

Kitchen/Dining Room

The traditional kitchen with exposed beams offers ample storage in a range of floor and eye level units. There is a range of integrated appliances to include an electric oven and four ring gas hob and a stainless steel sink with mixer tap set beneath a window overlooking the rear courtyard. There are dual aspect windows to the front and rear and space for a dining table and further storage. A thumb latch oak door leads to the utility room.

Utility Room

A practical room with worktop space and plumbing for a washing machine. A window overlooks the rear aspect and a door leads out to the garden.

Cloakroom

White suite comprising WC and handwash basin. Window to side aspect.

Bedroom One

The double bedroom features exposed beams to the walls and a built-in wardrobe with sliding doors, providing storage space A windows overlooks the front aspect.

Bedroom Two

A further double bedroom with exposed beams to the walls and ceiling and a window overlooking the front aspect.

Shower Room

The modern shower room with part-tiled walls and exposed beams comprises a fully glazed shower cubical, WC and pedestal wash hand basin. There is a radiator with towel rail, oak wall cupboard and a frosted window to the rear aspect.

Attic Room / Bedroom Three

From the first-floor landing, stairs lead to the second floor attic room. The room could suit a variety of uses and features exposed bricks and beams along with a pitched roof and a Velux window.

Outside

The property is accessed via steps with an iron balustrade leading off Culver Street. To the rear of the home is a pleasant, private walled courtyard garden with a block paved patio and mature raised beds.

Location

The market town of Newent sits 8 miles northwest of Gloucester, on the northern edge of the Forest of Dean. Served by three schools, doctors surgery, dentist, sports & leisure centre, excellent motorway links to the M50 & M5 alongside additional local amenities the town lends itself to those looking for an active community.

Material Information

Tenure - Freehold
Council Tax Band B
Forest of Dean District Council - £1878.47 (2025/26)
Electricity supply: Mains
Water supply: Mains
Sewerage: Mains
Heating: Gas central heating
Broadband speed: Standard 19 Mbps, Superfast 80 Mbps
Mobile phone coverage: Vodafone, EE, Three and O2

Floorplans For Culver Street, Newent
EPC For Culver Street, Newent
Arrange a viewing for Culver Street, Newent

For further details on this property please call us on:
01531 828970

Property Brochure Download PDF Arrange Viewing