3 1 1

3 bed House - Detached - Sold Subject to Contract
Lynmouth Road, Hucclecote, Gloucester
£410,000

  • Extended with loft conversion
  • Three double bedrooms with the potential to create a fourth
  • Utility room and downstairs WC
  • Garage and off road parking
  • Large landing with potential to create a fourth bedroom
  • Good sized and private rear garden
  • Gas central heating and double glazing
  • Close to good schools and transport links
  • Gloucester City Council, Tax band D - £2,238.77 per annum (2025/26)
  • EPC Rating D57
This delightful detached house, built in 1939, offers a perfect blend of character and modern living. Spanning an impressive 1,583 square feet, the property boasts three spacious double bedrooms, providing ample space for family living or guests. There is also the exciting potential to create a fourth bedroom, allowing for further flexibility to suit your needs. The ground floor features a welcoming reception room, ideal for entertaining or relaxing with family. The well-appointed utility room and convenient downstairs WC enhance the practicality of the home, making daily life more comfortable.
Outside, the property is complemented by a generous and private rear garden, perfect for enjoying sunny afternoons or hosting gatherings. Additionally, the property benefits from a garage and off-road parking for several vehicles, ensuring that parking is never a concern.

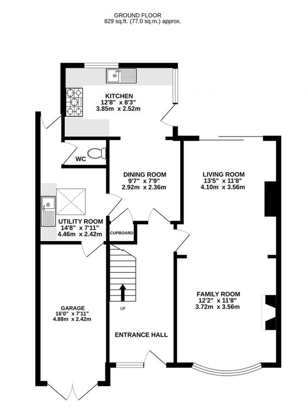
Entrance Hall

Radiator, understairs storage cupboard, stairs to first floor.

Living Room

Patio doors to rear elevation, radiator, opening to:

Family Room

Bay window to front elevation. radiator, gas fire with surround and marble style hearth.

Dining Room

Door to utility room, storage pantry, breakfast bar, radiator, opening to:

Kitchen

Windows to rear and side elevations, door to garden. Matching wall and base units with laminate worktop. Integrated fridge and freezer. Sink drainer. Space for a range-style cooker.

Utility Room

Doors to garden and garage. Matching wall and base units. Space for a fridge freezer and washing machine. Stainless steel sink, tiled flooring, roof light, door to:

Cloakroom

WC, Tiled floor.

Garage

Barn-style doors to front elevation, power and light.

On the first floor

Landing/Reading area

Windows to front and side elevations, stairs to the 2nd floor, doors to bedrooms one and two, and a shower room.

Bedroom One

Window to rear elevation, built-in wardrobes, radiator.

Bedroom Two

Bay window to front elevation, radiator.

Shower Room

Obscure windows to rear and side elevations. Double shower enclosure with power shower, WC, wash hand basin, heated towel rail.

On the second floor

Eaves Storage

Housing gas combi boiler.

Bedroom Three

Two Velux windows, radiator.

Outside

To the front of the property is a block-paved driveway providing off-road parking for several vehicles, an area of lawn and mature trees and shrubs. The rear garden consists of a paved patio area and a lawn area with mature flower and shrub borders. Garden shed with power supply, outside tap and lighting, covered and gated side access.

Location

The popular suburb of Hucclecote has lots to offer with an array of shops, transport links, and schools. Various local amenities include the local Dinglewell Junior School as well as access to several secondary and grammar schools being located within the city. A short distance away is access to the M5, providing ideal links to Birmingham and Bristol, whilst a direct line to London Paddington can be located at Gloucester Station. There are also regular bus services to both Cheltenham and Gloucester. The immediate locality offers various walks and open spaces within arguably one of Gloucester's most desirable established residential areas.

Material Information

Tenure: Freehold.
Council Tax band: D
Local authority and rates: Gloucester City Council - £2,238.77 per annum (2025/26)
Electricity supply: Mains
Water supply: Mains
Sewerage: Mains
Heating: Gas Central heating.
Broadband speed: Standard 15 Mbps and Superfast 80 Mbps and Ultrafast 1000 Mbps
Mobile phone coverage: Vodafone (Limited), O2 (Likely), EE (Likely), and Three (Limited).

Floorplans For Lynmouth Road, Hucclecote, Gloucester Floorplans For Lynmouth Road, Hucclecote, Gloucester Floorplans For Lynmouth Road, Hucclecote, Gloucester Floorplans For Lynmouth Road, Hucclecote, Gloucester
EPC For Lynmouth Road, Hucclecote, Gloucester
Arrange a viewing for Lynmouth Road, Hucclecote, Gloucester

For further details on this property please call us on:
01452 941950

Property Brochure Download PDF Arrange Viewing