2 2 1

2 bed Apartment - Duplex - Sold Subject to Contract
Brunswick Square, Gloucester, GL1
£175,000

  • No onward chain
  • Two bedroom duplex apartment
  • Character features throughout
  • Enviable views across Brunswick Square gardens
  • Situated in the popular area of Brunswick Square
  • EPC rating D58
  • Gloucester City Council - Tax Band A (£1,492.52 per annum) 2025/2026
  • Potential rental income of £895 pcm
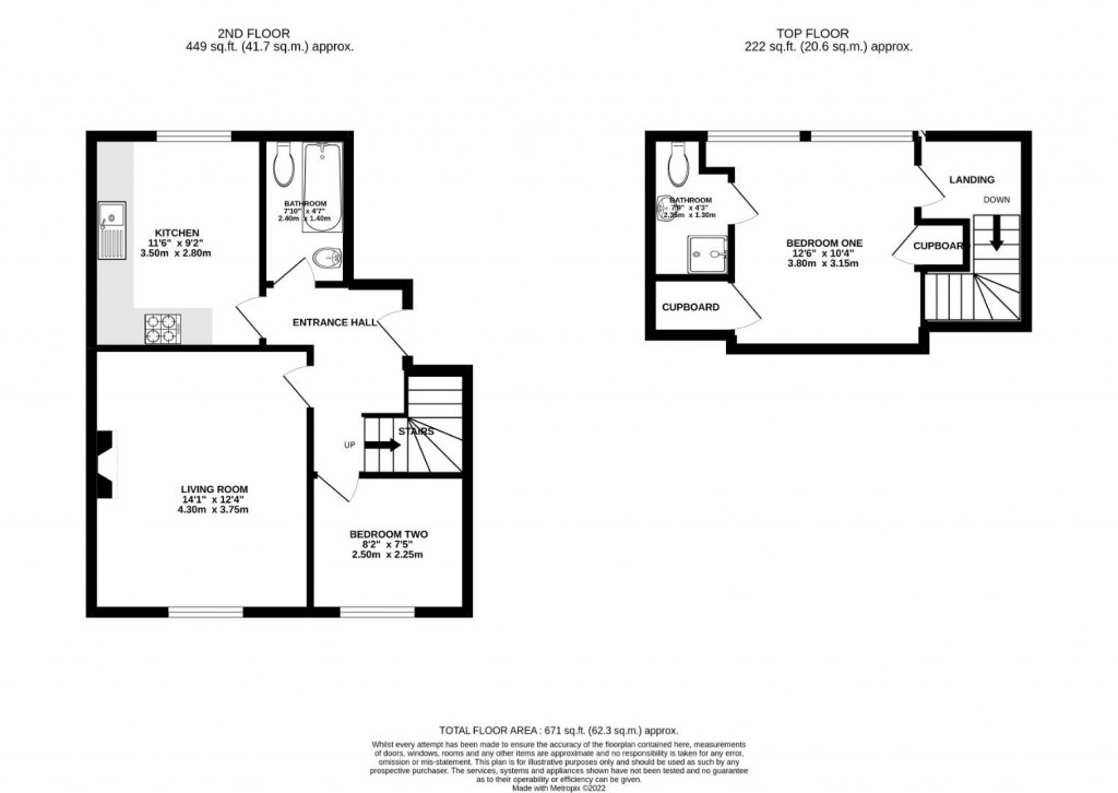
Naylor Powell are pleased to present this delightful, two bedroom, duplex style apartment, located in the ever popular Brunswick Square. The accommodation comprises of a newly carpeted living room and bedroom, spacious kitchen/dining room, family bathroom, leading upstairs to the master double bedroom and ensuite. The property further benefits from gas central heating, integrated white goods and access the picturesque Brunswick Square gardens.

Entrance Hall

Hallway, with secure intercom entry system, provides access to the kitchen, bathroom, bedroom and living room.

Kitchen

Modern kitchen with space for dining room table if desired.

Living Room

Light and airy living room with feature fireplace provides character to the room with sash window overlooking Brunswick gardens

Master Bedroom

Double room with en-suite and wardrobe space.

En-suite

en-suite comprising w.c, wash hand basin and shower.

Second Bedroom

double bedroom which could also be utilised as a single bedroom with home office space.

Bathroom

white suite comprising w.c, wash hand basin and bath with shower overhead.

Outside

To the front of the property is on-street permit parking, for which permits can be purchased through the Gloucestershire council website. Situated in the middle of Brunswick Square, the pleasant and well-maintained garden is available for the exclusive use of residents only.

Location

Tucked away in the quiet location of Brunswick Square is this characterful apartment. Approximately a quarter of a mile from the City Centre, Gloucester offers various amenities, shopping, and transport facilities throughout, whilst the Gloucester Quays development offers a range of restaurants, a cinema, and bars only a short walk away.

Material Information

Tenure: The property is currently freehold, and the owner is in the process of creating a lease for each apartment to accompany the sale. Each apartment will own a share of the freehold. More details to follow.
*Information correct as of 08/07/25*
Grade II listed
Local authority and rates: Gloucester City Council - Tax Band A (£1,492.52 per annum) 2025/2026
Electricity supply: Mains
Water supply: Mains
Sewerage: Mains
Heating: Gas central heating
Broadband speed: Basic 16 Mbps, Superfast 80 Mbps, Ultrafast 1000 Mbps- Highest available download speed
Mobile phone coverage: Three, 02

Floorplans For Brunswick Square, Gloucester, GL1
EPC For Brunswick Square, Gloucester, GL1
Arrange a viewing for Brunswick Square, Gloucester, GL1

For further details on this property please call us on:
01452 398010

Property Brochure Download PDF Arrange Viewing