2 1 3

2 bed House - Mid Terrace - Sold Subject to Contract
Burdett Road, Stonehouse
£315,000

  • Mid-terrace house ideal for commuters given its close proximity to the train station
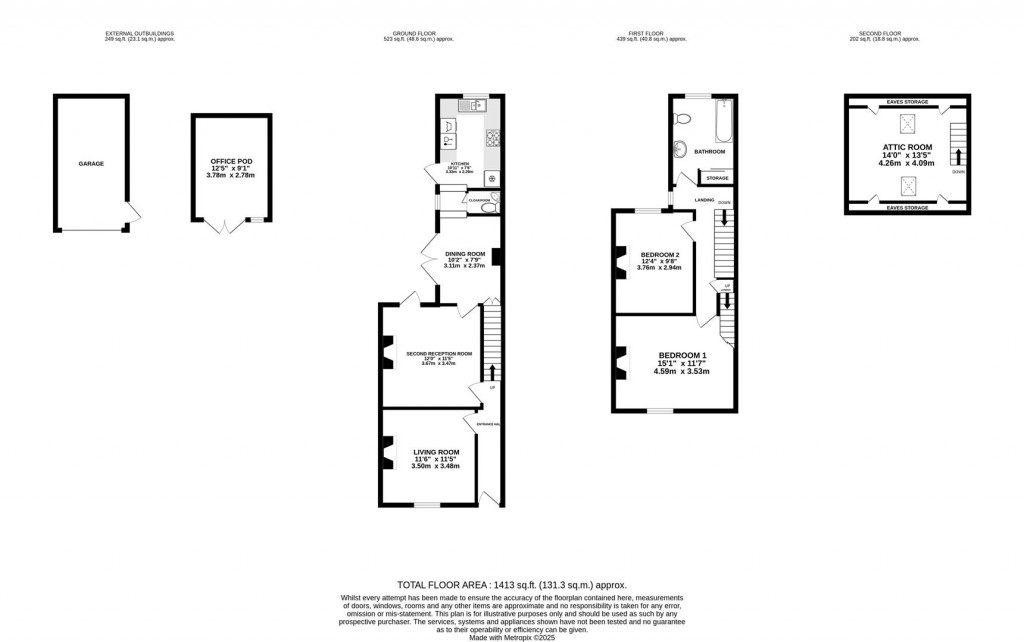
  • Two double bedrooms and an attic room
  • Accommodation spread across three floors
  • Generous ground floor space with three reception rooms
  • Sizeable rear garden with office pod and front courtyard
  • Garage and off road parking for one vehicle
  • Close to town centre and local amenities
  • Freehold
  • Council tax band C (£2,152.55)
  • EPC rating D67
Sizeable two/three bedroom, semi-detached house situated within close proximity to the Town Centre and train station. The generous accommodation is spread across three floors and offers ample living space throughout. The ground floor boasts three reception rooms offering versatile accommodation, a kitchen and cloakroom. On the first floor is two double bedrooms and the family bathroom. There is an additional attic room with eaves storage on the second floor. There is a rear garden with office pod and garage with parking for one vehicle. The property is being offered to the market CHAIN FREE.

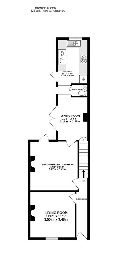
Entrance Hall

uPVC door to entrance hall. Access to living room, second reception room and stairs rising to the first floor. Radiator.

Living Room

uPVC double-glazed window to front elevation. Feature fireplace. Radiator.

Second Reception Room

uPVC double-glazed door to garden. Access to dining room. Wood burning stove. Radiator.

Dining Room

uPVC double-glazed French doors to garden. Access to hallway and storage cupboard. Radiator.

Hallway

uPVC double-glazed window to side elevation. Access to kitchen, dining room and cloakroom. Radiator.

Kitchen

uPVC double-glazed window to rear elevation and uPVC double-glazed door to garden. Range of wall and base units with appliances to include stainless steel one and a half bowl sink with mixer tap and drainer, four ring electric hob and oven, integrated appliances to include fridge/freezer, washing machine and dishwasher.

Cloakroom

Low-level WC and wash hand basin. Heated towel rail.

Bedroom One

uPVC double-glazed window to front elevation. Feature fireplace. Radiator.

Bedroom Two

uPVC double-glazed window to rear elevation. Feature fireplace. Radiator.

Attic Room

Two double-glazed Velux windows to front and rear elevation. Access to eaves storage. Radiator.

Bathroom

uPVC double-glazed window to rear elevation. Low-level WC, wash hand basin and bath with shower over. Storage cupboard. Heated towel rail.

Outside

The property has an enclosed front courtyard providing easy access to the Town Centre and train station. The rear garden is fully enclosed with a decking area, patio and raised lawn area. There is an office pod with power and light. An additional benefit is the single garage to the rear with one parking space in front, the garage can be accessed off the garden or by a private road and has power and light.

Location

The property is located in Stonehouse town and is a short drive from both Stroud and Gloucester. Local facilities in the town include a Co-op with a post office, restaurants, a variety of shops, a building society, primary and secondary schools. Stonehouse is an ideal location for commuting and also benefits from a railway station which has regular services to London and Cheltenham as well as regular bus services. Junction 13 of the M5 motorway, is approximately two miles away, providing easy access to Gloucester, Bristol and Cheltenham.

Material Information

Tenure: Freehold.
Council tax band: C.
Local authority and rates: Stroud District Council - £2,152.55 (2025/26).
Electricity supply: mains.
Water supply: mains.
Sewerage: mains.
Heating: gas central.
Broadband speed: 18 Mbps (basic), 56 Mbps (superfast) and 1,800 Mbps (ultrafast).
Mobile phone coverage: EE, Three, O2 and Vodafone.

Floorplans For Burdett Road, Stonehouse Floorplans For Burdett Road, Stonehouse Floorplans For Burdett Road, Stonehouse Floorplans For Burdett Road, Stonehouse Floorplans For Burdett Road, Stonehouse
EPC For Burdett Road, Stonehouse
Arrange a viewing for Burdett Road, Stonehouse

For further details on this property please call us on:
01453 827640

Property Brochure Download PDF Arrange Viewing