3 1 1

3 bed Chalet Bungalow - Detached - Sold Subject to Contract
Quietways, Stonehouse
£362,500

  • Detached chalet style bungalow on the sought after Quietways cul-de-sac
  • Three double bedrooms
  • Dining room/study with access to the rear garden
  • Sizeable front and rear gardens with potential to extend (subject to planning permission)
  • Garage and driveway parking
  • Close to local amenities
  • Chain free
  • Freehold
  • Council tax band D (£2,421.63)
  • EPC rating D61
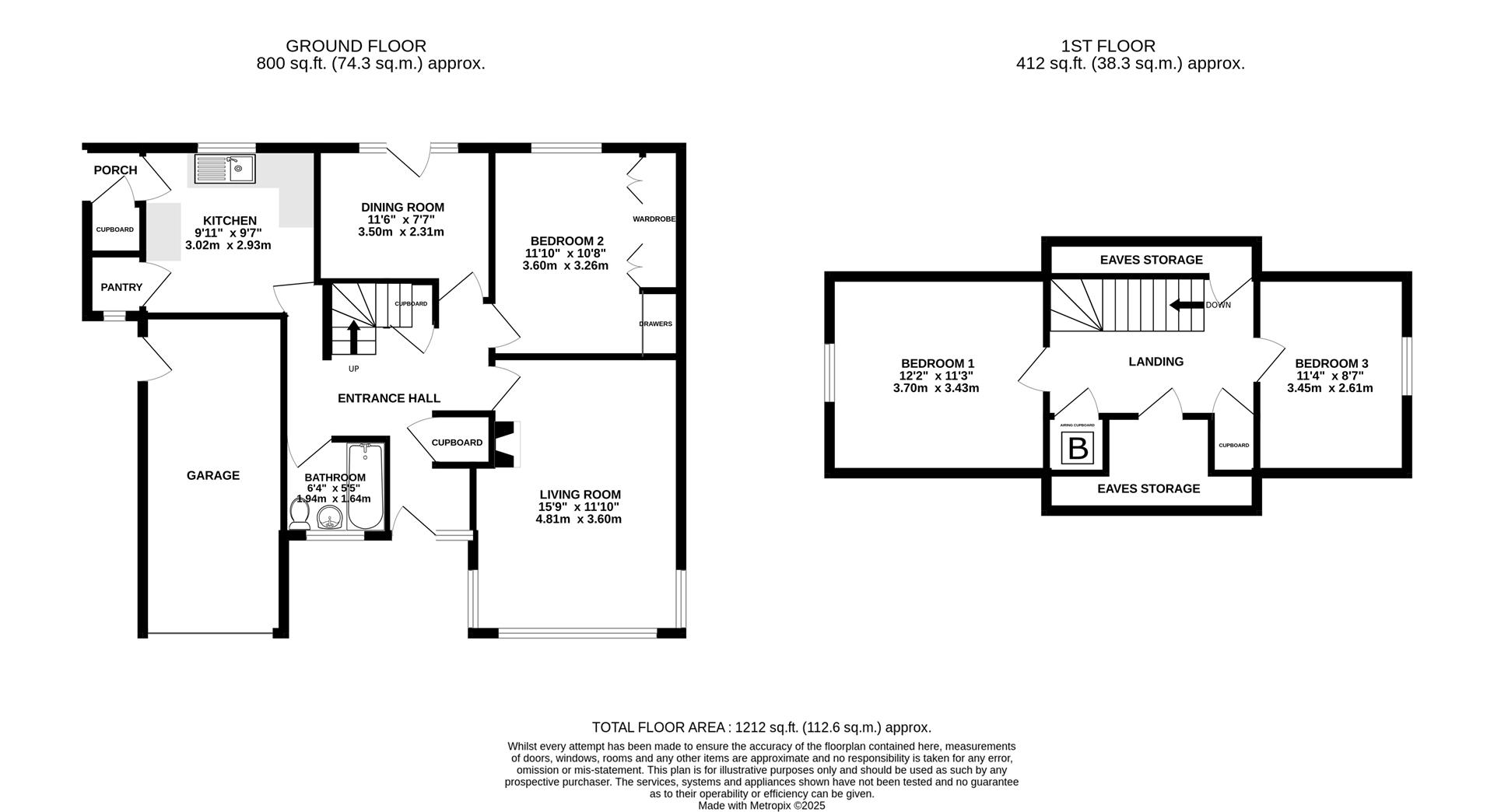
Sizeable detached chalet style bungalow with three double bedrooms. The ground floor boasts a welcoming entrance hall with living room, kitchen, dining room/study, a double bedroom and the bathroom. On the first floor are two further double bedrooms and ample storage space, with access to the eaves storage. The property has both front and rear gardens with a garage and driveway parking for one vehicle. Quietways is conveniently situated on the edge of Stonehouse Town and is within close proximity to local shops and the train station. The property is being offered to the market CHAIN FREE.

Entrance Hall

Wooden door to entrance hall and wooden single-glazed windows either side. Access to living room, bedroom two, bathroom, kitchen, dining room, two storage cupboards and stairs rising to the first floor. Radiator.

Living Room

Wooden secondary-glazed window to front elevation and two wooden secondary-glazed windows either side. Electric fireplace. Radiator.

Kitchen

uPVC double-glazed window to rear elevation and wooden door to porch. Range of wall and base units with stainless steel sink with mixer tap and drainer. Space for washing machine, fridge/freezer and freestanding cooker. Pantry cupboard. Radiator.

Dining Room

Two wooden single-glazed windows to rear elevation and wooden door to garden. Radiator.

Bedroom One

uPVC double-glazed window to side elevation. Radiator.

Bedroom Two

uPVC double-glazed window to rear elevation. Built-in wardrobes, dressing table and drawers. Radiator.

Bedroom Three

uPVC double-glazed window to side elevation. Radiator.

Bathroom

uPVC double-glazed window to front elevation. Low-level WC, wash hand basin and bath. Radiator.

First Floor Landing

Wooden Velux window. Two storage cupboard. Two access points to eaves storage.

Outside

To the front of the property there is driveway parking for one vehicle, there is also a front garden laid to lawn providing gated access to the rear and access to the garage. The rear garden is private and fully enclosed, it is mostly laid to lawn with a lean to and patio space.

Location

The property is located just on the edge of Stonehouse town. Local facilities include a Co-op with a Post Office, restaurants, primary and secondary schools. The property is approximately four miles to Junction 12 of the M5 motorway providing access to Gloucester, Cheltenham and Bristol. Stonehouse railway station has a regular train service to London and Cheltenham. The town is situated approximately three miles west of Stroud and twelve miles south of Gloucester.

Material Information

Tenure: Freehold.
Council tax band: D.
Local authority and rates: Stroud District Council - £2,421.63 (2025/26).
Electricity supply: mains.
Water supply: mains.
Sewerage: mains.
Heating: gas central heating.
Broadband speed: 16 Mbps (basic) and 80 Mbps (superfast).
Mobile phone coverage: EE, Three, O2 and Vodafone.

Floorplans For Quietways, Stonehouse Floorplans For Quietways, Stonehouse Floorplans For Quietways, Stonehouse
EPC For Quietways, Stonehouse
Arrange a viewing for Quietways, Stonehouse

For further details on this property please call us on:
01453 827640

Property Brochure Download PDF Arrange Viewing