3 1 1

3 bed House - Mid Terrace - For Sale
Abbots Way, Stonehouse
£289,000

  • Mid-terrace house tastefully finished throughout
  • Three bedrooms
  • Renovated by current owner to include new heating system and cosmetic works such as new kitchen
  • Open plan living space
  • Enclosed garden with rear access
  • Garage with power and light and driveway parking for one vehicle
  • Good transport links and close to local amenities
  • Freehold
  • Council tax band B (£1,883.49)
  • EPC rating D64
Tastefully renovated by the current owner, this three bedroom mid-terrace house is well-presented throughout and finished to a lovely standard. The open plan living space boasts a modern kitchen/living room/dining area creating a lovely social space. There are three bedrooms and a shower room. The property has an enclosed rear garden with access, a garage with integral access and power and light and driveway parking for one vehicle. Popular upgrades include a new gas boiler, new kitchen and shower room, as well as others.

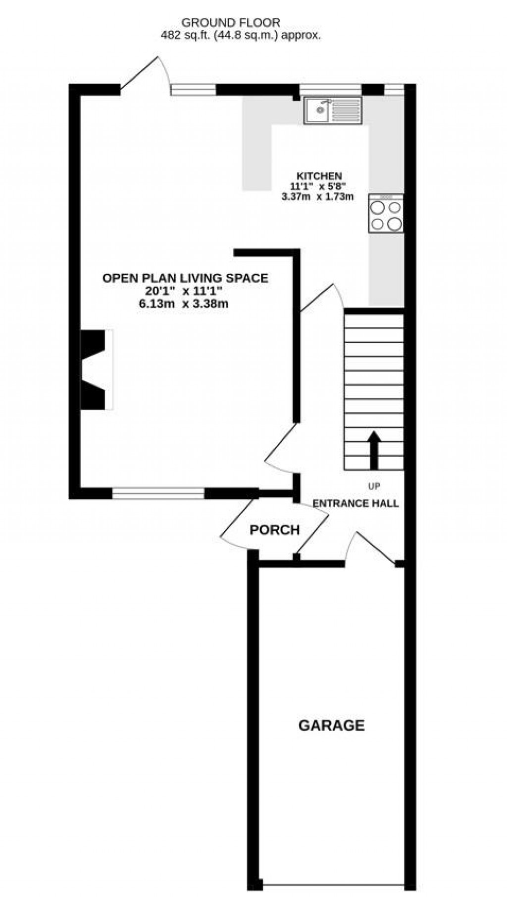
Porch

Door to porch with wooden door to hallway.

Hallway

Access to living room, kitchen, garage, under-stairs cupboard and stairs rising to the first floor. Radiator.

Open Plan Living Space

uPVC double-glazed window to front and rear elevation and uPVC double-glazed door to rear garden. Gas fireplace. Open plan access to kitchen. Two radiators.

Kitchen

Two uPVC double-glazed windows to rear elevation. Range of wall and base units with appliances to include sink with mixer tap and drainer, four ring electric hob, oven, integrated dishwasher. Space for under-counter fridge/freezer. Breakfast bar.

Bedroom One

uPVC double-glazed window to rear elevation. Radiator.

Bedroom Two

uPVC double-glazed window to front elevation. Radiator.

Bedroom Three

uPVC double-glazed window to front elevation. Radiator.

Shower Room

uPVC double-glazed window to rear elevation. Low-level WC, wash hand basin and walk in shower. Heated towel rail.

Outside

The property has driveway parking for one vehicle. The front garden is laid to patio with raised beds and a lawned area. The rear garden is fully enclosed and has access to a shared footpath. It is mostly laid to lawn with a patio space and footpath alongside side.

Location

The property is located just on the edge of Stonehouse town. Local facilities include a Co-op with a Post Office, restaurants, primary and secondary schools. The property is approximately four miles to Junction 12 of the M5 motorway providing access to Gloucester, Cheltenham and Bristol. Stonehouse railway station has a regular train service to London and Cheltenham. The town is situated approximately three miles west of Stroud and twelve miles south of Gloucester.

Material Information

Tenure: Freehold.
Council tax band: B.
Local authority and rates: Stroud District Council - £1,883.49 (2025/26).
Electricity supply: mains.
Water supply: mains.
Sewerage: mains.
Heating: gas central heating.
Broadband speed: 16 Mbps (basic), 80 Mbps (superfast) and 1,800 Mbps (ultrafast).
Mobile phone coverage: EE, Three, O2 and Vodafone.

Floorplans For Abbots Way, Stonehouse Floorplans For Abbots Way, Stonehouse Floorplans For Abbots Way, Stonehouse
EPC For Abbots Way, Stonehouse
Arrange a viewing for Abbots Way, Stonehouse

For further details on this property please call us on:
01453 827640

Property Brochure Download PDF Arrange Viewing