3 2 2

3 bed House - Semi-Detached - For Sale
Courtfield Road, Quedgeley, Gloucester
£299,950

  • Three bedroom semi-detached family home
  • Generous & flexible living accommodation throughout
  • Modern fitted kitchen with extended dining room to rear
  • Private & enclosed rear garden
  • Cabin with power & lighting
  • Driveway providing off-road parking for multiple vehicles
  • Potential rental income of £1,300 pcm
  • EPC rating C71
  • Gloucester City Council - Tax Band B (£1,741.26 per annum) 2025/2026
Positioned within the ever popular Courtfield Road in the heart of Quedgeley, this beautifully presented three bedroom semi-detached family home is offered to the market. The property benefits from extended living accommodation, large driveway and mature private rear garden with a versatile wooden cabin creating the perfect home office space. With much to offer growing families, viewing is highly advised.

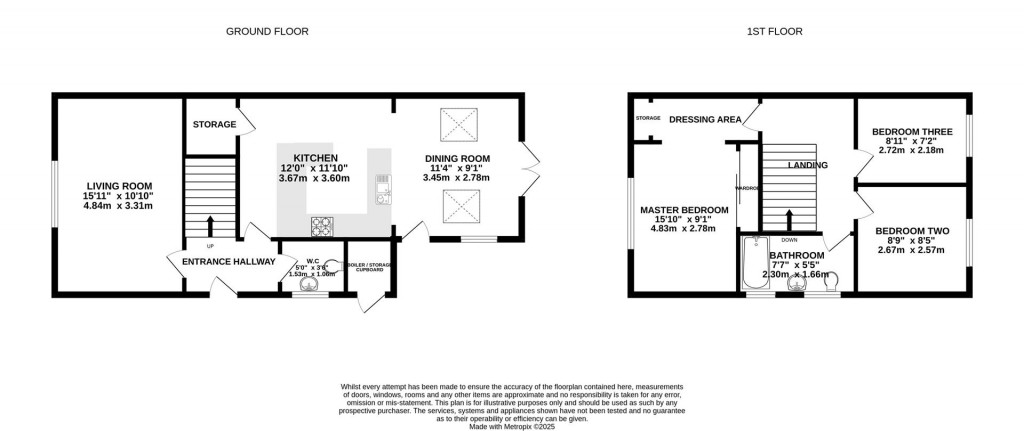
Entrance Hallway

Hallway provides access to the living room, kitchen and downstairs w.c.

Living Room

Spacious living room with window overlooking the front aspect of the property.

Kitchen / Dining Room

The modern kitchen boasts solid beech wood worktops with many built-in storage cupboards above below. Integrated appliances include gas hob and double electric ovens alongside plumbing for a dishwasher, tumble dryer and automatic washing machine. Extended to the rear, the kitchen opens through to a versatile room providing many different uses such as dining room, garden or second living room with an abundance of natural light streaming through via the velux windows above and French doors providing access to the rear garden. Door to the side provides additional access to the garden. whilst the kitchen also benefits from a pantry style cupboard located beneath the stairwell.

Downstairs W.C

Cloakroom comprises w.c, wash hand basin and window with frosted glass overlooking the side aspect.

Landing

Spacious landing area provides access to all three bedrooms, family bathroom, built-in airing cupboard housing the hot water storage tank and access to the loft above.

Bedroom One

Large double bedroom with built-in double wardrobes and ideal space to create a dressing area with further storage space. Window overlooks the front aspect of the property.

Bedroom Two

Double bedroom with window overlooking the rear aspect with views of the Church in the distance.

Bedroom Three

Utilised as a home office, the bedroom benefits from a window overlooking the rear aspect.

Bathroom

Modern fully tiled white suite bathroom comprises w.c, wash hand basin with storage below, bath with power shower attachment over, sensored lighting and window with frosted glass overlooking the side aspect.

Outside

To the rear, the property boasts a beautifully presented rear garden made private by an array of trees, including apple tree, and hedgerows creating a peaceful and tranquil setting. Patio and decking areas provide ideal space for seating and entertaining guests whilst being able to benefit from the sun all day long. Sheds to the rear provide ideal storage space whilst a purpose built wood cabin benefits from power, internet connection and lighting creating the ideal home office space separate from the home itself. The cabin also benefits from an additional workshop or storage area. Gated side access opens to the side aspect where the driveway is located providing off-road parking for three to four vehicles. Additional storage cupboard to the side of the house is also located from the driveway which houses the conventional boiler whilst an additional lawned area is also found to the front of the property.

Location

Established and highly sought after, Quedgeley offers various amenities to include a large Tesco and Aldi superstores, Post Office, shopping outlets, eateries in addition to both primary and secondary schools and transportation links. Situated approximately 5 miles from Gloucester City Centre the location is ideal for both professionals and families alike. The property is also just a 2 minute walk from the Elmore Lane Bridge that gives access to the Gloucester & Sharpness Canal walking and cycling routes (see photograph) that in one direction can take you into the heart of Gloucester. A further 2 minutes walk will take you to the countryside and riverside walks along the Severn Way public footpath. A children’s play park, nature reserve and community orchard are all just 5 minutes from the house.

Material Information

Tenure: Freehold.
Local Authority and Rates: Gloucester City Council - Tax Band B (£1,741.26 per annum) 2025/2026.
Electricity supply: Mains.
Water supply: Mains.
Sewerage: Mains.
Heating: Gas central heating.
Broadband speed: Basic 13 Mbps, Superfast 52 Mbps, Ultrafast 1000 Mbps download speed.
Mobile phone coverage: EE, Three, O2, Vodafone.

Floorplans For Courtfield Road, Quedgeley, Gloucester
EPC For Courtfield Road, Quedgeley, Gloucester
Arrange a viewing for Courtfield Road, Quedgeley, Gloucester

For further details on this property please call us on:
01452 398010

Property Brochure Download PDF Arrange Viewing