3 2 2

3 bed House - End Terrace - Sold
Beards Mill, Leonard Stanley, Stonehouse
£595,000

  • Three-bedroom end terrace family home
  • Rural location, surrounded by fields and the river Frome
  • Well established garden with mature trees and shrubs
  • Detached studio with electricity and a wood burner
  • Balcony from the master bedroom with panoramic views
  • Spacious accommodation with character features
  • Part of a former Cloth Mill building dating back to the 1800’s
  • Ample off-road parking
  • Stroud District Council. Tax Band D. £2006.93 per annum (2022/2023)
  • EPC Rating E51
A beautiful three-bedroom property, formally part of the cloth mill is new to the market. Boasting versatile ground floor accommodation with a kitchen/breakfast room, utility room, dining room/study, living room, and cloakroom on the ground floor and spacious first floor accommodation to comprise master bedroom with en-suite and balcony, second bedroom and bathroom as well as a third bedroom found on the second floor. Set in mature gardens surrounded by the river Frome and nearby fields, this idyllic home is not one to be missed.

Accommodation

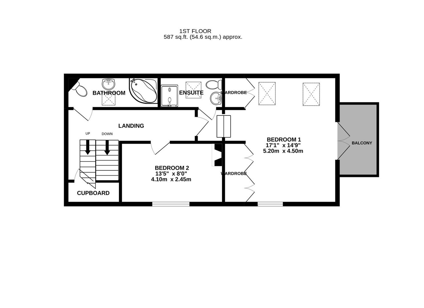
A large front door with a roof canopy and wrought iron structure welcomes you into this characterful home. The spacious feel of the home starts with the entrance hall, which offers stairs to the first floor and doors to the ground floor accommodation. The living room boasts character features to include exposed wooden beams, an open fireplace, and a sash window. A barn style door leads to the kitchen/breakfast room. Bespoke made cabinets surround the kitchen area, incorporating a Rangemaster style oven, ceramic Belfast sink and fireplace with mantle surround to be in keeping with the character of the house. Quarry tiles lead to the breakfast area, which is large enough to seat an eight-person table and sideboard. The room stays light and airy from the three sash windows that overlook the river Frome and nearby fields. The dining room leads from the breakfast area and is a versatile space. Currently being used as a study, the room has dual aspect windows overlooking the gardens. The ground floor also benefits from a cloakroom, utility room and plenty of storage. On the first floor, the second bedroom can be found and offers a sash window overlooking the front garden, wooden beams, and an ornamental fireplace. The master bedroom offers built in wardrobes, an en-suite comprising shower, WC and sink, and a balcony overlooking the gardens, the river Frome, and surrounding fields. On the second floor is the third bedroom that is light and airy from the two Velux windows. The bedrooms are serviced by the first-floor bathroom that comprises large corner bath, WC, sink and Velux window. At the bottom of the garden, is a detached, open plan studio with electricity and a wood burner.

Outside

There is ample off-road parking as you drive through the five-bar gate to the house. The front garden is laid to lawn, with borders of mature plants and trees. A low-level Cotswold stone brick wall runs behind the front garden alongside the front path to the property. The garden is well-established with perfumed flowers enticing natural wildlife. The garden offers a patio area, perfect for alfresco dining, and a further decking area around the studio. Overlooking the stream, the decking is the paradisiacal place to listen to the water flowing and the birdsong.

Location

Beards Mill boasts a tranquil position on the outskirts of Stonehouse. Positioned in the heart of the countryside, you are surrounded by fields, trees, and the river Frome. Stonehouse itself provides various amenities including a Co-op with a post office, restaurants, primary and secondary schools. Junction thirteen of the M5 motorway is just under three miles. Stonehouse railway station has a regular train service to London and Cheltenham. The town is situated approximately three miles west of Stroud and twelve miles south of Gloucester.

Tenure, Services and Local Authority

Freehold.
All mains’ services are believed to be connected to this property, with the exception of drainage.
Stroud District Council. Tax Band D. £2006.93 per annum (2022/2023)

Directions

From our office in Stonehouse, turn right onto Bath Road. At the Horse Trough Roundabout, take the third exit onto Bristol Road. Continue straight for 0.8 miles and then turn left. Follow this road for approximately 0.4 miles. You will go over three bridges and under one railway bridge. After the railway bridge, bear right and the property will be found shortly after towards the end of the private lane.

Floorplans For Beards Mill, Leonard Stanley, Stonehouse Floorplans For Beards Mill, Leonard Stanley, Stonehouse Floorplans For Beards Mill, Leonard Stanley, Stonehouse Floorplans For Beards Mill, Leonard Stanley, Stonehouse
EPC For Beards Mill, Leonard Stanley, Stonehouse
Arrange a viewing for Beards Mill, Leonard Stanley, Stonehouse

For further details on this property please call us on:
01453 827640

Property Brochure Download PDF Arrange Viewing