3 1 2

3 bed House - Mid Terrace - Sold
Aldergate Terrace, Stonehouse
£279,950

  • Mid-terrace house
  • Three bedrooms
  • Two reception rooms
  • Enclosed rear garden
  • Located in Stonehouse town centre
  • Walking distance to train station
  • Chain free
  • Freehold
  • Council tax band B (£1,796.98)
  • EPC rating D61
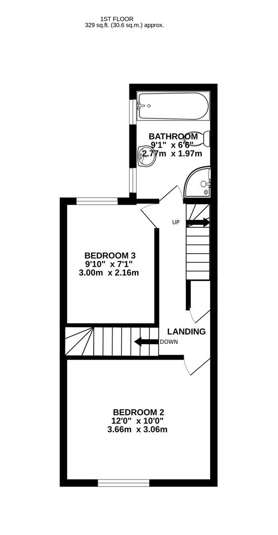
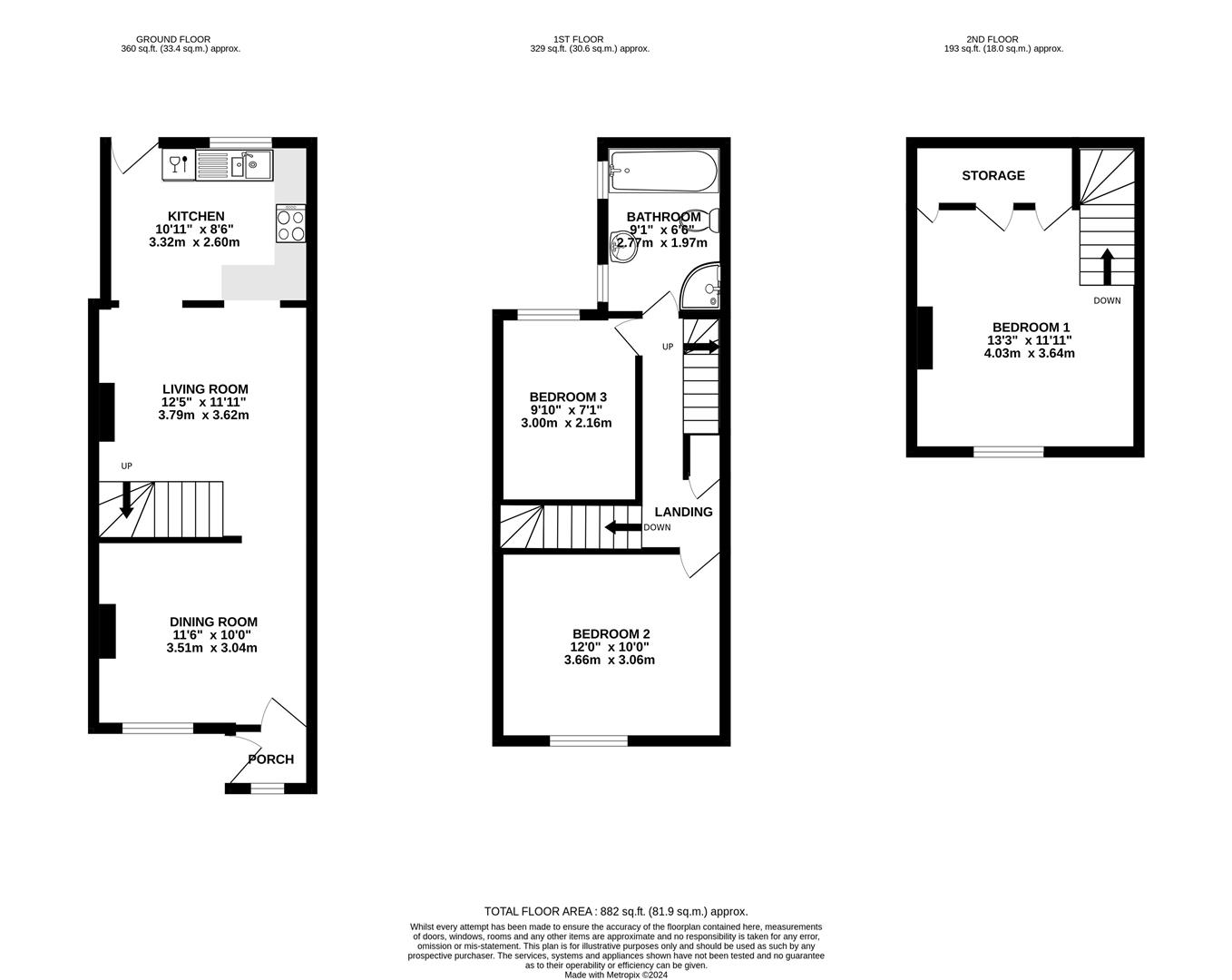
This three bedroom, mid-terrace house is located in Stonehouse town centre and within walking distance to the train station. The property boasts character features throughout and is spread over three floors. On the ground floor is a dining room, living room a kitchen with access to the rear garden. The first floor provides two bedrooms and a bathroom and the second floor benefits from a master bedroom with views. The rear garden is fully enclosed with a storage shed. Permit parking is available and this property is being offered to the market CHAIN FREE.

Dining Room

uPVC double-glazed window to front elevation. Door to porch. Radiator.

Living Room

Stairs rising to first floor. Log burner. Radiator.

Kitchen

uPVC double-glazed window to rear elevation. Range of wall and base units with appliances to include one and a half bowl ceramic sink with mixer tap and drainer, induction hob with oven below and dishwasher. Along with space for fridge.

Bedroom One

uPVC double-glazed window to front elevation. Built-in wardrobe. Stairs leading to first floor. Radiator.

Bedroom Two

uPVC double-glazed window to front elevation. Built-in storage. Radiator.

Bedroom Three

uPVC double-glazed window to rear elevation. Radiator.

Bathroom

Two uPVC double-glazed windows to side elevation. Low-level WC, wash hand basin with mirror, bath and shower cubicle. Radiator.

Outside

The walled front garden is accessed via a gate, which gives access to the front of the property. The rear garden is fully enclosed and benefits from both a lawned area and a patio space. There is a storage shed. Permit parking is available subject to availability. It is £63.60 per annum for one vehicle and £127.35 per annum for a second vehicles, the maximum number of vehicles allowed is two. There is also parking available at the church subject to availability, this is charged at £20pcm.

Location

The property is located centrally in Stonehouse town, within easy reach of local amenities including a Co op with a post office, restaurants, primary and secondary schools. Junction 13 of the M5 motorway is just under three miles. Stonehouse railway station has a regular train service to London and Cheltenham. The town is situated approximately three miles west of Stroud and twelve miles south of Gloucester.

Material Information

Tenure: Freehold.
Council tax band: B.
Local authority and rates: Stroud District Council - £1,796.98 (2024/25).
Electricity supply: mains.
Water supply: mains.
Sewerage: mains.
Heating: gas central heating.
Broadband speed: 17 Mbps (basic) and 80 Mbps (superfast).
Mobile phone coverage: EE (Limited), Three (Limited), O2 and Vodafone.

Floorplans For Aldergate Terrace, Stonehouse Floorplans For Aldergate Terrace, Stonehouse Floorplans For Aldergate Terrace, Stonehouse Floorplans For Aldergate Terrace, Stonehouse
EPC For Aldergate Terrace, Stonehouse
Arrange a viewing for Aldergate Terrace, Stonehouse

For further details on this property please call us on:
01453 827640

Property Brochure Download PDF Arrange Viewing