3 1 3

3 bed House - Semi-Detached - Sold Subject to Contract
Moreton Valence, Gloucester
£336,000

  • Semi-detached house
  • Three bedrooms
  • Sizeable accommodation throughout
  • Mature rear garden
  • Garage and driveway parking for several vehicles
  • Village location
  • Chain free
  • Freehold
  • Council tax band D (£2,334.23)
  • EPC rating D68
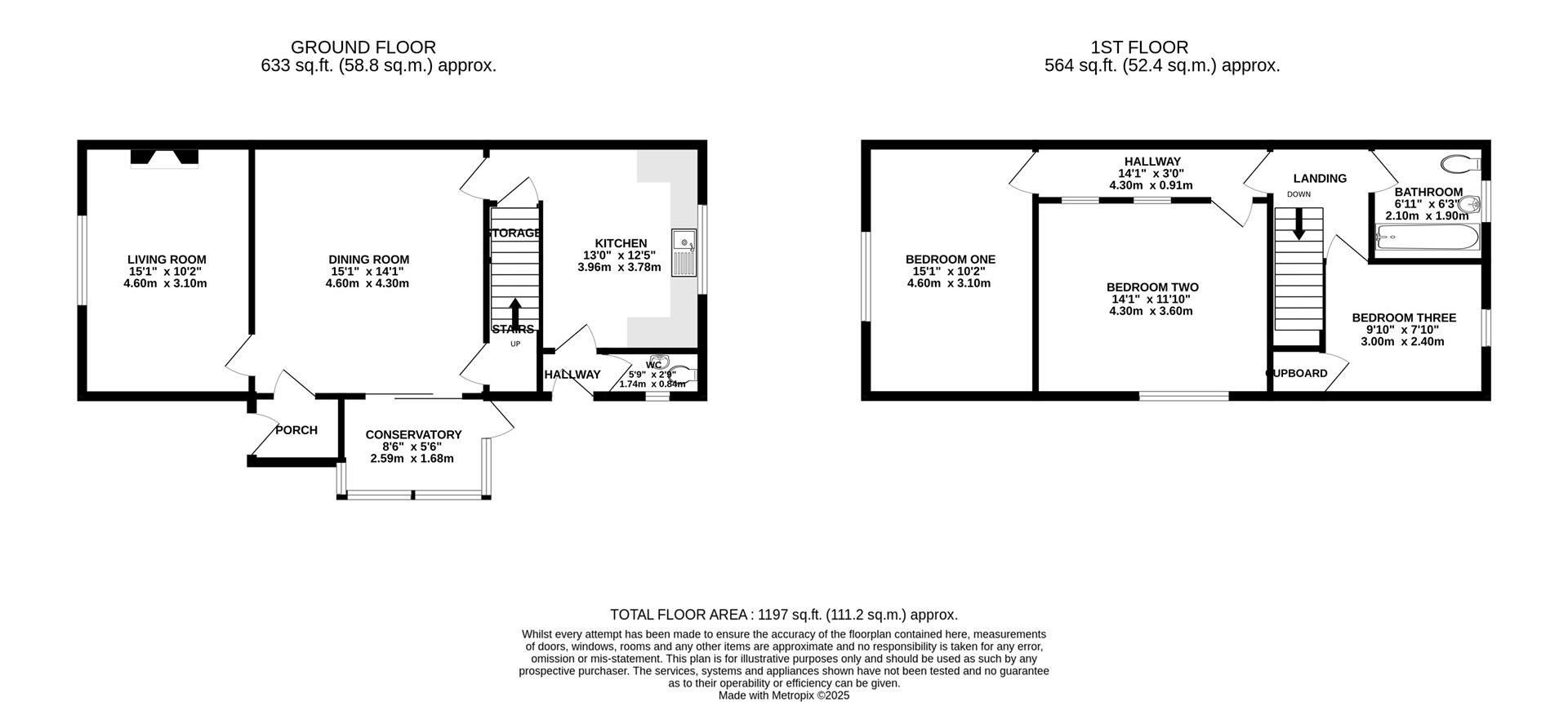
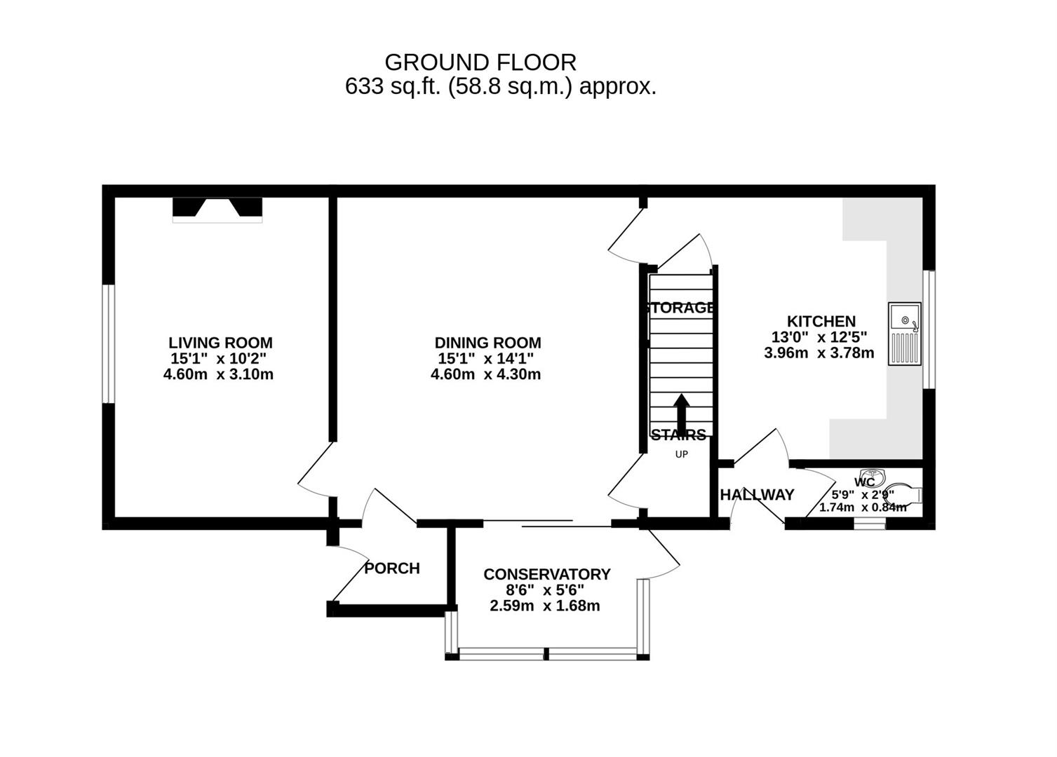
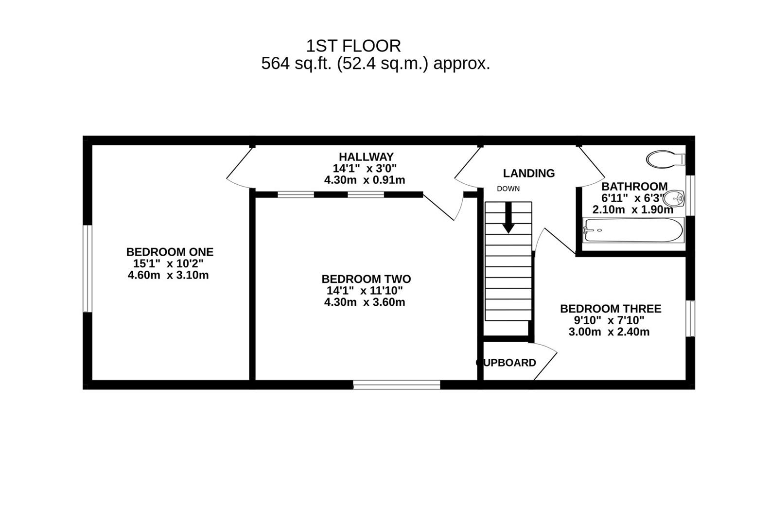
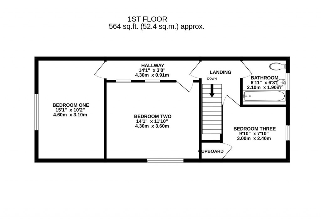
Situated in the sought after village of Moreton Valence, this three bedroom house offers well-proportioned accommodation with the open countryside on your doorstep. The ground floor comprises a porch, living room, kitchen, dining room, garden room and cloakroom. On the first floor, there are two sizeable double bedrooms, a single bedroom and family bathroom. The property benefits from a rear garden overlooking fields, a garage and driveway parking for several vehicles. The property is being offered to the market CHAIN FREE.

Porch

Door to porch, uPVC door to dining room and uPVC double-glazed window to side elevation.

Living Room

uPVC double-glazed window to front elevation and laminate flooring. Gas fire. Radiator.

Kitchen

uPVC double-glazed window to rear elevation. Range of wall and base units with appliances to include fitted extractor fan. Access to inner lobby and storage cupboard. Radiator.

Dining Room

Double-glazed sliding doors to garden room. Access to kitchen and stairs rising to the first floor. Radiator and laminate flooring.

Garden Room

uPVC door to garden and uPVC double-glazed windows surrounding. Radiator.

Cloakroom

Low-level WC and wash hand basin.

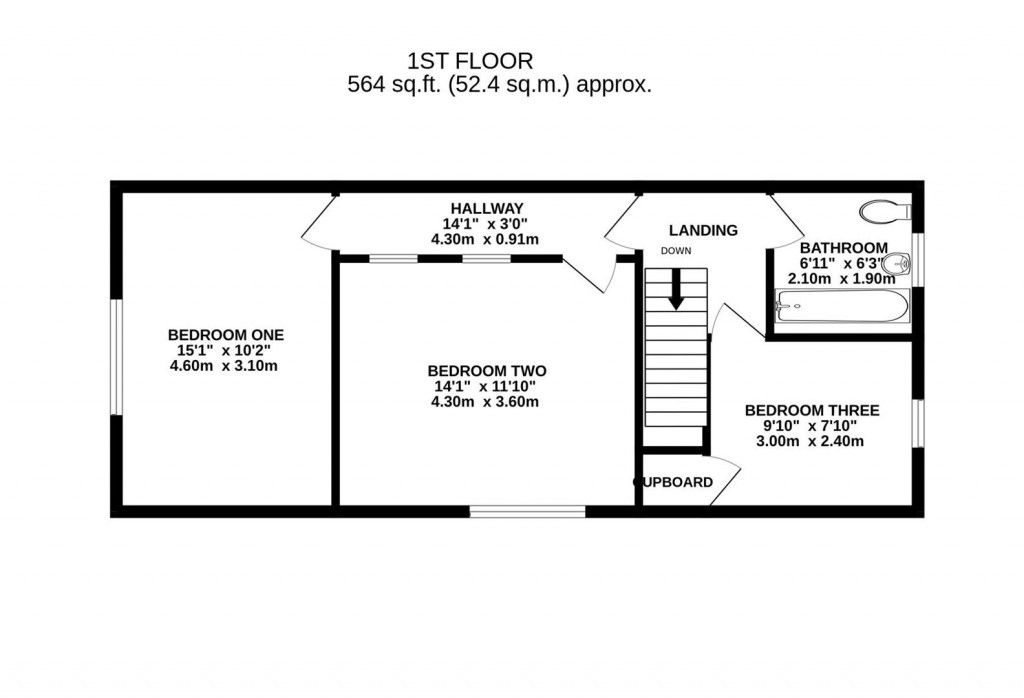
Bedroom One

uPVC double-glazed window to front elevation and fitted carpets. Radiator.

Bedroom Two

uPVC double-glazed window to side elevation and fitted carpet. Radiator.

Bedroom Three

uPVC double-glazed window to rear elevation and fitted carpet. Storage cupboard. Radiator.

Bathroom

uPVC double-glazed window to rear elevation. Low-level WC, wash hand basin and bath with shower over. Radiator.

Outside

The property benefits from a driveway with parking for several vehicles. The rear garden is mature and mostly laid to lawn, it boasts ample greenery with hedge borders. There is also a single garage.

Location

The Property is located in the village of Moreton Valence. Local facilities are available at nearby Stonehouse which is a short drive, facilities include two supermarkets, restaurants, post office, primary and secondary schools. Stonehouse railway station has a regular train service to London and Cheltenham. There are more extensive recreational, education and shopping facilities being available in Stroud, Gloucester & Cheltenham. The M5 is within easy reach giving easy access to Bristol and Birmingham.

Material Information

Tenure: Freehold.
Council tax band: D.
Local authority and rates: Stroud District Council - £2,334.23 (2025/26).
Electricity supply: mains.
Water supply: mains.
Sewerage: septic tank.
Heating: gas central heating, combination boiler.
Broadband speed: 5 Mbps (basic) and 1000 Mbps (superfast).
Mobile phone coverage: EE (Limited), Three (Limited), O2 (Limited) and Vodafone (Limited).

Floorplans For Moreton Valence, Gloucester Floorplans For Moreton Valence, Gloucester Floorplans For Moreton Valence, Gloucester
EPC For Moreton Valence, Gloucester
Arrange a viewing for Moreton Valence, Gloucester

For further details on this property please call us on:
01453 827640

Property Brochure Download PDF Arrange Viewing