0 0

Block of Flats - Sold Subject to Contract
Brunswick Road, Gloucester
£265,000

  • Spacious former office premises
  • Planning permission granted for 3 spacious one bed apartments
  • Grade II listed building within close proximity of the Historic Gloucester Docks
  • Two parking spaces & additional garden space
  • Ideal investment opportunity
  • No onward chain
  • Architectural plans & drawings available on request
  • Gloucester City Council - Business Rates £5,900 per annum 2024/2025
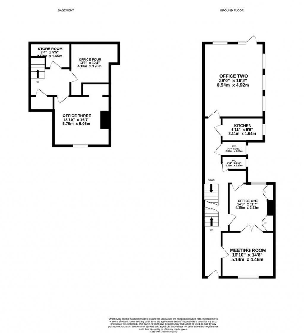
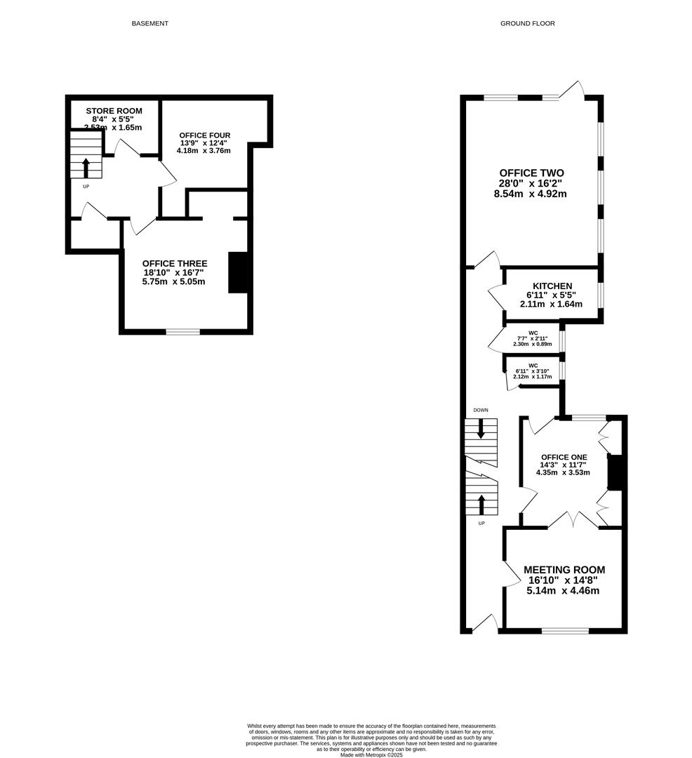
Unique proposition situated on the Georgian terrace of Brunswick Road. Formerly used as offices, the ground floor and basement premises has planning permission for the creation of three spacious one bedroom apartments with allocated parking spaces. The property boasts spacious accommodation and characterful features throughout offering the potential to be a fantastic investment opportunity.

(Drawings for each apartment shown within the photos).

Accommodation

Formerly used as office premises, the vast space provides multiple reception rooms and toilet facilities. The spacious basement area also benefits from further living accommodation. The present owners have obtained planning permission to convert the current premises into three generous sized one bedroom apartments, two on the main floor space of the office and another within the basement all with their own facilities.

Outside

The front of the property provides two allocated parking spaces whilst to the rear of the building, accessed with vehicular access via Montpellier, an additional lawned area can be created to additional parking if required or to a private garden area for one of the apartments.

Location

Adjacent to the leafy and private location of Brunswick Square, Georgian architecture is prevalent throughout the area. Approximately quarter of a mile from the historic city centre Gloucester offers various amenities, shopping and transport facilities throughout whilst The Gloucester Quays development, a short walking distance form the square, offers a range of restaurants, cinema and bars only half a mile. With various schooling at all levels, both comprehensive and secondary, alongside access to the open green space of the square itself and the Gloucester city park the property is sure to be favoured by families and those looking for a quieter pace of life within a conveniently central location.

Material Information

Tenure: Freehold. The maintenance is self-managed, to cover insurance, fire alarm servicing, incidental costs. The fees are £600 for the offices and £300 for each of the flats annually which are prices inherited when the owners bought the freehold. The two flats above are privately owned but are leasehold. Once the flats are converted, new leases will need to be drawn up. (Information correct as of 24/2/25).

Local Authority and Rates: Gloucester City Council - Business Rates £5,900 per annum 2024/2025.
Electricity supply: Mains.
Water supply: Mains.
Sewerage: Mains.
Heating: Gas central heating.
Broadband speed: Basic 17 Mbps, Superfast 80 Mbps, Ultrafast 1000 Mbps download speed.
Mobile phone coverage: EE, Three, O2, Vodafone.

Agent Note

Please note the property belongs to a relation of a Naylor Powell employee.

Floorplans For Brunswick Road, Gloucester
Arrange a viewing for Brunswick Road, Gloucester

For further details on this property please call us on:
01452 398010

Property Brochure Download PDF Arrange Viewing