1 1 1

1 bed Apartment - For Sale
Provender, Gloucester Docks
£170,000

  • No onward chain
  • Modern one bedroom stylish apartment
  • Open plan living room & kitchen with integrated appliances
  • Private balcony accessed from the living room
  • Potential rental income of £950 pcm
  • EPC rating B84
  • Gloucester City Council - Tax Band B (£1,741.26 per annum) 2025/2026
Located on the first floor of the modern Provender development on the edge of the historic Gloucester Docks, this spacious one bedroom apartment is offered to the market with no onward chain. The apartment benefits from open living accommodation, an array of integrated kitchen appliances and communal parking to the front of the building. This property has much to offer residential buyers and investors alike with a potential rental income of £950 pcm.

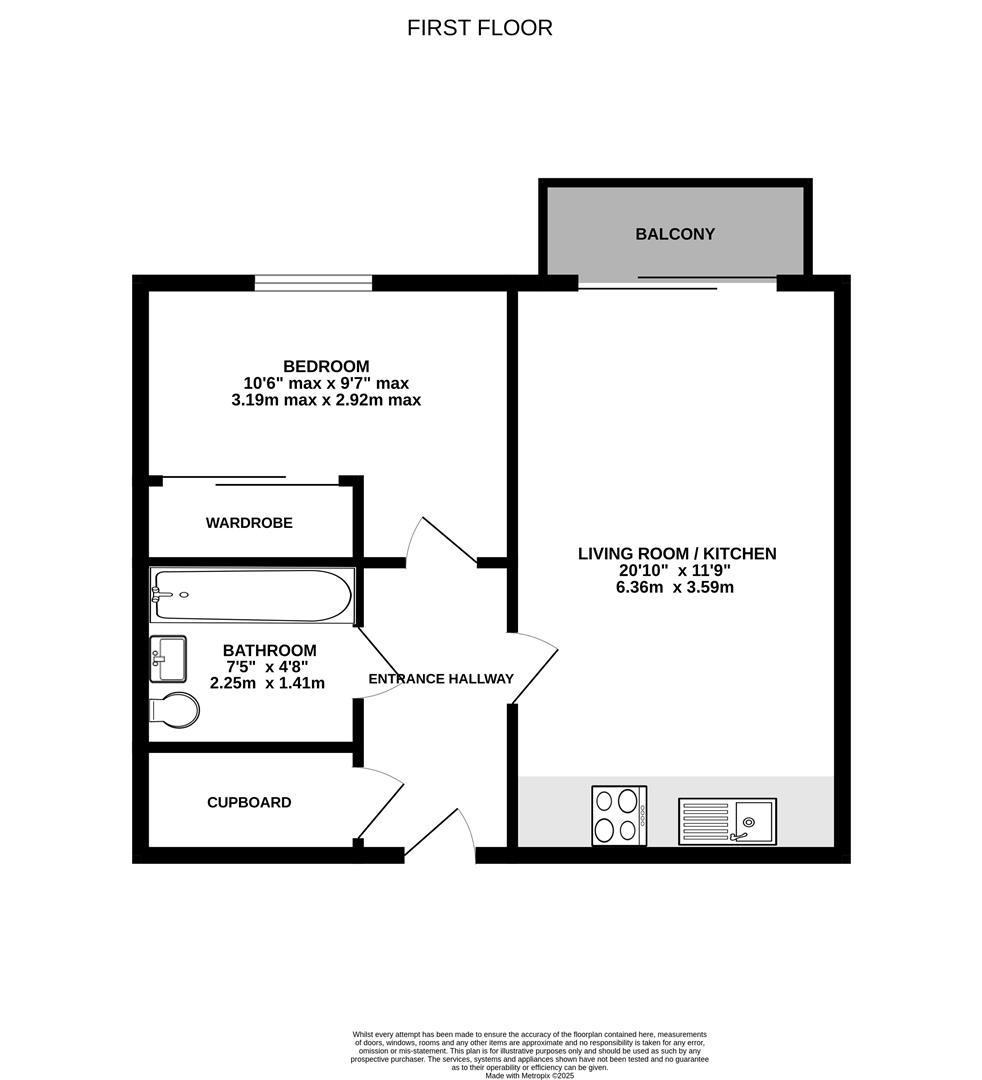
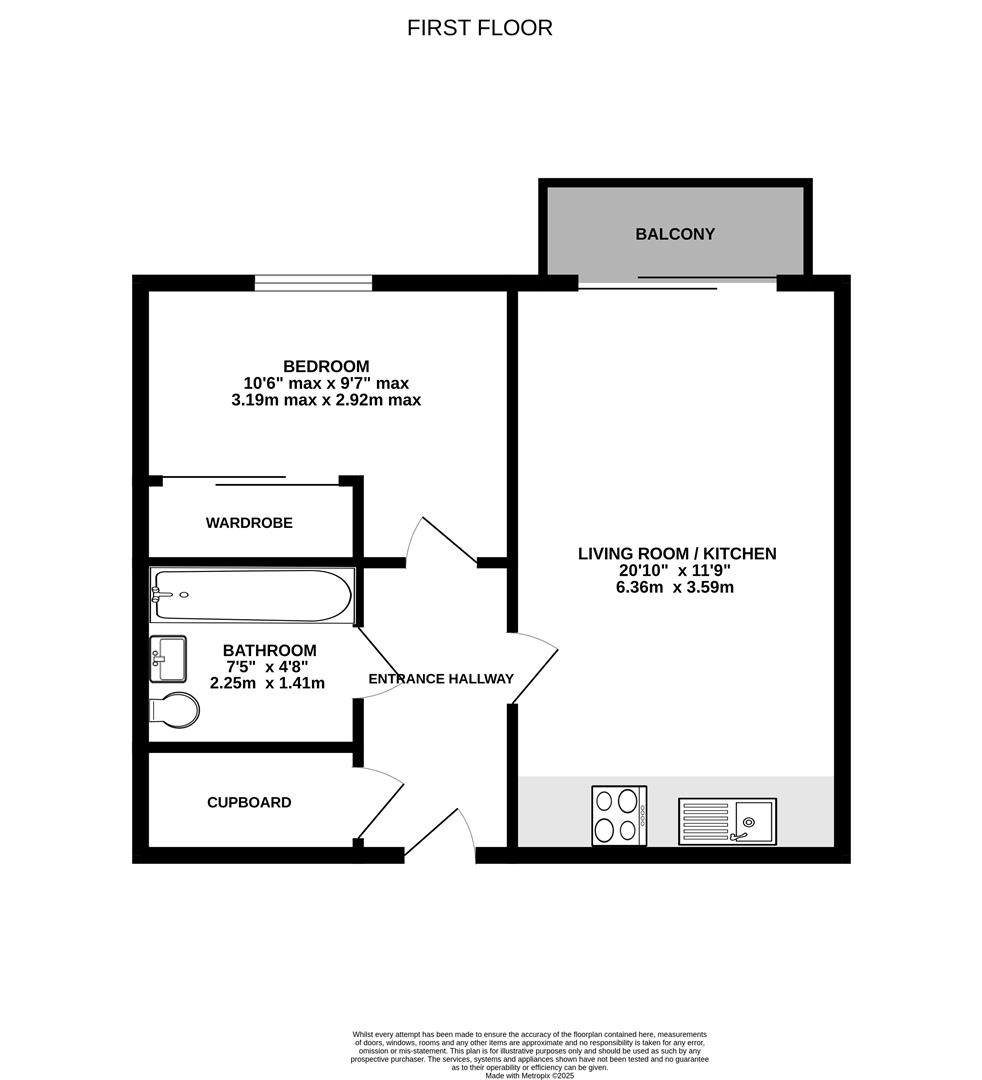
Entrance Hallway

Spacious entrance hall, with Karndean wood flooring that continues into the living area, also provides access to the bedroom, bathroom and large utility cupboard benefitting from plumbing for an automatic washing machine.

Living Room / Kitchen

The open plan room benefits from convenient space for both lounge and dining areas with sliding doors providing access to the private balcony to the rear. The kitchen itself boasts ample worktop and storage space alongside integrated electric hob, oven, dishwasher, fridge and freezer.

Bedroom

Double bedroom with window overlooking the rear aspect and built-in double wardrobe.

Bathroom

Modern white suite family bathroom comprising of w.c, wash hand basin, heated towel rail, wall mounted mirror and bath with shower attachment over.

Outside

Externally the property benefits from parking to the front of the building within the communal car parking area. A convenient space for seating is also provided on the edge of the canal itself.

Location

Provender is superbly located for access to the shops, cafés, bars and restaurants throughout Gloucester Docks and beyond.
Outside the boundaries of the of the Quays, Gloucester Cathedral and Gloucester Rugby's Kingsholm stadium are just a few of the local attractions within easy reach. Surrounding countryside includes the nearby Cotswolds, Malvern Hills and the Wye Valley, all areas of outstanding natural beauty.

Material Information

Tenure: Leasehold with 200 years from January 2018. Managed by Bruton Knowles Management Company with a ground rent of £167 per annum alongside a service charge of £1,901.15 per annum covering security, maintenance of communal areas, building insurance and the secure allocated parking space.
*Information correct as of 03/03/25*

*EWS1 form has been granted as of 16/04/25*

Local Authority and Rates: Gloucester City Council - Tax Band B (£1,741.26 per annum) 2025/2026.
Electricity supply: Mains.
Water supply: Mains.
Sewerage: Mains.
Heating: Gas central heating.
Broadband speed: Standard 17 Mbps download speed. Ultrafast broadband speed 1000 mbps.
Mobile phone coverage: EE, Three, O2, Vodafone.

Floorplans For Provender, Gloucester Docks
EPC For Provender, Gloucester Docks
Arrange a viewing for Provender, Gloucester Docks

For further details on this property please call us on:
01452 398010

Property Brochure Download PDF Arrange Viewing