1 1 1

1 bed Maisonette - Upper - Sold Subject to Contract
Hawthorn Rise, Stroud
£144,000

  • First floor mainsonette
  • Double bedroom
  • Great first time buy or buy-to-let investment
  • Garden space located out the front of the property
  • One allocated parking space
  • Potential rental income of £750pcm
  • Ground rent of £15 per annum
  • Leasehold - 999 years from 15/02/1979 with 952 years remaining
  • Council tax band A (£1,517.75)
  • EPC rating C74
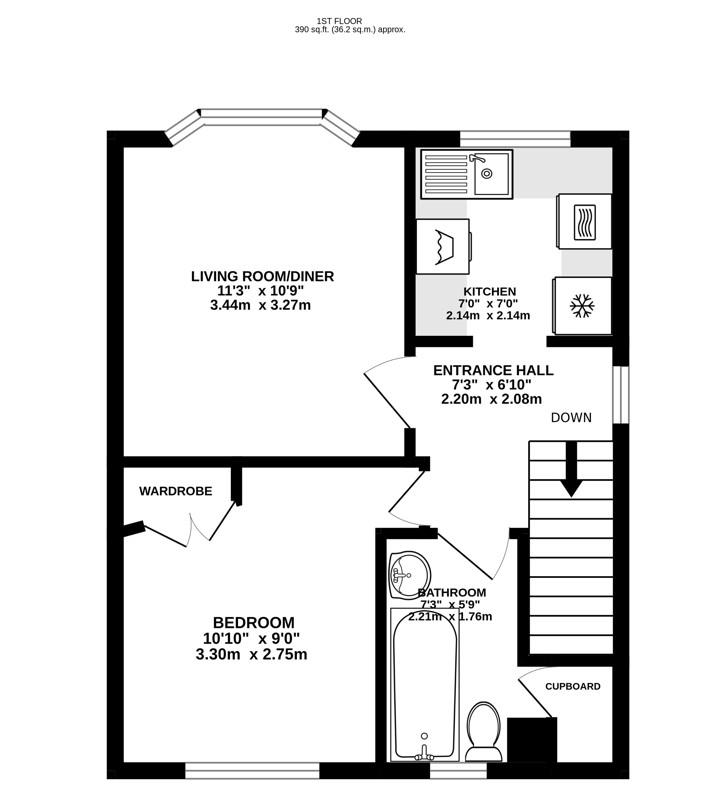
This one bedroom maisonette is located in the popular residential suburb of Cashes Green. The property has spacious accommodation throughout to include a light and airy living/dining room, kitchen and bathroom as well as a double bedroom with wardrobe. There is one allocated parking space and a front garden laid to lawn. The property benefits from good transport links and is close to the popular market towns of Stroud and Stonehouse. The maisonette would make an ideal buy to let investment with a rental income of approximately £750pcm.

Entrance Hall

uPVC double-glazed door to entrance hall. Stairs rising to first floor. Radiator.

Living Room/Diner

uPVC double-glazed window to rear elevation. Radiator.

Kitchen

uPVC double-glazed window to rear elevation. Range of wall and base units with appliances to include washer/dryer, fridge/freezer, oven with four ring electric hob and stainless steel sink with mixer tap and drainer.

Bedroom

uPVC double-glazed window to front elevation. Built-in wardrobes. Radiator.

Bathroom

uPVC double-glazed window to rear elevation. Low-level WC, wash hand basin and bath with shower over. Storage cupboard. Heated towel rail.

Outside

The property benefits from one allocated parking space. The front garden is mostly laid to lawn with some greenery.

Location

The property is located in Cashes Green, there are local amenities such as the Co-Operative supermarket, coffee bars, and hairdressers. Foxmoor Primary School is within walking distance. Other schools such as Cashes Green Primary School, Archway Secondary School, Marling Grammar for boys and Stroud High for Girls can be found nearby. A wider range of facilities is available in Stroud where you will find a variety of restaurants, an award winning twice weekly farmers market, leisure and sports centre and there is also a main line railway station with intercity services connecting to London (Paddington), Gloucester and Cheltenham. Junction 13 of the M5 motorway is also within easy driving distance.

Material Information

Tenure: Leasehold - 999 years from15/02/1979 with 952 years remaining
Ground rent: approximately £15 per annum.
Management company: Maple 107.
Council tax band: A.
Local authority and rates: Stroud District Council - £1,517.75 (2025/26).
Electricity supply: mains.
Water supply: mains.
Sewerage: mains.
Heating: gas central heating.
Broadband speed: 7 Mbps (basic) and 68 Mbps (superfast).
Mobile phone coverage: EE, Three (Limited), O2 (Limited) and Vodafone (Limited).

Floorplans For Hawthorn Rise, Stroud Floorplans For Hawthorn Rise, Stroud Floorplans For Hawthorn Rise, Stroud
EPC For Hawthorn Rise, Stroud
Arrange a viewing for Hawthorn Rise, Stroud

For further details on this property please call us on:
01453 827640

Property Brochure Download PDF Arrange Viewing