3 1 2

3 bed House - Semi-Detached - Sold Subject to Contract
Guildings Way, Kings Stanley, Stonehouse
£290,000

  • Semi-detached house
  • Three bedrooms
  • Opportunity to add your own stamp
  • Enclosed rear garden with views over the Cotswold Way
  • Driveway parking for two vehicles and single garage
  • Sought after village location of Kings Stanley
  • Chain free
  • Freehold
  • Council tax band C (£2,054.33)
  • EPC rating C69
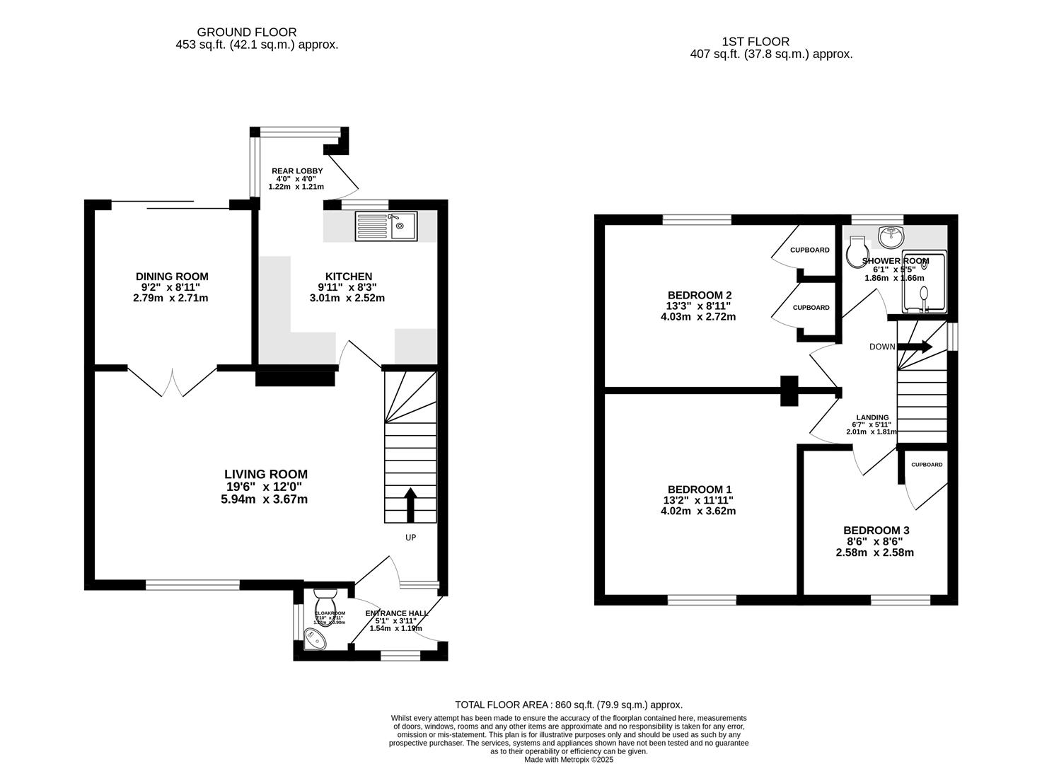
Located in the sought after village of Kings Stanley, this three bedroom semi-detached property boasts open views to the rear across the Cotswold Way. The property briefly comprises an entrance porch, cloakroom, living room, dining room with decking area, kitchen and rear lobby on the ground floor. On the first floor there are three bedrooms and a shower room. The property has a single garage and driveway parking for two vehicles. The property is ideal for a buyer looking to modernise and add their own stamp to their new home. It is offered to the market CHAIN FREE.

Entrance Hall

uPVC door to entrance hall and uPVC double-glazed window to front elevation. Access to cloakroom and living room. Electric heater.

Living Room

uPVC double-glazed window to front elevation and wooden French doors to dining room. Stairs rising to the first floor with under-stairs cupboard. Two radiators.

Kitchen

uPVC double-glazed window to rear elevation. Range of wall and base units to include stainless steel sink with mixer tap and drainer. Space for washing machine and fridge. Radiator.

Dining Room

uPVC double-glazed sliding doors to decking area. Radiator.

Cloakroom

uPVC double-glazed window to front elevation. Low-level WC and wash hand basin.

Rear Lobby

Two uPVC double-glazed windows to rear elevation and door to garden.

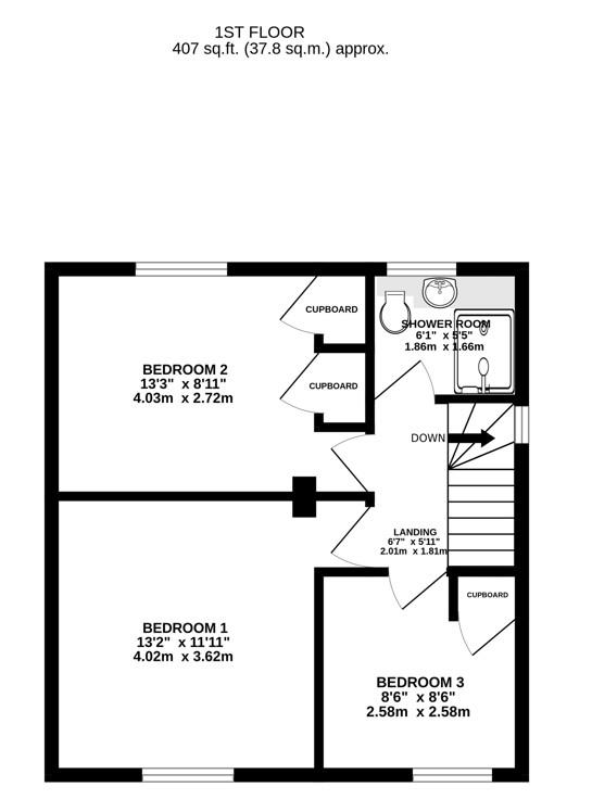
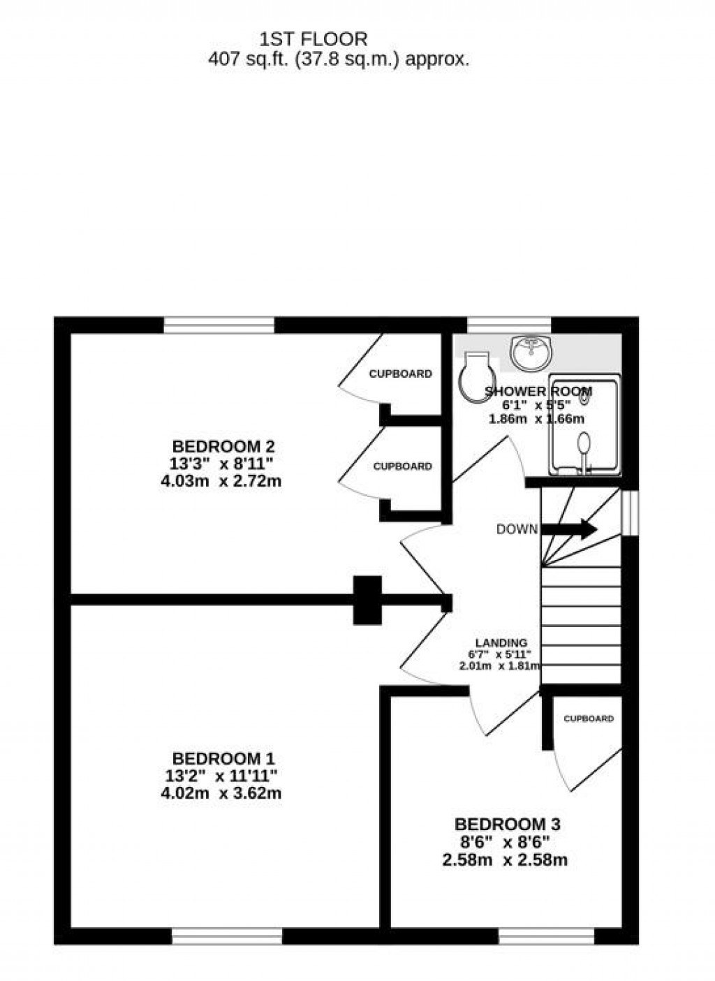
Bedroom One

uPVC double-glazed window to front elevation. Radiator.

Bedroom Two

uPVC double-glazed window to rear elevation. Two storage cupboards. Radiator.

Bedroom Three

uPVC double-glazed window to front elevation. Storage cupboard. Radiator.

Bathroom

uPVC double-glazed window to rear elevation. Low-level WC, wash hand basin and walk in shower. Radiator.

Outside

To the front of the property there is driveway parking for two vehicles and a single garage. The rear garden is fully enclosed and creates a peaceful space which overlooks the Cotswold Way and surrounding countryside. The garden is mostly laid to lawn whilst providing a patio area where you can sit and take in the views, as well as a raised decking area off the dining room.

Location

The village of Kings Stanley provides a village store complete with Post Office, primary school, village hall and pub. Buses give access to Stroud and Gloucester. Nearby Stonehouse town offers further eateries and amenities. Stonehouse train station is on the main line to London Paddington and the M5 is also easily accessible, providing easy access to Gloucester, Cheltenham and Bristol.

Material Information

Tenure: Freehold
Council tax band: C
Local authority and rates: Stroud District Council - £2,054.33 (2025/26)
Electricity supply: mains
Water supply: mains
Sewerage: mains
Heating: gas central heating
Broadband speed: 16 Mbps (basic), 60 Mbps (superfast) and 1,000 Mbps (ultrafast).
Mobile phone coverage: EE (Limited), Three (Limited), O2 and Vodafone (Limited).

Floorplans For Guildings Way, Kings Stanley, Stonehouse Floorplans For Guildings Way, Kings Stanley, Stonehouse Floorplans For Guildings Way, Kings Stanley, Stonehouse
EPC For Guildings Way, Kings Stanley, Stonehouse
Arrange a viewing for Guildings Way, Kings Stanley, Stonehouse

For further details on this property please call us on:
01453 827640

Property Brochure Download PDF Arrange Viewing