2 1 2

2 bed Bungalow - Semi Detached - Sold Subject to Contract
Charlecote Avenue, Tuffley, Gloucester
£230,000

  • No onward chain
  • Two double bedroom semi-detached bungalow
  • In need of modernisation throughout
  • Private & enclosed rear garden
  • Driveway & detached single garage
  • Potential rental income of £1,100 pcm
  • EPC rating D61
  • Gloucester City Council - Tax Band B (£1,741.26 per annum) 2025/2026
Set in a peaceful cul-de-sac location in the popular residential location of Tuffley, this spacious two bedroom semi-detached bungalow is offered to the market with no onward chain. In need of modernisation, the property provides flexible living accommodation, a private enclosed rear garden, detached garage and large driveway. Viewing is highly advised to consider what this home has to offer.

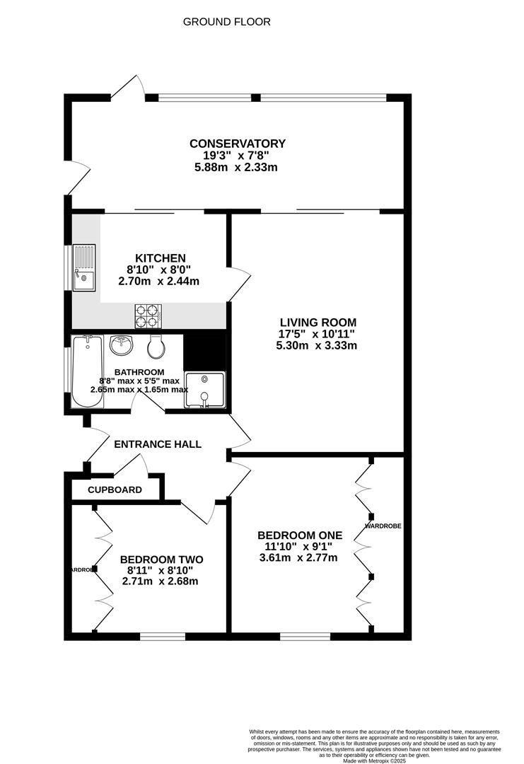
Entrance Hallway

Spacious hallway, with built-in storage cupboard, provides access to the living room, bathroom and both bedrooms.

Living Room

Spacious living room provides access to the conservatory to the rear via sliding doors alongside access to the kitchen.

Kitchen

The kitchen boasts ample worktop and storage space with integrated electric hob and double ovens as well as plumbing for an automatic washing machine and dishwasher. Window overlooks the side aspect whilst an additional set of sliding doors provide further access to the conservatory.

Conservatory

The conservatory provides additional living space with an abundance of natural light streaming into the room via the windows above and the two windows overlooking the rear aspect. Door provides aspect to the garden itself whilst additional door opens to the driveway to the side.

Bedroom One

Double bedroom with built-in wardrobes and window overlooking the front aspect.

Bedroom Two

Double bedroom with built-in wardrobes and window overlooking the front aspect.

Bathroom

White suite bathroom comprising of w.c, wash hand basin, bath, shower cubicle and window with frosted glass overlooking the side aspect.

Outside

To the rear the property benefits from a private low maintenance stone paved rear garden enclosed with fenced borders. Detached single garage is accessed via roller door to the front and personal use door to the rear. Block paved driveway to the side and front of the property provides off-road parking for multiple vehicles.

Location

The popular suburb of Tuffley is located in the Historic City of Gloucester with a mix of properties. It is ideally placed for local amenities including both primary and secondary schooling, Tesco Metro, play park and local Tuffley Rovers football club alongside many other local amenities. A short distance away is the newly developed Gloucester Quays, where a range of retail outlets can be found alongside restaurants, bars and cinema whilst the city centre is home to the Cathedral and various listed buildings throughout. Junction 12 of the M5 motorway is just over 3 miles away, giving easy access to Cheltenham and Bristol.

Material Information

Tenure: Freehold.
Local Authority and Rates: Gloucester City Council - Tax Band B (£1,741.26 per annum) 2025/2026.
Electricity supply: Mains.
Water supply: Mains.
Sewerage: Mains.
Heating: Gas central heating.
Broadband speed: Basic 2 Mbps, Superfast 67 Mbps, Ultrafast 1000 Mbps download speed.
Mobile phone coverage: EE, Three, O2, Vodafone.

Floorplans For Charlecote Avenue, Tuffley, Gloucester
EPC For Charlecote Avenue, Tuffley, Gloucester
Arrange a viewing for Charlecote Avenue, Tuffley, Gloucester

For further details on this property please call us on:
01452 398010

Property Brochure Download PDF Arrange Viewing