2 2 1

2 bed Apartment - For Sale
Barge Arm, Gloucester Docks
£200,000

  • No onward chain
  • Flexible living accommodation
  • Secure allocated off road parking
  • Waterside views
  • Two double bedrooms with en-suite to master
  • Potential rental income of £1,200 pcm
  • EPC rating B84
  • Gloucester City Council - Tax Band C (£1,990.01 per annum)
Set within the heart of the highly sought after historic Gloucester Docklands this surprisingly spacious two double bedroom third floor apartment offers modern open plan living at its finest. With water views across the canal inlet, en-suite shower room to master and secure allocated parking, quick viewing is highly advised.

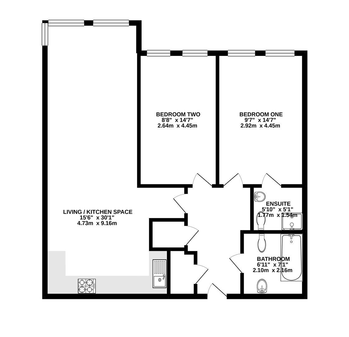
Entrance Hallway

Spacious entrance hallway benefits from two built-in storage cupboards, one houses the combi boiler whilst the other provides plumbing for an automatic washing machine, and provides access to both bedrooms, bath and the living area.

Lounge / Kitchen

The light and airy open plan living area provides convenient space for lounge and dining areas with views overlooking the Orchard square and water views over the canal inlet from the large south facing windows. The kitchen area benefits from ample worktop and space with integrated appliances to include four ring gas hob, electric oven, fridge, freezer and dishwasher.

Bedroom One

Double bedroom with views over the inlet canal and Orchard Square aswell as access to an en-suite shower room.

En-Suite

White suite shower room comprising of w.c, wash hand basin and shower cubicle.

Bedroom Two

Double bedroom with further views over the inlet canal and main water basin.

Bathroom

White suite family bathroom comprising of w.c, wash hand basin and bath with shower attachment over.

Outside

An allocated parking space for the apartment is secured in the gated complex within the Barge Arm East building a short walk from the apartment. The building is accessed via keyless fob entry system where stairs and lift grant access to the third floor where the apartment is located.

Location

To the south of the main docks area is the Gloucester Quays designer outlet centre, which has an outstanding mix of high street and designer labels, with an array of eateries and waterfront bars. Moving into the City, you will find Gloucester Cathedral and a number of independent shops and boutiques. Gloucester bus station provides regular services to all surrounding suburbs. The train station is approximately 1.5 miles away and offers direct lines to London.

Local Authority, Services & Tenure

Gloucester City Council - Tax Band C (£1,990.01 per annum).
Mains water, drainage electric and gas are connected to the property.
Tenure - Leasehold of 200 years (less 20 days) from 1st January 1992. Managed by Ash & Co at an approximate charge of £2,508.00 per annum for year ending 2025. (Part covers normal shared building maintenance, management and insurances; just over 40% covers Docks Service Charge (DSC) including security, CCTV, cleaning and maintenance for the private Docks estate, operated by GDECL).
*Information correct as of 13/06/25*

Floorplans For Barge Arm, Gloucester Docks
EPC For Barge Arm, Gloucester Docks
Arrange a viewing for Barge Arm, Gloucester Docks

For further details on this property please call us on:
01452 398010

Property Brochure Download PDF Arrange Viewing