3 1 1

3 bed House - Mid Terrace - Sold Subject to Contract
Robinhood Street, Gloucester
£205,000

  • No onward chain
  • Two / three bedroom terraced home
  • Immaculately presented throughout
  • Refurbished throughout with modern kitchen & bathroom
  • Large enclosed rear garden
  • Potential rental income of £950 pcm
  • EPC rating D66
  • Gloucester City Council - Tax Band A - £1,492.52 (2025/2026)
Offered to the market with no onward chain is this immaculately presented two / three bedroom mid-terrace property situated within walking distance to the Historic Gloucester Docks. Refurbished throughout by the present owner, the property offers a private and enclosed rear garden and is ideal for both first time buyers and investors alike with a potential rental income of £950 pcm.

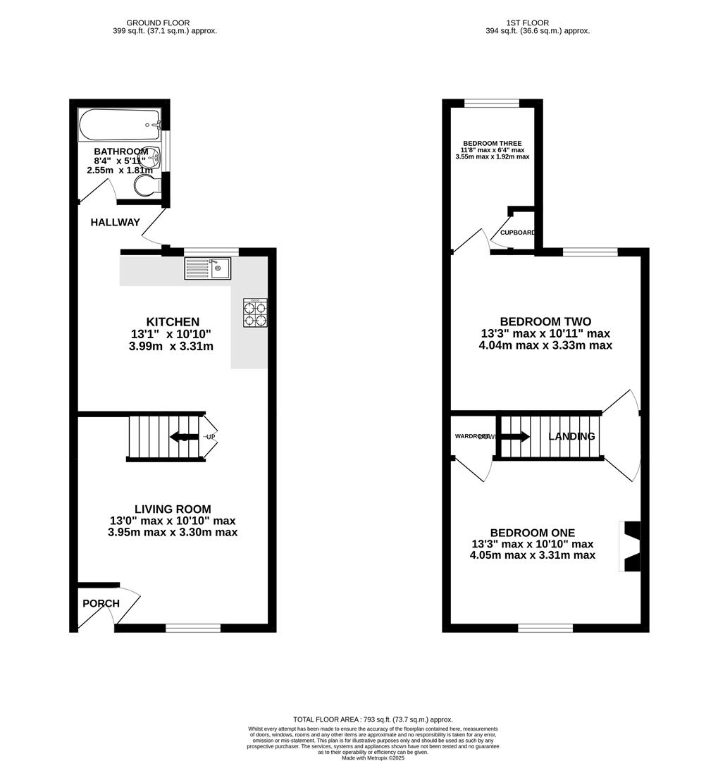
Entrance Porch

Porch provides suitable space for shoes and coats whilst providing access to the living room.

Living Room

Spacious living room with window overlooking the front aspect. Access is provided to the kitchen and built-in storage cupboard located beneath the stairwell.

Kitchen

Providing suitable space for a dining or breakfast table, the modern fitted kitchen benefits from ample worktop and storage space with integrated gas hob and electric oven as well as plumbing for an automatic washing machine. Window overlooks the rear aspect whilst the room opens to an internal hallway to the rear.

Internal Hallway

Hallway provides access to the bathroom and to the rear garden.

Bathroom

Modern fully tiled white suite bathroom comprises w.c, wash hand basin, bath with shower attachment over, convenient built-in shelving within the recess and window with frosted glass overlooking the side aspect.

Landing

Landing provides access to both bedroom sand to the loft above.

Bedroom One

Double bedroom with window overlooking the front aspect and access to a built-in storage cupboard above the stairwell.

Bedroom Two

Currently utilised as a main living room and home office, the room provides a suitable double bedroom with window overlooking the rear aspect and access to an additional room to the rear.

Bedroom Three / Play Room

Accessed via the second bedroom, the room is ideal for multiple uses such as play room, nursery, home office and third bedroom. Window overlooks the rear aspect.

Outside

To the rear, the property boasts a spacious rear garden enclosed with fenced borders. Stone pathway leads to a lawned area with raised decking area to the rear providing a suitable seating area. The garden also provides access to a built-in storage cupboard connected to the rear of the bathroom.

Location

A popular residential area, Robinhood Street is ideally situated within close proximity of the historic city centre appealing to a wide range of potential purchasers having access to both primary and secondary education, a range of amenities, multi sport court, play ground, rugby pitch and bus links alongside being a short distance from the newly developed Gloucester Quays providing various restaurants, bars and twelve screen cinema.

Material Information

Tenure: Freehold.
Local Authority and Rates: Gloucester City Council - Tax Band A - £1,492.52 (2025/2026).
Electricity supply: Mains.
Water supply: Mains.
Sewerage: Mains.
Heating: Gas
Broadband speed: Basic 15 Mbps, Superfast 70 Mbps, Ultrafast 1000 Mbps download speed.
Mobile phone coverage: EE, Three, O2, Vodafone.

Floorplans For Robinhood Street, Gloucester
EPC For Robinhood Street, Gloucester
Arrange a viewing for Robinhood Street, Gloucester

For further details on this property please call us on:
01452 398010

Property Brochure Download PDF Arrange Viewing