3 2 1

3 bed House - Semi-Detached - For Sale
Thomas Tudor Way, Great Oldbury, Stonehouse
£313,500

  • Semi-detached house
  • Three bedrooms
  • Tastefully decorated throughout and well-presented
  • South facing rear garden with side access
  • Two allocated parking spaces in front of the property
  • There is approximately 7 years remaining on the NHBC warranty
  • There may be a management fee payable when the development is complete
  • Freehold
  • Council tax band C (£2,058.46)
  • EPC rating B84
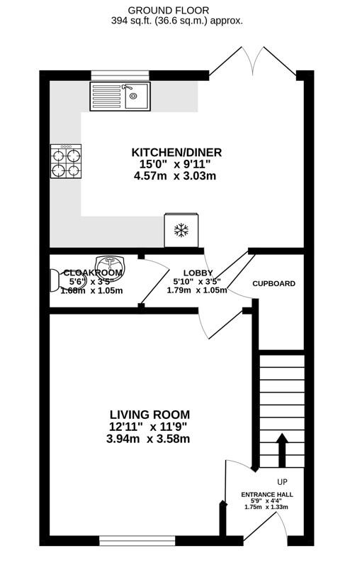
Constructed in 2022 by Barratt Homes, The Ellerton is a three bedroom, semi-detached house that has been tastefully decorated throughout and boasts a South facing rear garden. The ground floor is accessed via the entrance hall leading to the living room and stairs rising to the first floor. There is an additionally hallway creating a spacious feel with cloakroom and access to the kitchen/diner, the kitchen is at the rear of the property providing a light and airy space. On the first floor is the master bedroom with en-suite shower room, a further double bedroom, a single bedroom and bathroom. Externally, the rear garden is South facing and mainly laid to lawn. There are two allocated parking spaces at the front of the property. The property has the remainder of the NHBC warranty and being offered to the market CHAIN FREE.

Entrance Hall

Composite door to entrance hall. Access to living room and stairs rising to the first floor. Radiator.

Living Room

uPVC double-glazed window to front elevation. Radiator.

Kitchen/Dining Room

uPVC double-glazed window to rear elevation and uPVC double-glazed French doors to rear garden. Range of wall and base units with appliances to include stainless steel sink with mixer tap and drainer, integrated dishwasher, integrated fridge/freezer, four ring gas hob and oven. Space for washing machine. Radiator.

Lobby

Access to living room, kitchen/diner, cloakroom and under-stairs storage cupboard.

Cloakroom

uPVC double-glazed window to side elevation. Low-level WC and wash hand basin. Radiator.

Bedroom One

uPVC double-glazed window to front elevation. Access to en-suite. Radiator.

En-Suite Shower Room

Low-level WC, wash hand basin and shower. Radiator.

Bedroom Two

uPVC double-glazed window to rear elevation. Radiator.

Bedroom Three

uPVC double-glazed window to front elevation. Radiator.

Bathroom

uPVC double-glazed window to side elevation. Low-level WC, wash hand basin and bath. Radiator.

Outside

To the front of the property is two allocated parking spaces and side access to the rear garden. The rear garden is South facing and fully enclosed. It is mostly laid to lawn with a patio area, creating a complete blank canvass.

Location

This property is located within the Great Oldbury development which provides ease of access to both Eastington and Stonehouse. Local facilities include a Co-op with a Post Office, restaurants, primary and secondary schools. The property is approximately four miles to Junction 12 of the M5 motorway providing access to Gloucester, Cheltenham and Bristol. Stonehouse railway station has a regular train service to London and Cheltenham. The town is situated approximately three miles west of Stroud and twelve miles south of Gloucester.

Material Information

Tenure: Freehold.
Council tax band: C.
Local authority and rates: Stroud District Council - £2,058.46 (2025/26).
There may be a service charge when the development is complete.
Electricity supply: mains.
Water supply: mains.
Sewerage: mains.
Heating: gas central.
Broadband speed: 6 Mbps (basic), 50 Mbps (superfast) and 10,000 Mbps (ultrafast).
Mobile phone coverage: EE (Limited), Three (Limited), O2 and Vodafone.

Floorplans For Thomas Tudor Way, Great Oldbury, Stonehouse Floorplans For Thomas Tudor Way, Great Oldbury, Stonehouse Floorplans For Thomas Tudor Way, Great Oldbury, Stonehouse
EPC For Thomas Tudor Way, Great Oldbury, Stonehouse
Arrange a viewing for Thomas Tudor Way, Great Oldbury, Stonehouse

For further details on this property please call us on:
01453 827640

Property Brochure Download PDF Arrange Viewing