4 2 1

4 bed House - Semi-Detached - Sold Subject to Contract
Boakes Drive, Stonehouse
£330,000

  • Semi-detached house with views of local
  • Three double bedrooms and one single bedroom
  • Ample storage throughout
  • Canal side location with easy access to local footpath
  • Enclosed rear garden with side access
  • Two tandem parking spaces and a single garage
  • Chain free
  • Freehold
  • Council tax band C (£2,152.55)
  • EPC rating C79
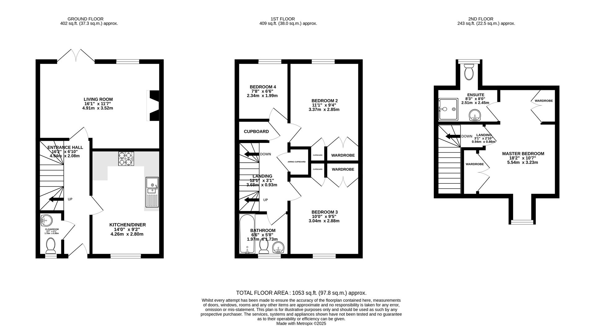
Located canal side in a cul-de-sac location is a four bedroom, semi-detached house with accommodation spread across three floors. The ever popular Boakes Drive provides easy access to the local footpath which can lead to Stroud along the scenic canal path. The ground floor has a living room with access to the rear garden, kitchen/diner and cloakroom. There are two double bedrooms, one single bedroom and the main family bathroom on the first floor. The master bedroom boasts an en-suite shower room and two built-in wardrobes. The kitchen and bedrooms to the front of the property allow for picturesque views across the canal, often with boats going by. The rear garden is enclosed and provides side access to the driveway. There are two tandem parking spaces along with a single garage. The property is being marketed CHAIN FREE.

Entrance Hall

Double-glazed door to entrance hall. Access to living room, kitchen, cloakroom and stairs rising to the first floor. Radiator.

Living Room

uPVC double-glazed French doors to garden and uPVC double-glazed window to rear elevation. Feature fireplace. Radiator.

Kitchen

uPVC double-glazed window to front elevation. Range of wall and base units with appliances to include one and a half bowl sink with mixer tap and drainer, four ring gas hob and oven. Space for washing machine and fridge/freezer. Radiator.

Cloakroom

uPVC double-glazed window to front elevation. Low-level WC and wash hand basin. Radiator.

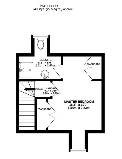
Bedroom One

uPVC double-glazed window to front elevation. Two built-in wardrobes. Radiator.

En-Suite Shower Room

uPVC double-glazed window to rear elevation. Low-level WC, wash hand basin and shower cubicle. Radiator.

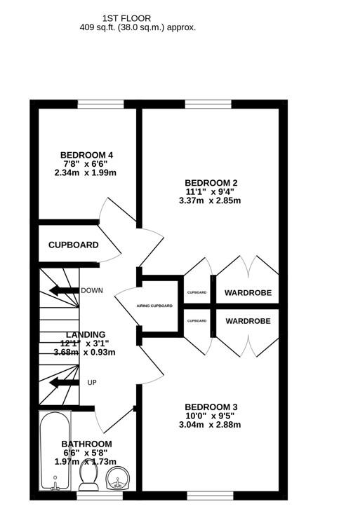
Bedroom Two

uPVC double-glazed window to rear elevation. Built-in wardrobe and cupboard. Radiator.

Bedroom Three

uPVC double-glazed window to front elevation. Built-in wardrobe and cupboard. Radiator.

Bedroom Four

uPVC double-glazed window to rear elevation. Radiator.

Bathroom

uPVC double-glazed window to front elevation. Low-level WC, wash hand basin and bath. Radiator.

Outside

The property is situated canal side and has easy access to the local footpath which leads to Stroud. There is tandem driveway parking for two vehicles and a garage (5.01m x 2.55m) with manual up and over door. The rear garden has side access to the driveway and laid to lawn, there is an added benefit of a patio for alfresco dining.

Location

The property is situated on the edge of Stonehouse town and within easy reach of the open countryside. Local facilities include a Co-op with a Post Office, restaurants as well as primary and secondary schools. Stonehouse Train Station gives access to the main line to London Paddington. The M5 motorway is easily accessible providing access to Gloucester, Cheltenham and Bristol.

Material Information

Tenure: Freehold.
Council tax band: C.
Local authority and rates: Stroud District Council - £2,152.55 (2025/26).
Electricity supply: mains.
Water supply: mains.
Sewerage: mains.
Heating: gas central heating.
Broadband speed: 15 Mbps (basic) and 80 Mbps (superfast).
Mobile phone coverage: EE (Limited), Three, O2 and Vodafone.

Floorplans For Boakes Drive, Stonehouse Floorplans For Boakes Drive, Stonehouse Floorplans For Boakes Drive, Stonehouse Floorplans For Boakes Drive, Stonehouse
EPC For Boakes Drive, Stonehouse
Arrange a viewing for Boakes Drive, Stonehouse

For further details on this property please call us on:
01453 827640

Property Brochure Download PDF Arrange Viewing